Ссылка. Число: SOF-131642 / 4015
Расположение: Левски Г / София карта
Тип здания/комплекса: Жилой
Жилые районы: 126.18 м 2
Типы объектов недвижимости в здании/комплексе: Многокомнатные квартиры
Ссылка. Число: SOF-131642
Расположение: Левски Г / София
Тип здания/комплекса: Жилищен
Класс здания/комплекса:
Жилые районы: 126.18 м 2
Типы объектов недвижимости в здании/комплексе: Многокомнатные квартиры
В стадии строительства. Планируемое окончание - 11.2027.
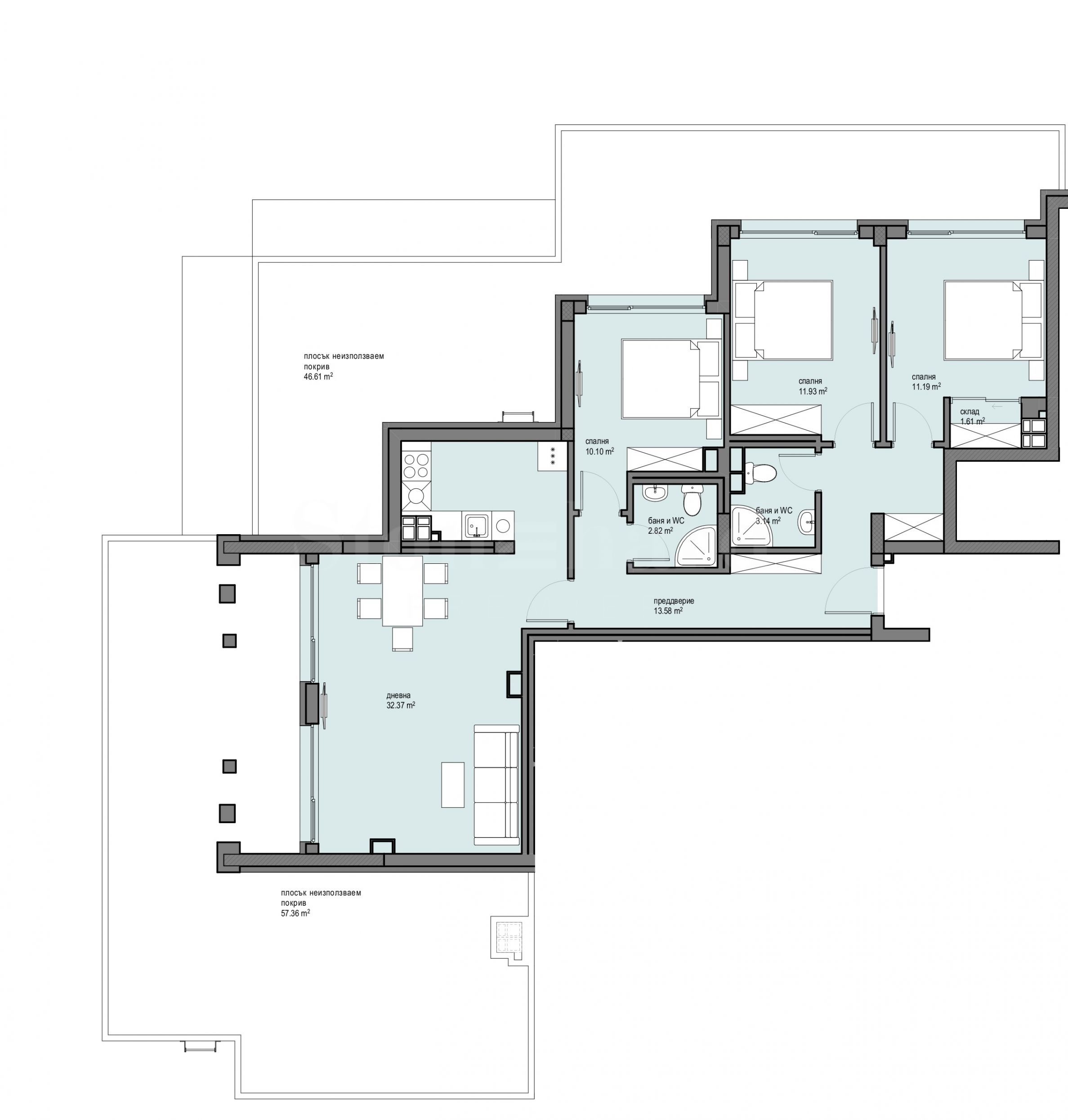
Общая площадь недвижимости составляет 126,18 кв. м., она расположена на 8 этаже, окна выходят на север/восток/запад.
Распределение:
• прихожая/коридор;
• две ванные комнаты;
• три спальни;
• гостиная с кухней и столовой;
• терраса 1 - 46,61 кв. метров;
• терраса 2 - 57,36 кв. метров.
Выдается в степени завершенности согласно Болгарскому гражданскому кодексу:
• Окна ПВХ с шестикамерным, немецким профилем с тройным стеклопакетом, с одним низкоэмиссионным стеклом;
• входная дверь – бронированная, с секретным замком высокого класса;
• отопление электричеством с возможностью подключения кондиционеров;
• отделка стен и потолков гипсовой штукатуркой с установкой по краям алюминиевых уголков;
• потолки неотапливаемых помещений, граничащие с отапливаемыми помещениями, с утеплением экструдированным пенополистиролом XPS;
• санитарные и мокрые помещения заделываются известково-цементной штукатуркой;
• цементная стяжка пола;
• террасы с гранитной плиткой;
• установленная панель, расположенная возле входной двери;
• слаботочные установки – по проекту с установкой слаботочного щитка у входной двери;
• проводка для системы безопасности;
• установка видеодомофона - выполнена электропроводка, видеодомофон;
• установлены счетчики электроэнергии.
Здание строится недалеко от бульвара Владимира Вазова – главной проспектной и радиальной магистрали столицы, протяжённостью 5 км, с удобным общественным транспортом (автобусные маршруты 120, 78), в 3 км от станции метро «Театральная». В настоящее время строится продолжение линии метро М3 от станции метро «Хаджи Димитр» до жилого массива «Левски Г».
Вдоль продолжения бульвара Владимира Вазова планируется построить 3 станции метро:
• станция метро «Владимир Вазов» – всего 450 метров от здания;
• Станция метро «Тракия» – 500 метров;
• станция метро «Стадион имени Георгия Аспарухова» – 1,5 км от здания.
Расстояния до ключевых объектов, таких как:
• Стадион «Виваком Арена – Георгий Аспарухов» – 1 км;
• Декатлон – 480 м, плавательно-развлекательный комплекс Варадеро – 500 м;
• Улица «Оборище» и центр Сердика, бул. «Мадрид». – 3,5 км;
• парк «Герена» – 1 км, парк «Заимов» – 5 км;
• центр Софии, бульвар Витоша – 7 км;
• Аэропорт Софии – 5 км.
Образовательные учреждения и детские сады в районе: Начальная школа 199 «Святой апостол Иоанн Богослов» - 400 м, Средняя школа 130 «Стефан Караджа» - 900 м, Средняя школа 44 «Неофит Бозвели» - 2 км, Начальная школа 49 «Бенито Хуарес» - 1,9 км; Начальная школа 92 «Мечта», Начальная школа 91 «Солнечный уголок» - филиал, Начальная школа 20 «Джасминов Парк».
О здании
Здание состоит из 2 секций с квартирами на 9 жилых этажах. Квартиры двухкомнатные, трёхкомнатные и четырёхкомнатные. Есть возможность приобрести гаражи по цене от 26 500 евро, а также кладовые помещения.
Технические указанных отличительных обозначенных характеристики здания:
• монолитная, железобетонная безбалочная конструкция фундаментной плиты;
• с гидроизоляцией фундаментов зданий - Kryton International Inc. Krystol Waterstop System;
• кладка керамическим кирпичом WIENERBERGER;
• наружные ограждающие стены – керамический кирпич Porotherm 25 см и система утепления /пенополистирол EPS/;
• для внутренних кирпичных стен - керамический кирпич Porotherm 12 см, со звукоизоляцией между квартирами;
• плоская кровля с детально уложенными слоями - пароизоляция, теплоизоляция из экструдированного пенополистирола - XPS, армированная стяжка с уклоном, два слоя рулонной битумной гидроизоляции; без мостиков холода на конструктивных элементах;
• места общего пользования – гранитная плитка или натуральный камень;
• лифты с кабинами класса люкс с автоматическими дверями.
Мы с нетерпением ждем вашего запроса.
Если вы хотите договориться о просмотре интересующего вас объекта недвижимости или посетить один из наших офисов, пожалуйста, свяжитесь с нами. Чтобы договориться о встрече или просмотре, позвоните по указанному в объявлении номеру телефона или отправьте запрос по электронной почте. Наш консультант свяжется с вами по всем необходимым вопросам и подберет удобное для вас время.
Вы ищете подходящую для себя недвижимость?
Не стесняйтесь обращаться к нам и рассказать о своих потребностях и предпочтениях. Наша команда проведёт тщательное исследование рынка, чтобы предложить вам недвижимость, которая точно соответствует вашим критериям. У нас есть исключительное портфолио высококачественных и эксклюзивных домов, доступных только нашим клиентам. Чтобы первыми получать информацию о них, свяжитесь с нами.
Дополнительные услуги
Став нашим ценным клиентом, вы получите право пользоваться услугами нашей опытной юридической команды совершенно бесплатно. Кроме того, мы предлагаем комплексные решения, включая страхование имущества, бесплатные финансовые консультации и выгодные условия финансирования. Мы также предлагаем услуги по перепродаже, аренде и управлению недвижимостью. Мы осуществляем высококачественный ремонт и меблировку через специализированные компании, входящие в нашу группу компаний и являющиеся нашими давними профессиональными партнерами.
Смотр недвижимости
Мы готовы организовать смотр недвижимости в удобное для вас время. Обратитесь к ответственному менеджеру по продажам и проинформируйте его, когда бы Вы хотели приехать на смотровой тур. Мы можем помочь Вам забронировать авиабилет и отель, а также помочь Вам оформить визу и необходимую страховку.
Бронирование недвижимости
Вы можете забронировать недвижимость, заплатив невозмещаемый задаток в размере 2 000 евро наличным платежом, кредитной картой или банковским переводом на фирменный счет компании. После получения задатка недвижимость бронируется, осмотры с другими потенциальными покупателями производиться не будут, и начнется изготовление необходимых документов по оформлению сделки. Пожалуйста, обратитесь к ответственному за данный объект менеджеру по продажам для получения подробной информации относительно процедуры покупки и способов оплаты.
Послепродажное обслуживание
Мы уважаемая компания, за плечами которой многолетний опыт работы в сфере недвижимости. Мы будем сопровождать Вас не только во время покупки, но и после приобретения недвижимости, обеспечивая Вам дополнительный набор услуг с учетом Ваших требовании, для того, чтобы Вы могли насладиться полноценным и спокойным времяпровождением в Болгарии. Услуги, которые мы можем предложить, включают страхование, строительство и ремонт, услуги по меблировке, бухгалтерские и юридическиe услуги, переоформление договоров на электричество, воду, телефон и многое другое.
Расположение на карте
В стадии строительства. Планируемое окончание - 11.2027.
Общая площадь недвижимости составляет 126,18 кв. м., она расположена на 8 этаже, окна выходят на север/восток/запад.
Распределение:
• прихожая/коридор;
• две ванные комнаты;
• три спальни;
• гостиная с кухней и столовой;
• терраса 1 - 46,61 кв. метров;
• терраса 2 - 57,36 кв. метров.
Выдается в степени завершенности согласно Болгарскому гражданскому кодексу:
• Окна ПВХ с шестикамерным, немецким профилем с тройным стеклопакетом, с одним низкоэмиссионным стеклом;
• входная дверь – бронированная, с секретным замком высокого класса;
• отопление электричеством с возможностью подключения кондиционеров;
• отделка стен и потолков гипсовой штукатуркой с установкой по краям алюминиевых уголков;
• потолки неотапливаемых помещений, граничащие с отапливаемыми помещениями, с утеплением экструдированным пенополистиролом XPS;
• санитарные и мокрые помещения заделываются известково-цементной штукатуркой;
• цементная стяжка пола;
• террасы с гранитной плиткой;
• установленная панель, расположенная возле входной двери;
• слаботочные установки – по проекту с установкой слаботочного щитка у входной двери;
• проводка для системы безопасности;
• установка видеодомофона - выполнена электропроводка, видеодомофон;
• установлены счетчики электроэнергии.
Здание строится недалеко от бульвара Владимира Вазова – главной проспектной и радиальной магистрали столицы, протяжённостью 5 км, с удобным общественным транспортом (автобусные маршруты 120, 78), в 3 км от станции метро «Театральная». В настоящее время строится продолжение линии метро М3 от станции метро «Хаджи Димитр» до жилого массива «Левски Г».
Вдоль продолжения бульвара Владимира Вазова планируется построить 3 станции метро:
• станция метро «Владимир Вазов» – всего 450 метров от здания;
• Станция метро «Тракия» – 500 метров;
• станция метро «Стадион имени Георгия Аспарухова» – 1,5 км от здания.
Расстояния до ключевых объектов, таких как:
• Стадион «Виваком Арена – Георгий Аспарухов» – 1 км;
• Декатлон – 480 м, плавательно-развлекательный комплекс Варадеро – 500 м;
• Улица «Оборище» и центр Сердика, бул. «Мадрид». – 3,5 км;
• парк «Герена» – 1 км, парк «Заимов» – 5 км;
• центр Софии, бульвар Витоша – 7 км;
• Аэропорт Софии – 5 км.
Образовательные учреждения и детские сады в районе: Начальная школа 199 «Святой апостол Иоанн Богослов» - 400 м, Средняя школа 130 «Стефан Караджа» - 900 м, Средняя школа 44 «Неофит Бозвели» - 2 км, Начальная школа 49 «Бенито Хуарес» - 1,9 км; Начальная школа 92 «Мечта», Начальная школа 91 «Солнечный уголок» - филиал, Начальная школа 20 «Джасминов Парк».
О здании
Здание состоит из 2 секций с квартирами на 9 жилых этажах. Квартиры двухкомнатные, трёхкомнатные и четырёхкомнатные. Есть возможность приобрести гаражи по цене от 26 500 евро, а также кладовые помещения.
Технические указанных отличительных обозначенных характеристики здания:
• монолитная, железобетонная безбалочная конструкция фундаментной плиты;
• с гидроизоляцией фундаментов зданий - Kryton International Inc. Krystol Waterstop System;
• кладка керамическим кирпичом WIENERBERGER;
• наружные ограждающие стены – керамический кирпич Porotherm 25 см и система утепления /пенополистирол EPS/;
• для внутренних кирпичных стен - керамический кирпич Porotherm 12 см, со звукоизоляцией между квартирами;
• плоская кровля с детально уложенными слоями - пароизоляция, теплоизоляция из экструдированного пенополистирола - XPS, армированная стяжка с уклоном, два слоя рулонной битумной гидроизоляции; без мостиков холода на конструктивных элементах;
• места общего пользования – гранитная плитка или натуральный камень;
• лифты с кабинами класса люкс с автоматическими дверями.
Мы с нетерпением ждем вашего запроса.
Если вы хотите договориться о просмотре интересующего вас объекта недвижимости или посетить один из наших офисов, пожалуйста, свяжитесь с нами. Чтобы договориться о встрече или просмотре, позвоните по указанному в объявлении номеру телефона или отправьте запрос по электронной почте. Наш консультант свяжется с вами по всем необходимым вопросам и подберет удобное для вас время.
Вы ищете подходящую для себя недвижимость?
Не стесняйтесь обращаться к нам и рассказать о своих потребностях и предпочтениях. Наша команда проведёт тщательное исследование рынка, чтобы предложить вам недвижимость, которая точно соответствует вашим критериям. У нас есть исключительное портфолио высококачественных и эксклюзивных домов, доступных только нашим клиентам. Чтобы первыми получать информацию о них, свяжитесь с нами.
Дополнительные услуги
Став нашим ценным клиентом, вы получите право пользоваться услугами нашей опытной юридической команды совершенно бесплатно. Кроме того, мы предлагаем комплексные решения, включая страхование имущества, бесплатные финансовые консультации и выгодные условия финансирования. Мы также предлагаем услуги по перепродаже, аренде и управлению недвижимостью. Мы осуществляем высококачественный ремонт и меблировку через специализированные компании, входящие в нашу группу компаний и являющиеся нашими давними профессиональными партнерами.
Смотр недвижимости
Мы готовы организовать смотр недвижимости в удобное для вас время. Обратитесь к ответственному менеджеру по продажам и проинформируйте его, когда бы Вы хотели приехать на смотровой тур. Мы можем помочь Вам забронировать авиабилет и отель, а также помочь Вам оформить визу и необходимую страховку.
Бронирование недвижимости
Вы можете забронировать недвижимость, заплатив невозмещаемый задаток в размере 2 000 евро наличным платежом, кредитной картой или банковским переводом на фирменный счет компании. После получения задатка недвижимость бронируется, осмотры с другими потенциальными покупателями производиться не будут, и начнется изготовление необходимых документов по оформлению сделки. Пожалуйста, обратитесь к ответственному за данный объект менеджеру по продажам для получения подробной информации относительно процедуры покупки и способов оплаты.
Послепродажное обслуживание
Мы уважаемая компания, за плечами которой многолетний опыт работы в сфере недвижимости. Мы будем сопровождать Вас не только во время покупки, но и после приобретения недвижимости, обеспечивая Вам дополнительный набор услуг с учетом Ваших требовании, для того, чтобы Вы могли насладиться полноценным и спокойным времяпровождением в Болгарии. Услуги, которые мы можем предложить, включают страхование, строительство и ремонт, услуги по меблировке, бухгалтерские и юридическиe услуги, переоформление договоров на электричество, воду, телефон и многое другое.
В стадии строительства. Планируемое окончание - 11.2027.
Общая площадь недвижимости составляет 126,18 кв. м., она расположена на 8 этаже, окна выходят на север/восток/запад.
Распределение:
• прихожая/коридор;
• две ванные комнаты;
• три спальни;
• гостиная с кухней и столовой;
• терраса 1 - 46,61 кв. метров;
• терраса 2 - 57,36 кв. метров.
Выдается в степени завершенности согласно Болгарскому гражданскому кодексу:
• Окна ПВХ с шестикамерным, немецким профилем с тройным стеклопакетом, с одним низкоэмиссионным стеклом;
• входная дверь – бронированная, с секретным замком высокого класса;
• отопление электричеством с возможностью подключения кондиционеров;
• отделка стен и потолков гипсовой штукатуркой с установкой по краям алюминиевых уголков;
• потолки неотапливаемых помещений, граничащие с отапливаемыми помещениями, с утеплением экструдированным пенополистиролом XPS;
• санитарные и мокрые помещения заделываются известково-цементной штукатуркой;
• цементная стяжка пола;
• террасы с гранитной плиткой;
• установленная панель, расположенная возле входной двери;
• слаботочные установки – по проекту с установкой слаботочного щитка у входной двери;
• проводка для системы безопасности;
• установка видеодомофона - выполнена электропроводка, видеодомофон;
• установлены счетчики электроэнергии.
Здание строится недалеко от бульвара Владимира Вазова – главной проспектной и радиальной магистрали столицы, протяжённостью 5 км, с удобным общественным транспортом (автобусные маршруты 120, 78), в 3 км от станции метро «Театральная». В настоящее время строится продолжение линии метро М3 от станции метро «Хаджи Димитр» до жилого массива «Левски Г».
Вдоль продолжения бульвара Владимира Вазова планируется построить 3 станции метро:
• станция метро «Владимир Вазов» – всего 450 метров от здания;
• Станция метро «Тракия» – 500 метров;
• станция метро «Стадион имени Георгия Аспарухова» – 1,5 км от здания.
Расстояния до ключевых объектов, таких как:
• Стадион «Виваком Арена – Георгий Аспарухов» – 1 км;
• Декатлон – 480 м, плавательно-развлекательный комплекс Варадеро – 500 м;
• Улица «Оборище» и центр Сердика, бул. «Мадрид». – 3,5 км;
• парк «Герена» – 1 км, парк «Заимов» – 5 км;
• центр Софии, бульвар Витоша – 7 км;
• Аэропорт Софии – 5 км.
Образовательные учреждения и детские сады в районе: Начальная школа 199 «Святой апостол Иоанн Богослов» - 400 м, Средняя школа 130 «Стефан Караджа» - 900 м, Средняя школа 44 «Неофит Бозвели» - 2 км, Начальная школа 49 «Бенито Хуарес» - 1,9 км; Начальная школа 92 «Мечта», Начальная школа 91 «Солнечный уголок» - филиал, Начальная школа 20 «Джасминов Парк».
О здании
Здание состоит из 2 секций с квартирами на 9 жилых этажах. Квартиры двухкомнатные, трёхкомнатные и четырёхкомнатные. Есть возможность приобрести гаражи по цене от 26 500 евро, а также кладовые помещения.
Технические указанных отличительных обозначенных характеристики здания:
• монолитная, железобетонная безбалочная конструкция фундаментной плиты;
• с гидроизоляцией фундаментов зданий - Kryton International Inc. Krystol Waterstop System;
• кладка керамическим кирпичом WIENERBERGER;
• наружные ограждающие стены – керамический кирпич Porotherm 25 см и система утепления /пенополистирол EPS/;
• для внутренних кирпичных стен - керамический кирпич Porotherm 12 см, со звукоизоляцией между квартирами;
• плоская кровля с детально уложенными слоями - пароизоляция, теплоизоляция из экструдированного пенополистирола - XPS, армированная стяжка с уклоном, два слоя рулонной битумной гидроизоляции; без мостиков холода на конструктивных элементах;
• места общего пользования – гранитная плитка или натуральный камень;
• лифты с кабинами класса люкс с автоматическими дверями.
Мы с нетерпением ждем вашего запроса.
Если вы хотите договориться о просмотре интересующего вас объекта недвижимости или посетить один из наших офисов, пожалуйста, свяжитесь с нами. Чтобы договориться о встрече или просмотре, позвоните по указанному в объявлении номеру телефона или отправьте запрос по электронной почте. Наш консультант свяжется с вами по всем необходимым вопросам и подберет удобное для вас время.
Вы ищете подходящую для себя недвижимость?
Не стесняйтесь обращаться к нам и рассказать о своих потребностях и предпочтениях. Наша команда проведёт тщательное исследование рынка, чтобы предложить вам недвижимость, которая точно соответствует вашим критериям. У нас есть исключительное портфолио высококачественных и эксклюзивных домов, доступных только нашим клиентам. Чтобы первыми получать информацию о них, свяжитесь с нами.
Дополнительные услуги
Став нашим ценным клиентом, вы получите право пользоваться услугами нашей опытной юридической команды совершенно бесплатно. Кроме того, мы предлагаем комплексные решения, включая страхование имущества, бесплатные финансовые консультации и выгодные условия финансирования. Мы также предлагаем услуги по перепродаже, аренде и управлению недвижимостью. Мы осуществляем высококачественный ремонт и меблировку через специализированные компании, входящие в нашу группу компаний и являющиеся нашими давними профессиональными партнерами.
Смотр недвижимости
Мы готовы организовать смотр недвижимости в удобное для вас время. Обратитесь к ответственному менеджеру по продажам и проинформируйте его, когда бы Вы хотели приехать на смотровой тур. Мы можем помочь Вам забронировать авиабилет и отель, а также помочь Вам оформить визу и необходимую страховку.
Бронирование недвижимости
Вы можете забронировать недвижимость, заплатив невозмещаемый задаток в размере 2 000 евро наличным платежом, кредитной картой или банковским переводом на фирменный счет компании. После получения задатка недвижимость бронируется, осмотры с другими потенциальными покупателями производиться не будут, и начнется изготовление необходимых документов по оформлению сделки. Пожалуйста, обратитесь к ответственному за данный объект менеджеру по продажам для получения подробной информации относительно процедуры покупки и способов оплаты.
Послепродажное обслуживание
Мы уважаемая компания, за плечами которой многолетний опыт работы в сфере недвижимости. Мы будем сопровождать Вас не только во время покупки, но и после приобретения недвижимости, обеспечивая Вам дополнительный набор услуг с учетом Ваших требовании, для того, чтобы Вы могли насладиться полноценным и спокойным времяпровождением в Болгарии. Услуги, которые мы можем предложить, включают страхование, строительство и ремонт, услуги по меблировке, бухгалтерские и юридическиe услуги, переоформление договоров на электричество, воду, телефон и многое другое.
ПРОДАЖА
ПРОЕКТ
Многокомнатная квартира в новом элитном доме в комплексе "Бояна" в Софии.
Бояна / София / София / Болгария карта
Область: 169.60 м 2
Цена: 390 080 € /// 2 300 €/м 2
ПРАВА
Synerga Premium Complex – пространство, вдохновлённое природой и городом
Младост 3 / София / София / Болгария карта
Класс здания: Роскошный
Цены на недвижимость: 204 271 - 877 422 € (без НДС)
Цены за м²: 2 430 - 3 200 €/м 2 (без НДС)
ПРОДАЖА
ПРОЕКТ
Трехкомнатная квартира в инновационном комплексе с Актом 16 в районе Бояна
Бояна / София / София / Болгария карта
Класс здания/комплекса: Высокий стандарт
Область: 212.60 м 2
Цена: 510 240 € /// 2 400 €/м 2
Выберите эту опцию, и мы уведомим вас по электронной почте в случае каких-либо изменений в статусе предложения, например:
• Изменение цены;
• Объект недвижимости попал в рекламное предложение;
• Имущество зарезервировано или продано;
• Другие новости, связанные с недвижимостью.
• Имущество снимается с продажи;
Вы можете легко отписаться от уведомлений в любое время.• Изменения условий предложения;
• Изменение размера инвестиций;
• Объект инвестиции полностью реализован;
• Срок действия предложения истек.
Вы сможете легко отказаться от подписки, если в будущем решите, что больше не хотите следовать этому предложению.



...Как проверенный специалист, Stonehard PREMIER работает над позиционированием на рынке и продажами многочисленных новых строительных проектов, реализацию которых нам доверили ведущие предпринимательские компании в Болгарии и за рубежом...