Односемейный дом в новом закрытом комплексе в Несебре
Цена:
360 000 €
*Цены и наличие свободных площадей в проекте указаны ориентировочно. Для получения актуальной информации о ценах, пожалуйста, свяжитесь с нами!
Ссылка. Число: LXH-131002 / 4398
Расположение: Несебр карта
Тип здания/комплекса: Жилой
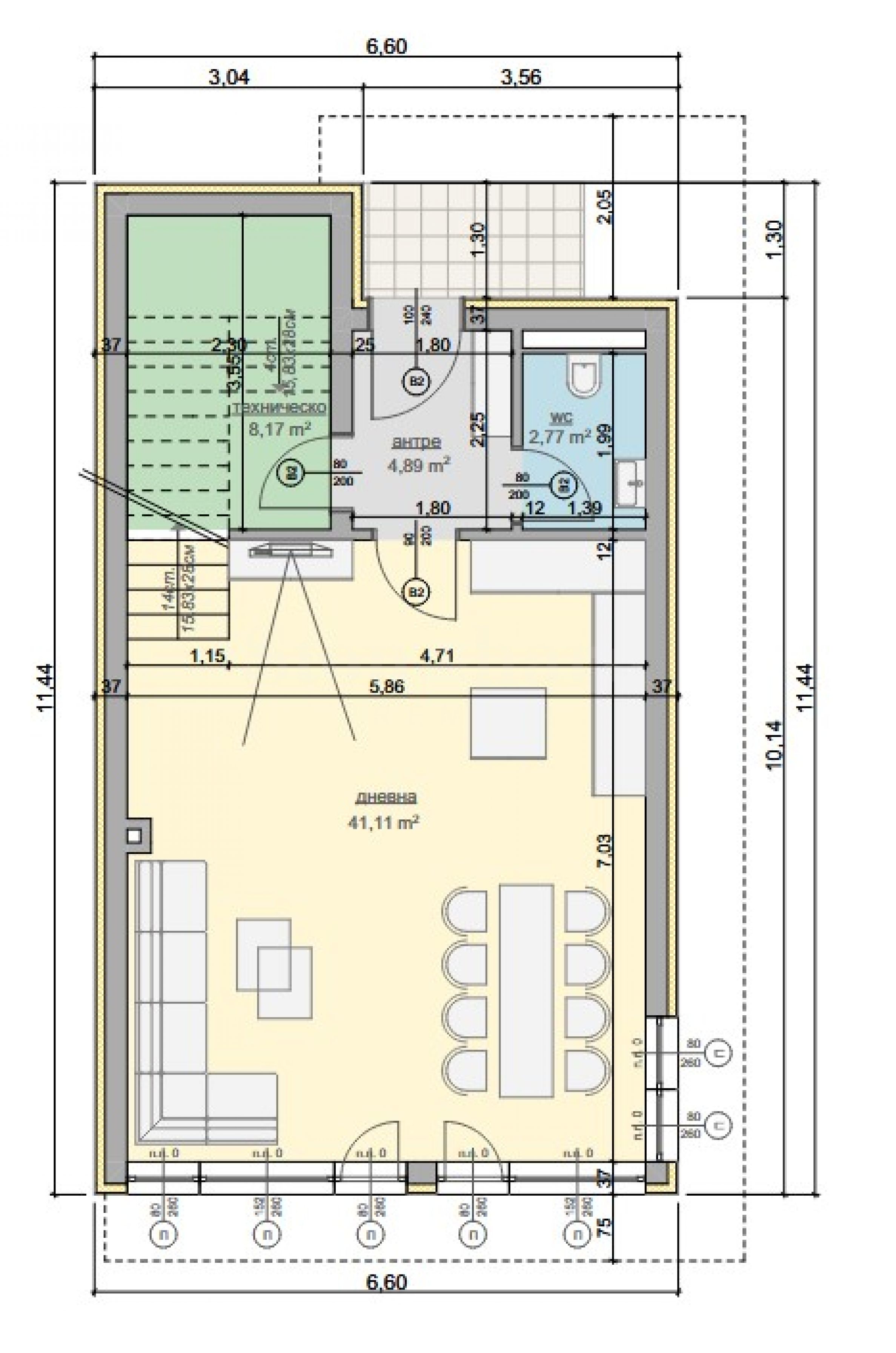
Жилые районы: 164.48 м 2
Типы объектов недвижимости в здании/комплексе: Дуплекси
Ссылка. Число: LXH-131002 / 4398
Расположение: Несебр
Тип здания/комплекса: Жилой
Класс здания/комплекса:
Жилые районы: 164.48 м 2
Типы объектов недвижимости в здании/комплексе: Дуплекси
Комплекс расположен на мысе Акротири в городе Несебр, на берегу Черного моря со 100% потрясающим видом на море, в 30 м от пляжа НСА и в 200 м от пляжа Южный Несебр.
В разработке. Ожидаемый акт 16 - июнь 2027 г.
Общая площадь объекта составляет 164,48 кв. м, имеется собственный двор площадью 162,40 кв. м и два парковочных места.
Распределение:
первый этаж: прихожая, кладовая, санузел, гостиная с кухней и столовой, веранда;
второй этаж: три спальни с собственной ванной комнатой и туалетом. Недвижимость сдается в аренду в степени завершенности в соответствии с Болгарским гражданским кодексом:
стены - набрызгиваемая штукатурка;
пол - стяжка со звукоизоляционной подложкой;
Сантехнические системы - на заглушке;
электросистемы - панели, выключатели, розетки, патроны;
слаботочная установка - коробки;
Выходы Wi-Fi. Площадь двора:
разделены забором из железобетонных плит и металлическим ограждением;
парковочное место - на две машины;
ландшафтное озеленение;
ландшафтное парковое освещение;
система орошения. Технические отличительных обозначенных отличительных указанных характеристики:
железобетонная конструкция - 3 мН (высота) на этаж;
стены - керамический кирпич Wienerberger Porotherm 25 см /многокамерный/ для лучшей тепло- и звукоизоляции;
фасад - вентилируемая фасадная система HPL, облицовка натуральным камнем, утепление двухслойной инжектированной каменной ватой 10 см;
столярные изделия – алюминиевые столярные изделия, термопрофиль с трехслойным остеклением, подъемно-раздвижная система с открыванием 50%;
бронированная противовзломная входная дверь;
Крыша - пенополистирол 10 см, армированная стяжка, двухслойная гидроизоляция с УФ-фактором. Мы с нетерпением ждем вашего запроса.
Если вы хотите организовать просмотр интересующей вас недвижимости или посетить один из наших офисов, пожалуйста, свяжитесь с нами. Чтобы договориться о дне и времени встречи или просмотра, вы можете позвонить по указанному в объявлении номеру телефона или отправить запрос по электронной почте. Наш консультант поможет Вам со всеми необходимыми деталями и согласует удобное для Вас время.
Вы ищете подходящую для себя недвижимость?
Не стесняйтесь обращаться к нам и рассказывать о своих потребностях и предпочтениях. Наша команда проведет углубленное исследование рынка, чтобы предложить вам объекты недвижимости, которые точно соответствуют вашим критериям. У нас есть исключительное портфолио высококачественных и эксклюзивных домов, доступных только нашим клиентам. Чтобы первыми получать информацию о них – свяжитесь с нами.
Дополнительные услуги
Как уважаемый клиент нашей компании, вы будете иметь привилегию пользоваться услугами нашей опытной юридической команды совершенно бесплатно. Кроме того, мы предлагаем комплексные решения, включая страхование имущества, бесплатные финансовые консультации, а также выгодные условия финансирования. Наши услуги также распространяются на сферы перепродажи, аренды и управления недвижимостью. Мы выполняем высококачественные ремонтные работы и меблировку помещений с помощью специализированных компаний, входящих в нашу корпоративную группу и являющихся нашими давними профессиональными партнерами.
Смотр недвижимости
Мы готовы организовать смотр недвижимости в удобное для вас время. Обратитесь к ответственному менеджеру по продажам и проинформируйте его, когда бы Вы хотели приехать на смотровой тур. Мы можем помочь Вам забронировать авиабилет и отель, а также помочь Вам оформить визу и необходимую страховку.
Бронирование недвижимости
Вы можете забронировать недвижимость, заплатив невозмещаемый задаток в размере 2 000 евро наличным платежом, кредитной картой или банковским переводом на фирменный счет компании. После получения задатка недвижимость бронируется, осмотры с другими потенциальными покупателями производиться не будут, и начнется изготовление необходимых документов по оформлению сделки. Пожалуйста, обратитесь к ответственному за данный объект менеджеру по продажам для получения подробной информации относительно процедуры покупки и способов оплаты.
Послепродажное обслуживание
Мы уважаемая компания, за плечами которой многолетний опыт работы в сфере недвижимости. Мы будем сопровождать Вас не только во время покупки, но и после приобретения недвижимости, обеспечивая Вам дополнительный набор услуг с учетом Ваших требовании, для того, чтобы Вы могли насладиться полноценным и спокойным времяпровождением в Болгарии. Услуги, которые мы можем предложить, включают страхование, строительство и ремонт, услуги по меблировке, бухгалтерские и юридическиe услуги, переоформление договоров на электричество, воду, телефон и многое другое.
Расположение на карте
Дома в закрытом комплексе в 170 метрах от пляжа в Несебре
Несебр / Бургас / Болгария карта
Цены на недвижимость: 340 000 - 450 000 € (без НДС)
Цены за м²: 2 058 - 2 358 €/м 2 (без НДС)
Квартиры в современном комплексе в 600 метрах от пляжа в Несебре
Несебр / Бургас / Болгария карта
Цены на недвижимость: 56 900 - 219 900 €
Цены за м²: 1 302 - 1 518 €/м 2
Односемейные дома в новом закрытом комплексе в Несебре
Несебр / Бургас / Болгария карта
Цены на недвижимость: 280 000 - 680 000 €
Цены за м²: 1 700 - 2 360 €/м 2
Выберите эту опцию, и мы уведомим вас по электронной почте в случае каких-либо изменений в статусе предложения, например:
• Изменение цены;
• Объект недвижимости попал в рекламное предложение;
• Имущество зарезервировано или продано;
• Другие новости, связанные с недвижимостью.
• Имущество снимается с продажи;
Вы можете легко отписаться от уведомлений в любое время.• Изменения условий предложения;
• Изменение размера инвестиций;
• Объект инвестиции полностью реализован;
• Срок действия предложения истек.
Вы сможете легко отказаться от подписки, если в будущем решите, что больше не хотите следовать этому предложению.
Для получения абсолютно корректной информации о свободных объектах недвижимости, выставленных на продажу в проекте, и их актуальных ценах, пожалуйста, свяжитесь с нашим офисом по указанным контактам.
Мы прилагаем все усилия, чтобы наши прайс-листы были абсолютно актуальными и правильными, но зачастую это невозможно, учитывая большое количество новых проектов в нашем каталоге и высокую динамику продаж.
Благодарим за понимание!



...Как проверенный специалист, Stonehard PREMIER работает над позиционированием на рынке и продажами многочисленных новых строительных проектов, реализацию которых нам доверили ведущие предпринимательские компании в Болгарии и за рубежом...