Ссылка. Число: SOF-130920 / 4218
Расположение: Малинова долина / София карта
Тип здания/комплекса: Жилой
Класс здания/комплекса: Высокий стандарт
Жилые районы: 199.46 м 2
Типы объектов недвижимости в здании/комплексе: Многокомнатные квартиры
Ссылка. Число: SOF-130920
Расположение: Малинова долина / София
Тип здания/комплекса: Жилищен
Класс здания/комплекса: Высокий стандарт
Жилые районы: 199.46 м 2
Типы объектов недвижимости в здании/комплексе: Многокомнатные квартиры
СТРОИТЕЛЬСТВО НАЧАЛОСЬ! БЕЗ КОМИССИИ ОТ ПОКУПАТЕЛЯ!
• Планируемое завершение – к концу 2026 года.
Указанная цена не включает НДС.
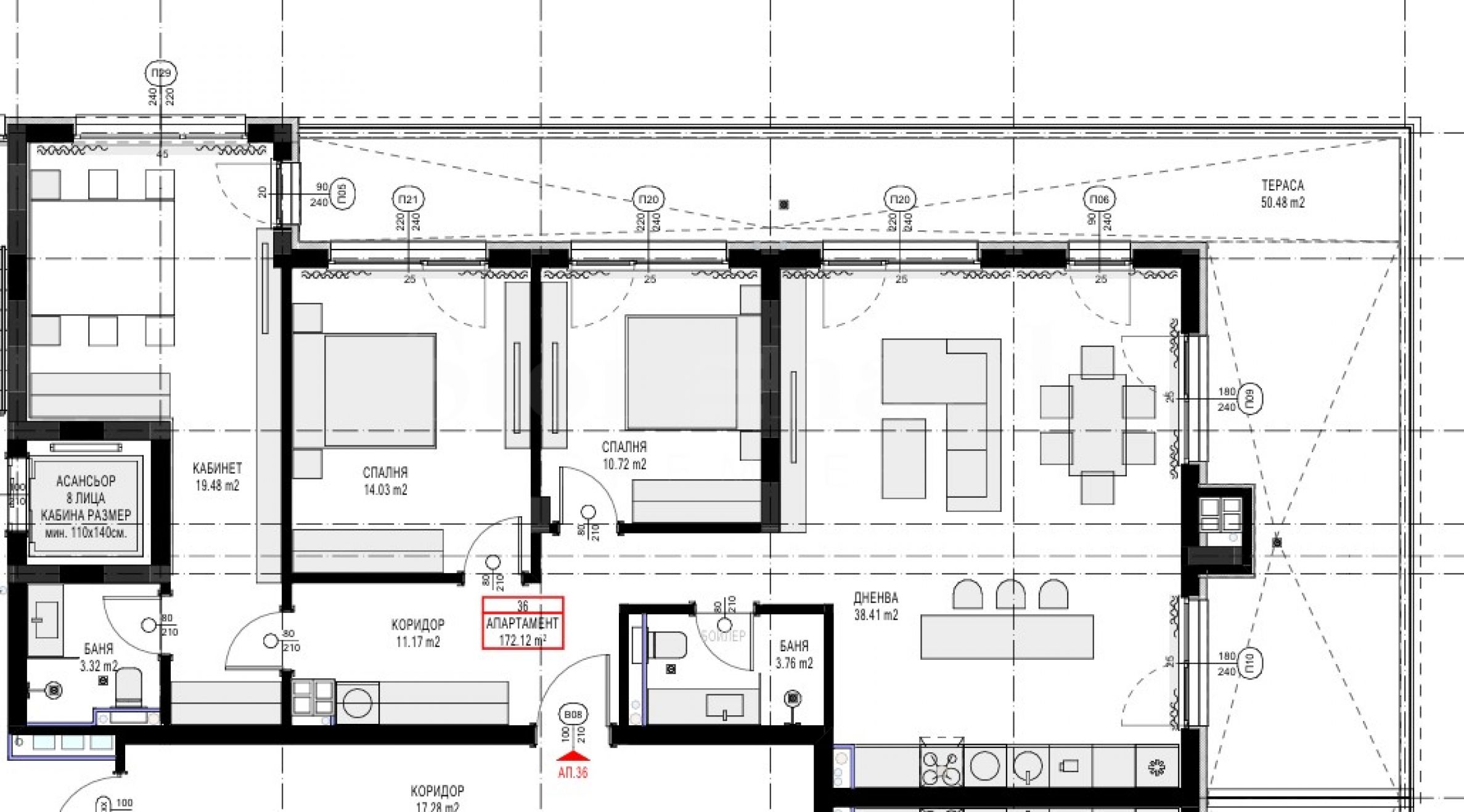
Квартира № 36 расположена на 4 этаже здания и имеет площадь 172,12 м2. Планировка: прихожая/коридор, ванная комната/туалет, гостиная с кухней и столовой, три спальни, одна из которых со своей ванной комнатой/туалетом, просторная терраса, окружающая квартиру, с выходом из гостиной и всех спален. В стоимость квартиры входит терраса площадью 50,48 м2. и кладовая площадью 2,79 м2.
Недвижимость сдаётся в состоянии, полностью завершённом в соответствии с болгарскими строительными стандартами (штукатурка и стяжка). Отопление газовое, кондиционер.
Есть возможность приобрести подземные парковочные места по цене 50 525 левов (25 833 евро) без НДС или надземные парковочные места по цене 34 227 левов (17 500 евро) без НДС.
Расположение
Новый жилой дом от архитектурного бюро TASKOV & STOYANOV из серии COMFORT RESIDENCE расположен в новообразованном районе Малинова Долина, недалеко от Национальной спортивной академии имени Василя Левского (НСА). Проект реализован известным и отмеченным наградами архитектурным бюро STUDIO CREATIVE , с которым инвестора связывает многолетнее сотрудничество.
Расположение обеспечивает отличную транспортную доступность : рядом находится будущая станция метро, линия «Надежда – Лозенец», университеты «Студенческий град», Национальная академия наук и Зимний дворец, а также быстрый доступ к Симеоновскому шоссе и Кольцевой дороге, торговому центру «Ринг Молл» и бизнес-парку «София». Также удобно добираться до природного парка «Витоша» и центральной части столицы.
Жилой комплекс «COMFORT RESIDENCE – Малинова Долина II» – образец модернистской архитектуры, сочетающий в себе эстетику, функциональность и комфорт. Здание спроектировано для создания благоприятной среды проживания, в которой свет, пространство и природа играют ведущую роль. Проект предлагает экологичную и качественную городскую жизнь, отвечающую последним тенденциям современной архитектуры на мировом уровне.
Строительство осуществляет лидер элитного строительства ELITE BUILDING COMPANY. Планируется использование самых современных технологий в сочетании с высококлассными материалами и оснащением ведущих мировых производителей:
• Кирпичи WIENERBERGER;
• Фасадный и теплоизоляционный пакет BAUMIT;
• 6-камерные столярные изделия из ПВХ DECEUNINCK. Профильная система с шириной рамы 76 мм. Фурнитура и аксессуары SIEGENIA. Толщина стеклопакета 44 мм, два прозрачных флоат-стекла толщиной 4 мм и одно низкоэмиссионное К-стекло толщиной 4 мм;
• 8-местные лифты ORONA с элегантной отделкой;
• Роскошно отделанные общие зоны по дизайнерскому проекту интерьера, включая полы из натурального полированного камня.
О здании
Функционально здание спроектировано на четырёх уровнях с последним террасным этажом. Каждый этаж спроектирован с учётом максимального комфорта и оптимального распределения квартир. На первом (втором) этаже расположены доступные квартиры с собственными зелёными двориками, а также главный вход с современным и уютным дизайном. На стандартных этажах предлагаются квартиры с просторными лоджиями и французскими окнами, которые усиливают связь с внешним пространством. Квартиры на верхнем этаже спроектированы как роскошные пентхаусы с панорамными террасами, предлагающими уникальные виды и эксклюзивное жильё. Вертикальные коммуникации обеспечиваются двумя лифтами и одной лестничной клеткой, что гарантирует функциональность и удобство.
«COMFORT RESIDENCE - Малинова Долина II» предлагает в общей сложности 40 квартир, 41 подземное парковочное место и 10 наземных (открытых) парковочных мест. На первом этаже расположены квартиры с прилегающими собственными двориками, а также открытые парковочные места.
В доме имеются двухкомнатные, трёхкомнатные и одна четырёхкомнатная квартиры. В каждой квартире имеется кладовая, которая включена в стоимость и общую площадь.
Схемы оплаты, за исключением переговоров, которые возможны, следующие:
Схема 1 с банковским кредитом:
• Задаток (стоп-капаро) – 3912 левов (2000 евро) за 2-комнатную квартиру и 5868 левов (3000 евро) за 3-комнатную и 4-комнатную квартиру. Подписывается договор задатка с обязательством подписать предварительный договор купли-продажи;
• 30% за вычетом стоп-депозита при подписании предварительного договора;
• 70% с банковским кредитом после Акта 14 (сертификат в соответствии со ст. 181 Закона о землепользовании) траншами.
Схема 2:
• Задаток (стоп-капаро) в размере 3912 левов (2000 евро) за 2-комнатную квартиру и 5868 левов (3000 евро) за 3-комнатную и 4-комнатную квартиру. Подписывается договор о задатке с обязательством подписать предварительный договор купли-продажи;
• 30% за вычетом первоначального взноса при подписании предварительного договора;
• 10% при подъеме на второй этаж здания;
• 30% при выдаче Акта 14;
• 10% на фасад и столярные изделия;
• 10% при выдаче Акта 15;
• 10% при выдаче Акта 16 (Разрешение на эксплуатацию).
Концепция
Архитекторы и застройщик вновь остановили свой выбор на жилом комплексе с современным дизайном, в котором особое внимание уделяется минималистичному стилю, чистым линиям и гармоничному взаимодействию архитектуры и окружающей среды. Композиция сочетает в себе функциональность и эстетику, предлагая открытые пространства, обильное естественное освещение и современные материалы. Здание имеет прямоугольную форму с четкой модульной структурой, что создает ощущение порядка и ритма. Расположение фасада и окон создает гармоничный образ, обеспечивая оптимальное освещение и открывая виды на окрестности и живописные горы.
Композиция фасада и материалы сочетают светлые и темные тона, создавая элегантный и чистый облик. Основной материал – светлая минеральная штукатурка, придающая зданию легкость и воздушность, а бронзовый акцент на окнах и зеленые детали – глубину и контраст. Стеклянные перила на террасах добавляют современности и прозрачности, подчёркивая связь внутреннего и внешнего пространства. Использование больших стеклянных окон (французского типа) ещё больше усиливает этот эффект, позволяя интерьеру и экстерьеру сливаться воедино. Конструкция крыши призвана придать динамику и характер силуэту, а также защитить террасы.
Благоустройство территории — ключевой элемент общего дизайна комплекса. Придомовая территория украшена богатой растительностью, декоративными деревьями, кустарниками и газонами, что создает ощущение гармонии и естественности. Особое внимание уделяется озеленению территорий с интегрированными зонами отдыха, пешеходными аллеями, выложенными декоративной плиткой, и наружной светодиодной подсветкой, которая подчеркивает архитектурные детали в темное время суток.
Преимущества «COMFORT RESIDENCE - Малинова Долина II»:
• Рядом с Национальной академией наук и Зимним дворцом, университетами «Студенческого городка» - привлекательные инвестиционные объекты для сдачи в аренду;
• Впечатляющий вид, роскошные общие зоны, безупречный дизайн;
• Оптимизированные дома с удобными и функциональными планировками;
• Газовое отопление;
• Качественное строительство и инновационные технологии;
• Инвестор с большим опытом и множеством успешно завершенных зданий.
Мы с нетерпением ждем вашего запроса.
Если вы хотите договориться о просмотре интересующего вас объекта недвижимости или посетить один из наших офисов, пожалуйста, свяжитесь с нами. Чтобы договориться о встрече или просмотре, позвоните по указанному в объявлении номеру телефона или отправьте запрос по электронной почте. Наш консультант свяжется с вами по всем необходимым вопросам и подберет удобное для вас время.
Вы ищете подходящую для себя недвижимость?
Не стесняйтесь обращаться к нам и рассказать о своих потребностях и предпочтениях. Наша команда проведёт тщательное исследование рынка, чтобы предложить вам недвижимость, которая точно соответствует вашим критериям. У нас есть исключительное портфолио высококачественных и эксклюзивных домов, доступных только нашим клиентам. Чтобы первыми получать информацию о них, свяжитесь с нами.
Дополнительные услуги
Став нашим ценным клиентом, вы получите право пользоваться услугами нашей опытной юридической команды совершенно бесплатно. Кроме того, мы предлагаем комплексные решения, включая страхование имущества, бесплатные финансовые консультации и выгодные условия финансирования. Мы также предлагаем услуги по перепродаже, аренде и управлению недвижимостью. Мы осуществляем высококачественный ремонт и меблировку через специализированные компании, входящие в нашу группу компаний и являющиеся нашими давними профессиональными партнерами.
Смотр недвижимости
Мы готовы организовать смотр недвижимости в удобное для вас время. Обратитесь к ответственному менеджеру по продажам и проинформируйте его, когда бы Вы хотели приехать на смотровой тур. Мы можем помочь Вам забронировать авиабилет и отель, а также помочь Вам оформить визу и необходимую страховку.
Бронирование недвижимости
Вы можете забронировать недвижимость, заплатив невозмещаемый задаток в размере 2 000 евро наличным платежом, кредитной картой или банковским переводом на фирменный счет компании. После получения задатка недвижимость бронируется, осмотры с другими потенциальными покупателями производиться не будут, и начнется изготовление необходимых документов по оформлению сделки. Пожалуйста, обратитесь к ответственному за данный объект менеджеру по продажам для получения подробной информации относительно процедуры покупки и способов оплаты.
Послепродажное обслуживание
Мы уважаемая компания, за плечами которой многолетний опыт работы в сфере недвижимости. Мы будем сопровождать Вас не только во время покупки, но и после приобретения недвижимости, обеспечивая Вам дополнительный набор услуг с учетом Ваших требовании, для того, чтобы Вы могли насладиться полноценным и спокойным времяпровождением в Болгарии. Услуги, которые мы можем предложить, включают страхование, строительство и ремонт, услуги по меблировке, бухгалтерские и юридическиe услуги, переоформление договоров на электричество, воду, телефон и многое другое.
Расположение на карте
СТРОИТЕЛЬСТВО НАЧАЛОСЬ! БЕЗ КОМИССИИ ОТ ПОКУПАТЕЛЯ!
• Планируемое завершение – к концу 2026 года.
Указанная цена не включает НДС.
Квартира № 36 расположена на 4 этаже здания и имеет площадь 172,12 м2. Планировка: прихожая/коридор, ванная комната/туалет, гостиная с кухней и столовой, три спальни, одна из которых со своей ванной комнатой/туалетом, просторная терраса, окружающая квартиру, с выходом из гостиной и всех спален. В стоимость квартиры входит терраса площадью 50,48 м2. и кладовая площадью 2,79 м2.
Недвижимость сдаётся в состоянии, полностью завершённом в соответствии с болгарскими строительными стандартами (штукатурка и стяжка). Отопление газовое, кондиционер.
Есть возможность приобрести подземные парковочные места по цене 50 525 левов (25 833 евро) без НДС или надземные парковочные места по цене 34 227 левов (17 500 евро) без НДС.
Расположение
Новый жилой дом от архитектурного бюро TASKOV & STOYANOV из серии COMFORT RESIDENCE расположен в новообразованном районе Малинова Долина, недалеко от Национальной спортивной академии имени Василя Левского (НСА). Проект реализован известным и отмеченным наградами архитектурным бюро STUDIO CREATIVE , с которым инвестора связывает многолетнее сотрудничество.
Расположение обеспечивает отличную транспортную доступность : рядом находится будущая станция метро, линия «Надежда – Лозенец», университеты «Студенческий град», Национальная академия наук и Зимний дворец, а также быстрый доступ к Симеоновскому шоссе и Кольцевой дороге, торговому центру «Ринг Молл» и бизнес-парку «София». Также удобно добираться до природного парка «Витоша» и центральной части столицы.
Жилой комплекс «COMFORT RESIDENCE – Малинова Долина II» – образец модернистской архитектуры, сочетающий в себе эстетику, функциональность и комфорт. Здание спроектировано для создания благоприятной среды проживания, в которой свет, пространство и природа играют ведущую роль. Проект предлагает экологичную и качественную городскую жизнь, отвечающую последним тенденциям современной архитектуры на мировом уровне.
Строительство осуществляет лидер элитного строительства ELITE BUILDING COMPANY. Планируется использование самых современных технологий в сочетании с высококлассными материалами и оснащением ведущих мировых производителей:
• Кирпичи WIENERBERGER;
• Фасадный и теплоизоляционный пакет BAUMIT;
• 6-камерные столярные изделия из ПВХ DECEUNINCK. Профильная система с шириной рамы 76 мм. Фурнитура и аксессуары SIEGENIA. Толщина стеклопакета 44 мм, два прозрачных флоат-стекла толщиной 4 мм и одно низкоэмиссионное К-стекло толщиной 4 мм;
• 8-местные лифты ORONA с элегантной отделкой;
• Роскошно отделанные общие зоны по дизайнерскому проекту интерьера, включая полы из натурального полированного камня.
О здании
Функционально здание спроектировано на четырёх уровнях с последним террасным этажом. Каждый этаж спроектирован с учётом максимального комфорта и оптимального распределения квартир. На первом (втором) этаже расположены доступные квартиры с собственными зелёными двориками, а также главный вход с современным и уютным дизайном. На стандартных этажах предлагаются квартиры с просторными лоджиями и французскими окнами, которые усиливают связь с внешним пространством. Квартиры на верхнем этаже спроектированы как роскошные пентхаусы с панорамными террасами, предлагающими уникальные виды и эксклюзивное жильё. Вертикальные коммуникации обеспечиваются двумя лифтами и одной лестничной клеткой, что гарантирует функциональность и удобство.
«COMFORT RESIDENCE - Малинова Долина II» предлагает в общей сложности 40 квартир, 41 подземное парковочное место и 10 наземных (открытых) парковочных мест. На первом этаже расположены квартиры с прилегающими собственными двориками, а также открытые парковочные места.
В доме имеются двухкомнатные, трёхкомнатные и одна четырёхкомнатная квартиры. В каждой квартире имеется кладовая, которая включена в стоимость и общую площадь.
Схемы оплаты, за исключением переговоров, которые возможны, следующие:
Схема 1 с банковским кредитом:
• Задаток (стоп-капаро) – 3912 левов (2000 евро) за 2-комнатную квартиру и 5868 левов (3000 евро) за 3-комнатную и 4-комнатную квартиру. Подписывается договор задатка с обязательством подписать предварительный договор купли-продажи;
• 30% за вычетом стоп-депозита при подписании предварительного договора;
• 70% с банковским кредитом после Акта 14 (сертификат в соответствии со ст. 181 Закона о землепользовании) траншами.
Схема 2:
• Задаток (стоп-капаро) в размере 3912 левов (2000 евро) за 2-комнатную квартиру и 5868 левов (3000 евро) за 3-комнатную и 4-комнатную квартиру. Подписывается договор о задатке с обязательством подписать предварительный договор купли-продажи;
• 30% за вычетом первоначального взноса при подписании предварительного договора;
• 10% при подъеме на второй этаж здания;
• 30% при выдаче Акта 14;
• 10% на фасад и столярные изделия;
• 10% при выдаче Акта 15;
• 10% при выдаче Акта 16 (Разрешение на эксплуатацию).
Концепция
Архитекторы и застройщик вновь остановили свой выбор на жилом комплексе с современным дизайном, в котором особое внимание уделяется минималистичному стилю, чистым линиям и гармоничному взаимодействию архитектуры и окружающей среды. Композиция сочетает в себе функциональность и эстетику, предлагая открытые пространства, обильное естественное освещение и современные материалы. Здание имеет прямоугольную форму с четкой модульной структурой, что создает ощущение порядка и ритма. Расположение фасада и окон создает гармоничный образ, обеспечивая оптимальное освещение и открывая виды на окрестности и живописные горы.
Композиция фасада и материалы сочетают светлые и темные тона, создавая элегантный и чистый облик. Основной материал – светлая минеральная штукатурка, придающая зданию легкость и воздушность, а бронзовый акцент на окнах и зеленые детали – глубину и контраст. Стеклянные перила на террасах добавляют современности и прозрачности, подчёркивая связь внутреннего и внешнего пространства. Использование больших стеклянных окон (французского типа) ещё больше усиливает этот эффект, позволяя интерьеру и экстерьеру сливаться воедино. Конструкция крыши призвана придать динамику и характер силуэту, а также защитить террасы.
Благоустройство территории — ключевой элемент общего дизайна комплекса. Придомовая территория украшена богатой растительностью, декоративными деревьями, кустарниками и газонами, что создает ощущение гармонии и естественности. Особое внимание уделяется озеленению территорий с интегрированными зонами отдыха, пешеходными аллеями, выложенными декоративной плиткой, и наружной светодиодной подсветкой, которая подчеркивает архитектурные детали в темное время суток.
Преимущества «COMFORT RESIDENCE - Малинова Долина II»:
• Рядом с Национальной академией наук и Зимним дворцом, университетами «Студенческого городка» - привлекательные инвестиционные объекты для сдачи в аренду;
• Впечатляющий вид, роскошные общие зоны, безупречный дизайн;
• Оптимизированные дома с удобными и функциональными планировками;
• Газовое отопление;
• Качественное строительство и инновационные технологии;
• Инвестор с большим опытом и множеством успешно завершенных зданий.
Мы с нетерпением ждем вашего запроса.
Если вы хотите договориться о просмотре интересующего вас объекта недвижимости или посетить один из наших офисов, пожалуйста, свяжитесь с нами. Чтобы договориться о встрече или просмотре, позвоните по указанному в объявлении номеру телефона или отправьте запрос по электронной почте. Наш консультант свяжется с вами по всем необходимым вопросам и подберет удобное для вас время.
Вы ищете подходящую для себя недвижимость?
Не стесняйтесь обращаться к нам и рассказать о своих потребностях и предпочтениях. Наша команда проведёт тщательное исследование рынка, чтобы предложить вам недвижимость, которая точно соответствует вашим критериям. У нас есть исключительное портфолио высококачественных и эксклюзивных домов, доступных только нашим клиентам. Чтобы первыми получать информацию о них, свяжитесь с нами.
Дополнительные услуги
Став нашим ценным клиентом, вы получите право пользоваться услугами нашей опытной юридической команды совершенно бесплатно. Кроме того, мы предлагаем комплексные решения, включая страхование имущества, бесплатные финансовые консультации и выгодные условия финансирования. Мы также предлагаем услуги по перепродаже, аренде и управлению недвижимостью. Мы осуществляем высококачественный ремонт и меблировку через специализированные компании, входящие в нашу группу компаний и являющиеся нашими давними профессиональными партнерами.
Смотр недвижимости
Мы готовы организовать смотр недвижимости в удобное для вас время. Обратитесь к ответственному менеджеру по продажам и проинформируйте его, когда бы Вы хотели приехать на смотровой тур. Мы можем помочь Вам забронировать авиабилет и отель, а также помочь Вам оформить визу и необходимую страховку.
Бронирование недвижимости
Вы можете забронировать недвижимость, заплатив невозмещаемый задаток в размере 2 000 евро наличным платежом, кредитной картой или банковским переводом на фирменный счет компании. После получения задатка недвижимость бронируется, осмотры с другими потенциальными покупателями производиться не будут, и начнется изготовление необходимых документов по оформлению сделки. Пожалуйста, обратитесь к ответственному за данный объект менеджеру по продажам для получения подробной информации относительно процедуры покупки и способов оплаты.
Послепродажное обслуживание
Мы уважаемая компания, за плечами которой многолетний опыт работы в сфере недвижимости. Мы будем сопровождать Вас не только во время покупки, но и после приобретения недвижимости, обеспечивая Вам дополнительный набор услуг с учетом Ваших требовании, для того, чтобы Вы могли насладиться полноценным и спокойным времяпровождением в Болгарии. Услуги, которые мы можем предложить, включают страхование, строительство и ремонт, услуги по меблировке, бухгалтерские и юридическиe услуги, переоформление договоров на электричество, воду, телефон и многое другое.
СТРОИТЕЛЬСТВО НАЧАЛОСЬ! БЕЗ КОМИССИИ ОТ ПОКУПАТЕЛЯ!
• Планируемое завершение – к концу 2026 года.
Указанная цена не включает НДС.
Квартира № 36 расположена на 4 этаже здания и имеет площадь 172,12 м2. Планировка: прихожая/коридор, ванная комната/туалет, гостиная с кухней и столовой, три спальни, одна из которых со своей ванной комнатой/туалетом, просторная терраса, окружающая квартиру, с выходом из гостиной и всех спален. В стоимость квартиры входит терраса площадью 50,48 м2. и кладовая площадью 2,79 м2.
Недвижимость сдаётся в состоянии, полностью завершённом в соответствии с болгарскими строительными стандартами (штукатурка и стяжка). Отопление газовое, кондиционер.
Есть возможность приобрести подземные парковочные места по цене 50 525 левов (25 833 евро) без НДС или надземные парковочные места по цене 34 227 левов (17 500 евро) без НДС.
Расположение
Новый жилой дом от архитектурного бюро TASKOV & STOYANOV из серии COMFORT RESIDENCE расположен в новообразованном районе Малинова Долина, недалеко от Национальной спортивной академии имени Василя Левского (НСА). Проект реализован известным и отмеченным наградами архитектурным бюро STUDIO CREATIVE , с которым инвестора связывает многолетнее сотрудничество.
Расположение обеспечивает отличную транспортную доступность : рядом находится будущая станция метро, линия «Надежда – Лозенец», университеты «Студенческий град», Национальная академия наук и Зимний дворец, а также быстрый доступ к Симеоновскому шоссе и Кольцевой дороге, торговому центру «Ринг Молл» и бизнес-парку «София». Также удобно добираться до природного парка «Витоша» и центральной части столицы.
Жилой комплекс «COMFORT RESIDENCE – Малинова Долина II» – образец модернистской архитектуры, сочетающий в себе эстетику, функциональность и комфорт. Здание спроектировано для создания благоприятной среды проживания, в которой свет, пространство и природа играют ведущую роль. Проект предлагает экологичную и качественную городскую жизнь, отвечающую последним тенденциям современной архитектуры на мировом уровне.
Строительство осуществляет лидер элитного строительства ELITE BUILDING COMPANY. Планируется использование самых современных технологий в сочетании с высококлассными материалами и оснащением ведущих мировых производителей:
• Кирпичи WIENERBERGER;
• Фасадный и теплоизоляционный пакет BAUMIT;
• 6-камерные столярные изделия из ПВХ DECEUNINCK. Профильная система с шириной рамы 76 мм. Фурнитура и аксессуары SIEGENIA. Толщина стеклопакета 44 мм, два прозрачных флоат-стекла толщиной 4 мм и одно низкоэмиссионное К-стекло толщиной 4 мм;
• 8-местные лифты ORONA с элегантной отделкой;
• Роскошно отделанные общие зоны по дизайнерскому проекту интерьера, включая полы из натурального полированного камня.
О здании
Функционально здание спроектировано на четырёх уровнях с последним террасным этажом. Каждый этаж спроектирован с учётом максимального комфорта и оптимального распределения квартир. На первом (втором) этаже расположены доступные квартиры с собственными зелёными двориками, а также главный вход с современным и уютным дизайном. На стандартных этажах предлагаются квартиры с просторными лоджиями и французскими окнами, которые усиливают связь с внешним пространством. Квартиры на верхнем этаже спроектированы как роскошные пентхаусы с панорамными террасами, предлагающими уникальные виды и эксклюзивное жильё. Вертикальные коммуникации обеспечиваются двумя лифтами и одной лестничной клеткой, что гарантирует функциональность и удобство.
«COMFORT RESIDENCE - Малинова Долина II» предлагает в общей сложности 40 квартир, 41 подземное парковочное место и 10 наземных (открытых) парковочных мест. На первом этаже расположены квартиры с прилегающими собственными двориками, а также открытые парковочные места.
В доме имеются двухкомнатные, трёхкомнатные и одна четырёхкомнатная квартиры. В каждой квартире имеется кладовая, которая включена в стоимость и общую площадь.
Схемы оплаты, за исключением переговоров, которые возможны, следующие:
Схема 1 с банковским кредитом:
• Задаток (стоп-капаро) – 3912 левов (2000 евро) за 2-комнатную квартиру и 5868 левов (3000 евро) за 3-комнатную и 4-комнатную квартиру. Подписывается договор задатка с обязательством подписать предварительный договор купли-продажи;
• 30% за вычетом стоп-депозита при подписании предварительного договора;
• 70% с банковским кредитом после Акта 14 (сертификат в соответствии со ст. 181 Закона о землепользовании) траншами.
Схема 2:
• Задаток (стоп-капаро) в размере 3912 левов (2000 евро) за 2-комнатную квартиру и 5868 левов (3000 евро) за 3-комнатную и 4-комнатную квартиру. Подписывается договор о задатке с обязательством подписать предварительный договор купли-продажи;
• 30% за вычетом первоначального взноса при подписании предварительного договора;
• 10% при подъеме на второй этаж здания;
• 30% при выдаче Акта 14;
• 10% на фасад и столярные изделия;
• 10% при выдаче Акта 15;
• 10% при выдаче Акта 16 (Разрешение на эксплуатацию).
Концепция
Архитекторы и застройщик вновь остановили свой выбор на жилом комплексе с современным дизайном, в котором особое внимание уделяется минималистичному стилю, чистым линиям и гармоничному взаимодействию архитектуры и окружающей среды. Композиция сочетает в себе функциональность и эстетику, предлагая открытые пространства, обильное естественное освещение и современные материалы. Здание имеет прямоугольную форму с четкой модульной структурой, что создает ощущение порядка и ритма. Расположение фасада и окон создает гармоничный образ, обеспечивая оптимальное освещение и открывая виды на окрестности и живописные горы.
Композиция фасада и материалы сочетают светлые и темные тона, создавая элегантный и чистый облик. Основной материал – светлая минеральная штукатурка, придающая зданию легкость и воздушность, а бронзовый акцент на окнах и зеленые детали – глубину и контраст. Стеклянные перила на террасах добавляют современности и прозрачности, подчёркивая связь внутреннего и внешнего пространства. Использование больших стеклянных окон (французского типа) ещё больше усиливает этот эффект, позволяя интерьеру и экстерьеру сливаться воедино. Конструкция крыши призвана придать динамику и характер силуэту, а также защитить террасы.
Благоустройство территории — ключевой элемент общего дизайна комплекса. Придомовая территория украшена богатой растительностью, декоративными деревьями, кустарниками и газонами, что создает ощущение гармонии и естественности. Особое внимание уделяется озеленению территорий с интегрированными зонами отдыха, пешеходными аллеями, выложенными декоративной плиткой, и наружной светодиодной подсветкой, которая подчеркивает архитектурные детали в темное время суток.
Преимущества «COMFORT RESIDENCE - Малинова Долина II»:
• Рядом с Национальной академией наук и Зимним дворцом, университетами «Студенческого городка» - привлекательные инвестиционные объекты для сдачи в аренду;
• Впечатляющий вид, роскошные общие зоны, безупречный дизайн;
• Оптимизированные дома с удобными и функциональными планировками;
• Газовое отопление;
• Качественное строительство и инновационные технологии;
• Инвестор с большим опытом и множеством успешно завершенных зданий.
Мы с нетерпением ждем вашего запроса.
Если вы хотите договориться о просмотре интересующего вас объекта недвижимости или посетить один из наших офисов, пожалуйста, свяжитесь с нами. Чтобы договориться о встрече или просмотре, позвоните по указанному в объявлении номеру телефона или отправьте запрос по электронной почте. Наш консультант свяжется с вами по всем необходимым вопросам и подберет удобное для вас время.
Вы ищете подходящую для себя недвижимость?
Не стесняйтесь обращаться к нам и рассказать о своих потребностях и предпочтениях. Наша команда проведёт тщательное исследование рынка, чтобы предложить вам недвижимость, которая точно соответствует вашим критериям. У нас есть исключительное портфолио высококачественных и эксклюзивных домов, доступных только нашим клиентам. Чтобы первыми получать информацию о них, свяжитесь с нами.
Дополнительные услуги
Став нашим ценным клиентом, вы получите право пользоваться услугами нашей опытной юридической команды совершенно бесплатно. Кроме того, мы предлагаем комплексные решения, включая страхование имущества, бесплатные финансовые консультации и выгодные условия финансирования. Мы также предлагаем услуги по перепродаже, аренде и управлению недвижимостью. Мы осуществляем высококачественный ремонт и меблировку через специализированные компании, входящие в нашу группу компаний и являющиеся нашими давними профессиональными партнерами.
Смотр недвижимости
Мы готовы организовать смотр недвижимости в удобное для вас время. Обратитесь к ответственному менеджеру по продажам и проинформируйте его, когда бы Вы хотели приехать на смотровой тур. Мы можем помочь Вам забронировать авиабилет и отель, а также помочь Вам оформить визу и необходимую страховку.
Бронирование недвижимости
Вы можете забронировать недвижимость, заплатив невозмещаемый задаток в размере 2 000 евро наличным платежом, кредитной картой или банковским переводом на фирменный счет компании. После получения задатка недвижимость бронируется, осмотры с другими потенциальными покупателями производиться не будут, и начнется изготовление необходимых документов по оформлению сделки. Пожалуйста, обратитесь к ответственному за данный объект менеджеру по продажам для получения подробной информации относительно процедуры покупки и способов оплаты.
Послепродажное обслуживание
Мы уважаемая компания, за плечами которой многолетний опыт работы в сфере недвижимости. Мы будем сопровождать Вас не только во время покупки, но и после приобретения недвижимости, обеспечивая Вам дополнительный набор услуг с учетом Ваших требовании, для того, чтобы Вы могли насладиться полноценным и спокойным времяпровождением в Болгарии. Услуги, которые мы можем предложить, включают страхование, строительство и ремонт, услуги по меблировке, бухгалтерские и юридическиe услуги, переоформление договоров на электричество, воду, телефон и многое другое.
ПРОДАЖА
ПРОЕКТ
Многокомнатная квартира в новом элитном доме в комплексе "Бояна" в Софии.
Бояна / София / София / Болгария карта
Область: 169.60 м 2
Цена: 390 080 € /// 2 300 €/м 2
ПРАВА
Synerga Premium Complex — жилое пространство, вдохновленное природой и городом
Младост 3 / София / София / Болгария карта
Класс здания: Роскошный
Цены на недвижимость: 204 271 - 877 422 € (без НДС)
Цены за м²: 2 430 - 3 200 €/м 2 (без НДС)
Новые квартиры в современном жилом доме
Витоша / София / София / Болгария карта
Цены на недвижимость: 282 700 - 796 750 €
Цены за м²: 2 500 - 3 200 €/м 2
Выберите эту опцию, и мы уведомим вас по электронной почте в случае каких-либо изменений в статусе предложения, например:
• Изменение цены;
• Объект недвижимости попал в рекламное предложение;
• Имущество зарезервировано или продано;
• Другие новости, связанные с недвижимостью.
• Имущество снимается с продажи;
Вы можете легко отписаться от уведомлений в любое время.• Изменения условий предложения;
• Изменение размера инвестиций;
• Объект инвестиции полностью реализован;
• Срок действия предложения истек.
Вы сможете легко отказаться от подписки, если в будущем решите, что больше не хотите следовать этому предложению.



...Как проверенный специалист, Stonehard PREMIER работает над позиционированием на рынке и продажами многочисленных новых строительных проектов, реализацию которых нам доверили ведущие предпринимательские компании в Болгарии и за рубежом...