Двухкомнатная квартира в новом элитном комплексе в нескольких метрах от моря в Царево
на карте
Цена:
99 100 € (1 446 €/м 2)
*Цены и наличие свободных площадей в проекте указаны ориентировочно. Для получения актуальной информации о ценах, пожалуйста, свяжитесь с нами!
Ссылка. Число: LXH-130715 / 3901
Расположение: Царево карта
Тип здания/комплекса: Жилой
Жилые районы: 68.54 м 2
Типы объектов недвижимости в здании/комплексе: Двухкомнатные квартиры
Ссылка. Число: LXH-130715 / 3901
Расположение: Царево
Тип здания/комплекса: Жилой
Класс здания/комплекса:
Жилые районы: 68.54 м 2
Типы объектов недвижимости в здании/комплексе: Двухкомнатные квартиры
Ожидаемый акт 16 — декабрь 2025 г.
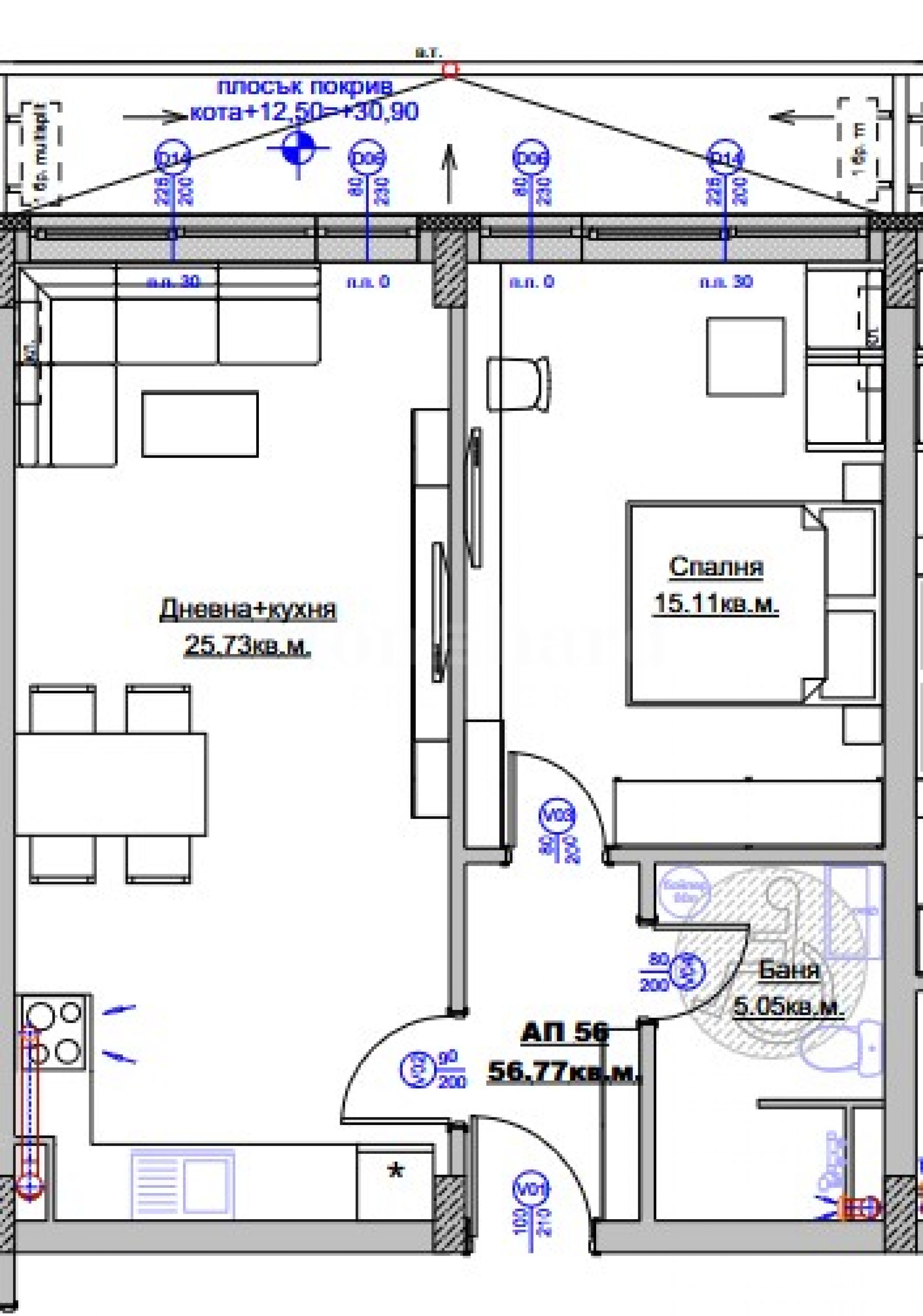
Представляем на продажу однокомнатную квартиру в новом закрытом комплексе, состоящем из трех элитных зданий, в нескольких метрах от Центрального пляжа в Царево.
Квартира общей площадью 68,54 кв. метров. расположена на 4 этаже и состоит из прихожей, гостиной с кухней, спальни, ванной комнаты с туалетом. Квартира сдаётся в состоянии, соответствующем болгарским строительным нормам, со штукатуркой и стяжкой.
Здания имеют элегантный и современный вид, а комбинированные фасады из HPL, Etalbond и минеральной штукатурки создают ощущение уюта и комфорта. Квартиры представляют собой студии, однокомнатные и трёхкомнатные квартиры площадью от 47,15 до 120 кв. метров. с живописными видами на море и пляж.
Качественное новое строительство:
Системы теплоизоляции Baumit;
HPL-панели Fundermax;
Столярные изделия Etem;
Пластыри R?fix;
гидроизоляция VGF;
кирпичи Wienerberger;
три лифта TechPro;
Электротехнические материалы Legrand;
Подвесные потолки Кнауф;
Напольное покрытие Semmelrock. *Указанная цена действительна для варианта оплаты B.
Парковка осуществляется через подземные гаражи и надземные парковочные места.
Мы с нетерпением ждем вашего запроса.
Если вы хотите договориться о просмотре интересующего вас объекта недвижимости или посетить один из наших офисов, пожалуйста, свяжитесь с нами. Чтобы договориться о встрече или просмотре, позвоните по указанному в объявлении номеру телефона или отправьте запрос по электронной почте. Наш консультант свяжется с вами по всем необходимым вопросам и подберет удобное для вас время.
Вы ищете подходящую для себя недвижимость?
Не стесняйтесь обращаться к нам и рассказать о своих потребностях и предпочтениях. Наша команда проведёт тщательное исследование рынка, чтобы предложить вам недвижимость, которая точно соответствует вашим критериям. У нас есть исключительное портфолио высококачественных и эксклюзивных домов, доступных только нашим клиентам. Чтобы первыми получать информацию о них, свяжитесь с нами.
Дополнительные услуги
Став нашим ценным клиентом, вы получите право пользоваться услугами нашей опытной юридической команды совершенно бесплатно. Кроме того, мы предлагаем комплексные решения, включая страхование имущества, бесплатные финансовые консультации и выгодные условия финансирования. Мы также предлагаем услуги по перепродаже, аренде и управлению недвижимостью. Мы осуществляем высококачественный ремонт и меблировку через специализированные компании, входящие в нашу группу компаний и являющиеся нашими давними профессиональными партнерами.
Смотр недвижимости
Мы готовы организовать смотр недвижимости в удобное для вас время. Обратитесь к ответственному менеджеру по продажам и проинформируйте его, когда бы Вы хотели приехать на смотровой тур. Мы можем помочь Вам забронировать авиабилет и отель, а также помочь Вам оформить визу и необходимую страховку.
Бронирование недвижимости
Вы можете забронировать недвижимость, заплатив невозмещаемый задаток в размере 2 000 евро наличным платежом, кредитной картой или банковским переводом на фирменный счет компании. После получения задатка недвижимость бронируется, осмотры с другими потенциальными покупателями производиться не будут, и начнется изготовление необходимых документов по оформлению сделки. Пожалуйста, обратитесь к ответственному за данный объект менеджеру по продажам для получения подробной информации относительно процедуры покупки и способов оплаты.
Послепродажное обслуживание
Мы уважаемая компания, за плечами которой многолетний опыт работы в сфере недвижимости. Мы будем сопровождать Вас не только во время покупки, но и после приобретения недвижимости, обеспечивая Вам дополнительный набор услуг с учетом Ваших требовании, для того, чтобы Вы могли насладиться полноценным и спокойным времяпровождением в Болгарии. Услуги, которые мы можем предложить, включают страхование, строительство и ремонт, услуги по меблировке, бухгалтерские и юридическиe услуги, переоформление договоров на электричество, воду, телефон и многое другое.
Расположение на карте
ПРОДАЖА
ПРОЕКТ
Двухкомнатная квартира в закрытом комплексе на первой линии моря в Царево
Царево / Бургас / Болгария карта
Область: 71.55 м 2
Цена: 110 000 € /// 1 537 €/м 2
ПРАВА
ПРОДАЖА
ПРОЕКТ
Новые квартиры в современном жилом доме в Царево
Царево / Бургас / Болгария карта
Класс здания: Высокий стандарт
Цены на недвижимость: 80 660 - 181 780 €
Цены за м²: 1 280 - 1 942 €/м 2
ПРОДАЖА
ПРОЕКТ
Двухкомнатная квартира с фронтальным видом на море рядом с пляжем Нестинарка
Царево / Бургас / Болгария карта
Область: 71.55 м 2
Цена: 104 900 € /// 1 466 €/м 2
Выберите эту опцию, и мы уведомим вас по электронной почте в случае каких-либо изменений в статусе предложения, например:
• Изменение цены;
• Объект недвижимости попал в рекламное предложение;
• Имущество зарезервировано или продано;
• Другие новости, связанные с недвижимостью.
• Имущество снимается с продажи;
Вы можете легко отписаться от уведомлений в любое время.• Изменения условий предложения;
• Изменение размера инвестиций;
• Объект инвестиции полностью реализован;
• Срок действия предложения истек.
Вы сможете легко отказаться от подписки, если в будущем решите, что больше не хотите следовать этому предложению.
Для получения абсолютно корректной информации о свободных объектах недвижимости, выставленных на продажу в проекте, и их актуальных ценах, пожалуйста, свяжитесь с нашим офисом по указанным контактам.
Мы прилагаем все усилия, чтобы наши прайс-листы были абсолютно актуальными и правильными, но зачастую это невозможно, учитывая большое количество новых проектов в нашем каталоге и высокую динамику продаж.
Благодарим за понимание!



...Как проверенный специалист, Stonehard PREMIER работает над позиционированием на рынке и продажами многочисленных новых строительных проектов, реализацию которых нам доверили ведущие предпринимательские компании в Болгарии и за рубежом...