Двухкомнатная квартира с большим двором в районе «Малиновая долина»
REF#SOF-130199
/
Двухкомнатные квартиры
/
Реализованные проекты
/
София
/
Малинова долина
/
София
/
Болгария
на карте
Цена:
268 144 € (3 881 €/м 2)
*Цены и наличие свободных площадей в проекте указаны ориентировочно. Для получения актуальной информации о ценах, пожалуйста, свяжитесь с нами!
Ссылка. Число: SOF-130199 / 3396
Расположение: Малинова долина / София карта
Тип здания/комплекса: Жилой
Жилые районы: 69.10 м 2
Типы объектов недвижимости в здании/комплексе: Двухкомнатные квартиры
Ссылка. Число: SOF-130199 / 3396
Расположение: Малинова долина / София
Тип здания/комплекса: Жилой
Класс здания/комплекса:
Жилые районы: 69.10 м 2
Типы объектов недвижимости в здании/комплексе: Двухкомнатные квартиры
ПЕРЕД АКТОМ 15!
Удобное расположение рядом с улицей профессора Григора Азаряна, откуда можно легко добраться до Симеоновского шоссе и бульвара Климента Охридского, а оттуда — до любой точки столицы. В пешей доступности находятся Зимний дворец спорта, Национальная спортивная академия, парк Вартопо и все удобства студенческого района.
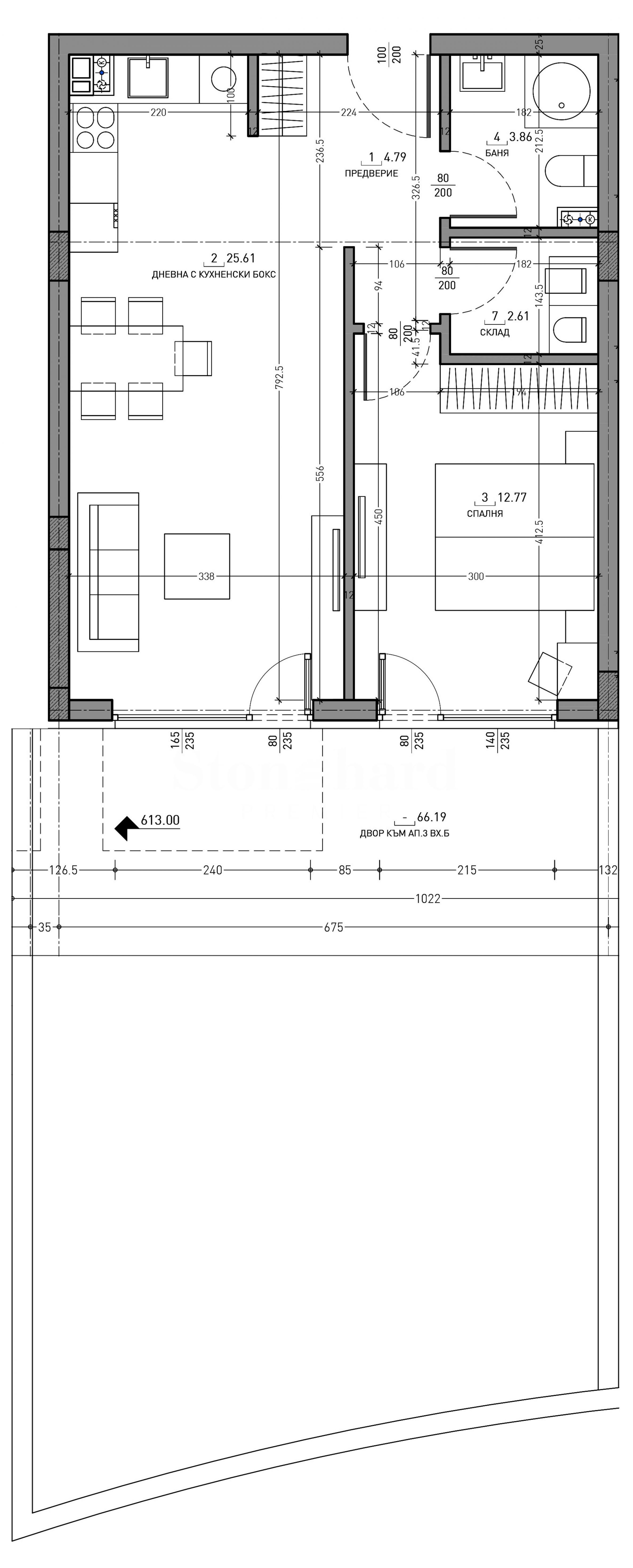
Квартира расположена на 1-м этаже из 4, ориентирована на запад и имеет общую площадь 69,10 кв. м.
Распределение:
прихожая/коридор;
ванная комната с туалетом - 3,86 кв. метров;
кладовая/мокрое помещение - 2,61 кв. метров;
спальня 12,77 кв. метров;
гостиная с кухней и столовой - 25,61 кв. метров;
двор 66,19 кв. метров. Квартира продается со стенами из штукатурки, полами из цементной штукатурки, внутренней базовой электропроводкой, электро- и сантехническими установками, входными дверями класса люкс.
О комплексе
Комплекс состоит из трёх четырёхэтажных зданий и собственного парка площадью 1500 кв. м., с богатым озеленением и отсутствием автомобильного движения, что обеспечит жильцам спокойную атмосферу жизни. Квартиры имеют функциональные планировки и выгодные экспозиции, из большинства открывается вид на гору Витоша.
Парковка осуществляется в подземных гаражах с возможностью выкупа по цене от 34 000 евро (66 498 левов).
Технические перечисленных перечисленных обозначенных характеристики:
конструкция - железобетон, монолитная;
система гидроизоляции по всему подвалу, а также на чердаках и террасах;
Утепление фасада - пенополистирол 12 см с декоративной облицовкой из системы Caparol Meldorfer (клинкерный кирпич);
утепление крыши 12 см XPS;
зоны общего пользования с гранитными полами, имитирующими натуральный камень, потолками из гипсокартона со светодиодной подсветкой;
лифты - Орона;
Окна металлопластиковые Deceuninck 6-камерные, тройной стеклопакет;
система внутренней связи для контролируемого доступа;
Электроотопление с плановой установкой теплового насоса. Всегда чистый воздух без потерь тепла
В квартирах будет установлена индивидуальная система рекуперации тепла, обеспечивающая воздухообмен и постоянный приток чистого и свежего воздуха. Система будет использоваться как в холодное, так и в теплое время года.
Расстояния:
1,6 км от крупнейшего торгового центра столицы - Ring Mall Sofia;
300 м от парка Вартопо II;
2 км от Студенческого парка;
500 м от автобусной остановки;
3 км от станции метро «Младость»;
В районе есть магазины Fantastico, Kaufland, LIDL;
В непосредственной близости от участка находится множество магазинов, кафе и ресторанов в квартале «Студенческий Град». Проект является работой строительно-инвестиционной компании, имеющей 15-летний опыт работы в сфере жилищного, промышленного и инфраструктурного строительства в нашей стране.
Для получения дополнительной информации о типе интересующей вас недвижимости обратитесь к брокеру, ответственному за предложение.
Смотр недвижимости
Мы готовы организовать смотр недвижимости в удобное для вас время. Обратитесь к ответственному менеджеру по продажам и проинформируйте его, когда бы Вы хотели приехать на смотровой тур. Мы можем помочь Вам забронировать авиабилет и отель, а также помочь Вам оформить визу и необходимую страховку.
Бронирование недвижимости
Вы можете забронировать недвижимость, заплатив невозмещаемый задаток в размере 2 000 евро наличным платежом, кредитной картой или банковским переводом на фирменный счет компании. После получения задатка недвижимость бронируется, осмотры с другими потенциальными покупателями производиться не будут, и начнется изготовление необходимых документов по оформлению сделки. Пожалуйста, обратитесь к ответственному за данный объект менеджеру по продажам для получения подробной информации относительно процедуры покупки и способов оплаты.
Послепродажное обслуживание
Мы уважаемая компания, за плечами которой многолетний опыт работы в сфере недвижимости. Мы будем сопровождать Вас не только во время покупки, но и после приобретения недвижимости, обеспечивая Вам дополнительный набор услуг с учетом Ваших требовании, для того, чтобы Вы могли насладиться полноценным и спокойным времяпровождением в Болгарии. Услуги, которые мы можем предложить, включают страхование, строительство и ремонт, услуги по меблировке, бухгалтерские и юридическиe услуги, переоформление договоров на электричество, воду, телефон и многое другое.
Расположение на карте
ПРАВА
ПРОДАЖА
ПРОЕКТ
Просторная однокомнатная квартира в закрытом жилом комплексе в районе Горна Банья.
Горна баня / София / София / Болгария карта
Область: 98 м 2
Цена: 225 422 € /// 2 300 €/м 2
ПРАВА
ПРОДАЖА
ПРОЕКТ
Дизайнерская квартира с парковочным местом в элитном здании ОКИНАВА
Малинова долина / София / София / Болгария карта
Класс здания/комплекса: Высокий стандарт
Область: 76.54 м 2
Цена: 244 900 € /// 3 200 €/м 2
ПРОДАЖА
ПРОЕКТ
Новая двухкомнатная квартира на юге страны, готовая к заселению.
Гоце Делчев / София / София / Болгария карта
Область: 69 м 2
Цена: 270 000 € /// 3 913 €/м 2
Выберите эту опцию, и мы уведомим вас по электронной почте в случае каких-либо изменений в статусе предложения, например:
• Изменение цены;
• Объект недвижимости попал в рекламное предложение;
• Имущество зарезервировано или продано;
• Другие новости, связанные с недвижимостью.
• Имущество снимается с продажи;
Вы можете легко отписаться от уведомлений в любое время.• Изменения условий предложения;
• Изменение размера инвестиций;
• Объект инвестиции полностью реализован;
• Срок действия предложения истек.
Вы сможете легко отказаться от подписки, если в будущем решите, что больше не хотите следовать этому предложению.
Для получения абсолютно корректной информации о свободных объектах недвижимости, выставленных на продажу в проекте, и их актуальных ценах, пожалуйста, свяжитесь с нашим офисом по указанным контактам.
Мы прилагаем все усилия, чтобы наши прайс-листы были абсолютно актуальными и правильными, но зачастую это невозможно, учитывая большое количество новых проектов в нашем каталоге и высокую динамику продаж.
Благодарим за понимание!



...Как проверенный специалист, Stonehard PREMIER работает над позиционированием на рынке и продажами многочисленных новых строительных проектов, реализацию которых нам доверили ведущие предпринимательские компании в Болгарии и за рубежом...