Двухкомнатная квартира в новом доме в быстроразвивающемся районе Бургаса
REF#LXH-128326
/
Двухкомнатные квартиры
/
Реализованные проекты
/
Бургас
/
Славейков
/
Бургас
/
Болгария
на карте
Цена:
106 816 € (1 600 €/м 2)
*Цены и наличие свободных площадей в проекте указаны ориентировочно. Для получения актуальной информации о ценах, пожалуйста, свяжитесь с нами!
Ссылка. Число: LXH-128326 / 4081
Расположение: Славейков / Бургас карта
Тип здания/комплекса: Жилой
Жилые районы: 66.76 м 2
Типы объектов недвижимости в здании/комплексе: Двухкомнатные квартиры
Ссылка. Число: LXH-128326 / 4081
Расположение: Славейков / Бургас
Тип здания/комплекса: Жилой
Класс здания/комплекса:
Жилые районы: 66.76 м 2
Типы объектов недвижимости в здании/комплексе: Двухкомнатные квартиры
Начало строительства - июль 2025 г.
Ожидаемый акт 16 - июль 2028 г.
Местоположение отличается развитой инфраструктурой, отличным подъездом и наличием всего необходимого для проживания поблизости, а также университета, магазинов, фитнеса, METRO, OMV и важных автодорог.
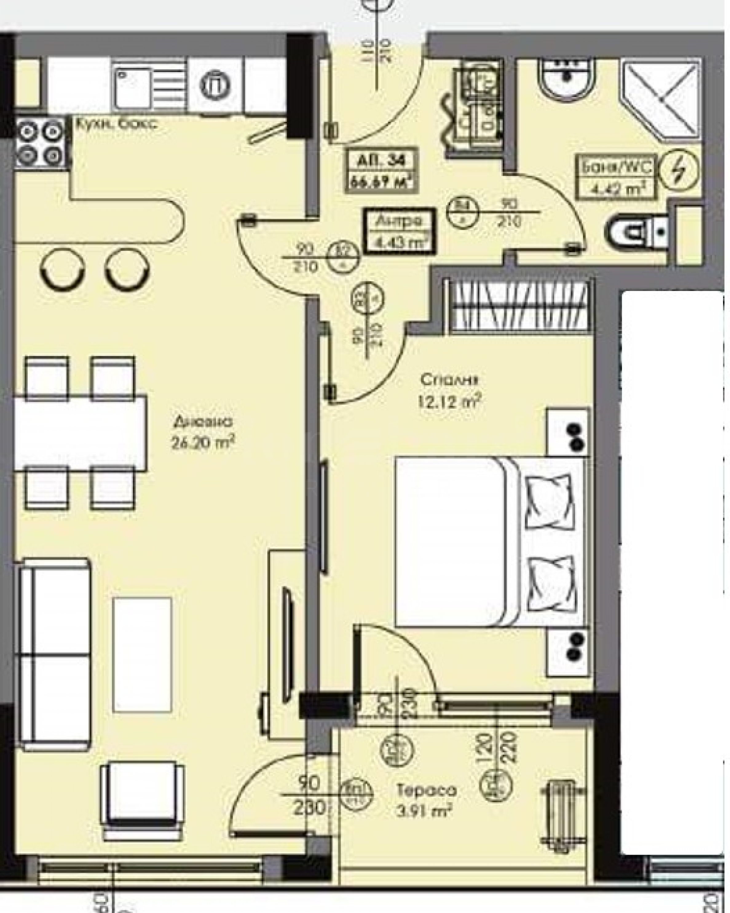
Общая площадь объекта составляет 66,76 кв. м., он расположен на 4 этаже.
Распределение:
коридор;
гостиная с кухней;
спальня;
ванная комната с туалетом;
склад;
Терраса с выходом из обеих комнат. Выдается в степени готовности согласно Болгарским строительным нормам, под шпатлевку и стяжку.
Комплекс представляет собой многофункциональное здание, на первом этаже которого запланированы коммерческие помещения и офисы.
Строительство планируется в соответствии с самыми современными стандартами:
высокий уровень энергоэффективности;
немецкие воздухопроницаемые окна с тройным остеклением;
внутренняя установка отопления рядом с радиатором;
высокотехнологичные и современные фасады;
класс энергопотребления А;
высококачественные отделочные материалы. Мы с нетерпением ждем вашего запроса.
Если вы хотите организовать просмотр интересующей вас недвижимости или посетить один из наших офисов, пожалуйста, свяжитесь с нами. Чтобы договориться о дне и времени встречи или просмотра, вы можете позвонить по указанному в объявлении номеру телефона или отправить запрос по электронной почте. Наш консультант поможет Вам со всеми необходимыми деталями и согласует удобное для Вас время.
Вы ищете подходящую для себя недвижимость?
Не стесняйтесь обращаться к нам и рассказывать о своих потребностях и предпочтениях. Наша команда проведет углубленное исследование рынка, чтобы предложить вам объекты недвижимости, которые точно соответствуют вашим критериям. У нас есть исключительное портфолио высококачественных и эксклюзивных домов, доступных только нашим клиентам. Чтобы первыми получать информацию о них – свяжитесь с нами.
Дополнительные услуги
Как уважаемый клиент нашей компании, вы будете иметь привилегию пользоваться услугами нашей опытной юридической команды совершенно бесплатно. Кроме того, мы предлагаем комплексные решения, включая страхование имущества, бесплатные финансовые консультации, а также выгодные условия финансирования. Наши услуги также распространяются на сферы перепродажи, аренды и управления недвижимостью. Мы выполняем высококачественные ремонтные работы и меблировку помещений с помощью специализированных компаний, входящих в нашу корпоративную группу и являющихся нашими давними профессиональными партнерами.
Смотр недвижимости
Мы готовы организовать смотр недвижимости в удобное для вас время. Обратитесь к ответственному менеджеру по продажам и проинформируйте его, когда бы Вы хотели приехать на смотровой тур. Мы можем помочь Вам забронировать авиабилет и отель, а также помочь Вам оформить визу и необходимую страховку.
Бронирование недвижимости
Вы можете забронировать недвижимость, заплатив невозмещаемый задаток в размере 2 000 евро наличным платежом, кредитной картой или банковским переводом на фирменный счет компании. После получения задатка недвижимость бронируется, осмотры с другими потенциальными покупателями производиться не будут, и начнется изготовление необходимых документов по оформлению сделки. Пожалуйста, обратитесь к ответственному за данный объект менеджеру по продажам для получения подробной информации относительно процедуры покупки и способов оплаты.
Послепродажное обслуживание
Мы уважаемая компания, за плечами которой многолетний опыт работы в сфере недвижимости. Мы будем сопровождать Вас не только во время покупки, но и после приобретения недвижимости, обеспечивая Вам дополнительный набор услуг с учетом Ваших требовании, для того, чтобы Вы могли насладиться полноценным и спокойным времяпровождением в Болгарии. Услуги, которые мы можем предложить, включают страхование, строительство и ремонт, услуги по меблировке, бухгалтерские и юридическиe услуги, переоформление договоров на электричество, воду, телефон и многое другое.
Расположение на карте
Квартиры в новом, 5-м здании современного комплекса рядом с торговым центром «Бургас Плаза»
Хоризонт / Бургас / Бургас / Болгария карта
Цены на недвижимость: 90 000 - 207 000 €
Цены за м²: 1 390 - 1 580 €/м 2
Квартиры в новом комплексе с современным дизайном в районе «Славейков», Бургас
Славейков / Бургас / Бургас / Болгария карта
Цены на недвижимость: Цена по запросу
Квартиры в новом, современном закрытом жилом комплексе в районе «Горизонт»
Хоризонт / Бургас / Бургас / Болгария карта
Цены на недвижимость: 93 308 - 219 303 €
Цены за м²: 1 239 - 1 358 €/м 2
Выберите эту опцию, и мы уведомим вас по электронной почте в случае каких-либо изменений в статусе предложения, например:
• Изменение цены;
• Объект недвижимости попал в рекламное предложение;
• Имущество зарезервировано или продано;
• Другие новости, связанные с недвижимостью.
• Имущество снимается с продажи;
Вы можете легко отписаться от уведомлений в любое время.• Изменения условий предложения;
• Изменение размера инвестиций;
• Объект инвестиции полностью реализован;
• Срок действия предложения истек.
Вы сможете легко отказаться от подписки, если в будущем решите, что больше не хотите следовать этому предложению.
Для получения абсолютно корректной информации о свободных объектах недвижимости, выставленных на продажу в проекте, и их актуальных ценах, пожалуйста, свяжитесь с нашим офисом по указанным контактам.
Мы прилагаем все усилия, чтобы наши прайс-листы были абсолютно актуальными и правильными, но зачастую это невозможно, учитывая большое количество новых проектов в нашем каталоге и высокую динамику продаж.
Благодарим за понимание!



...Как проверенный специалист, Stonehard PREMIER работает над позиционированием на рынке и продажами многочисленных новых строительных проектов, реализацию которых нам доверили ведущие предпринимательские компании в Болгарии и за рубежом...