Трехкомнатная квартира возле метро Овча Купель в районе Красна Поляна 2
Цена:
197 496 € (1 950 €/м 2)
*Цены и наличие свободных площадей в проекте указаны ориентировочно. Для получения актуальной информации о ценах, пожалуйста, свяжитесь с нами!
Ссылка. Число: SOF-128015 / 4031
Расположение: Красна поляна 2 / София карта
Тип здания/комплекса: Жилой
Жилые районы: 101.30 м 2
Типы объектов недвижимости в здании/комплексе: Трёхкомнатные квартиры
Ссылка. Число: SOF-128015 / 4031
Расположение: Красна поляна 2 / София
Тип здания/комплекса: Жилой
Класс здания/комплекса:
Жилые районы: 101.30 м 2
Типы объектов недвижимости в здании/комплексе: Трёхкомнатные квартиры
С покупателя комиссия не взимается!
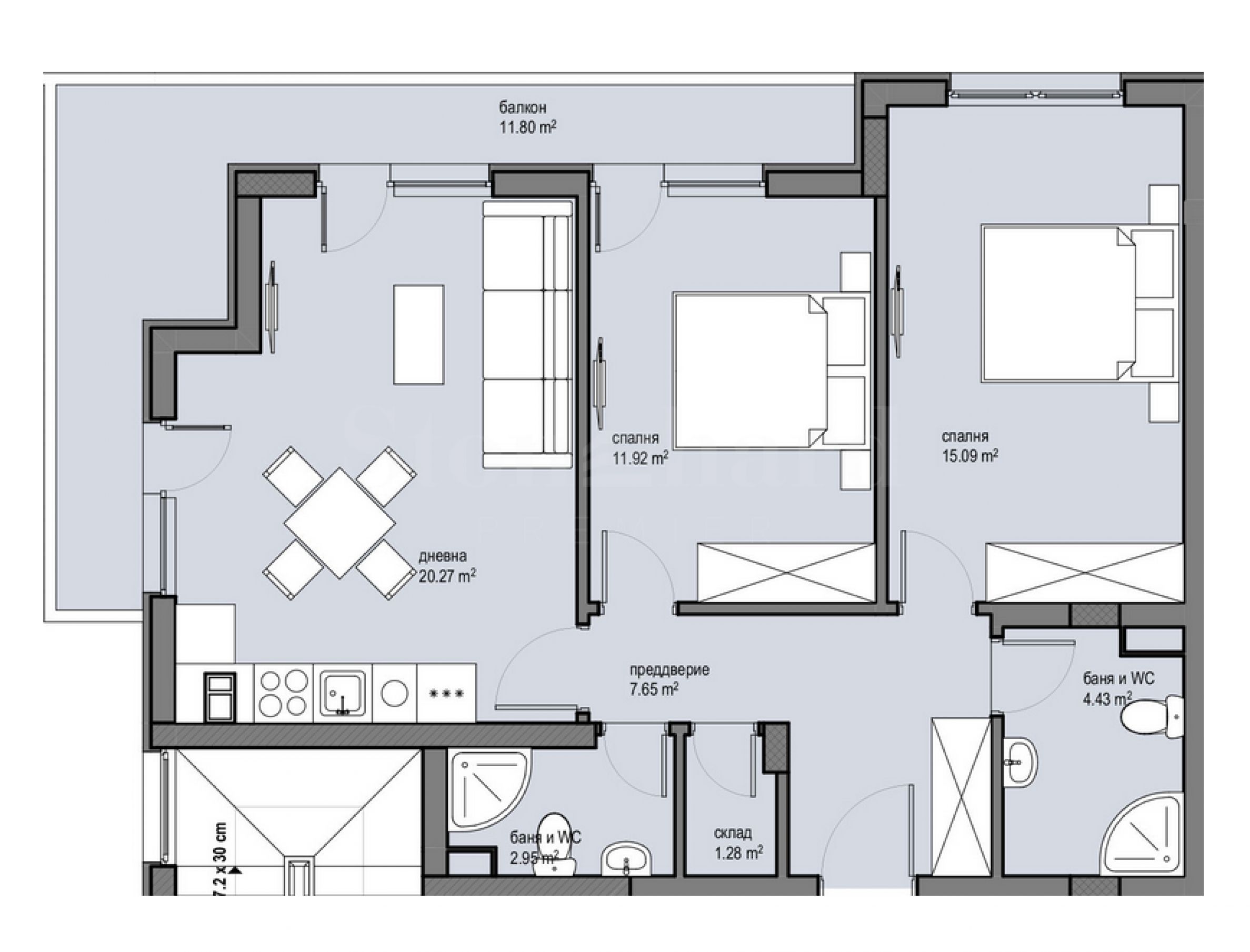
Объект расположен на втором этаже, подъезд «А», и имеет общую площадь 101,30 кв. м. Ориентация – западная.
Распределение:
коридор;
ванная комната;
туалет
две спальни;
Гостиная, объединенная с кухней и столовой, с выходом на террасу. Степень завершенности согласно BDS:
Оконные рамы из ПВХ с шестью секциями, немецкий профиль с тройным остеклением, одно стеклопакет с низким уровнем излучения;
Входная дверь квартиры — бронированная, с высококлассным секретным замком;
отопление - газ;
Отделка стен и потолков до уровня гипсовой штукатурки с укладкой алюминиевых угловых защитных элементов по краям; потолки неотапливаемых помещений, граничащих с отапливаемыми помещениями, с теплоизоляцией из экструдированного пенополистирола (XPS); в ванных комнатах, туалетах и душевых с известково-цементной штукатуркой;
Цементная стяжка на полу; террасы с гранитной плиткой;
установленная в квартире панель, расположенная рядом с входной дверью дома;
Низковольтные установки – выполнены в соответствии с проектом с установкой низковольтного распределительного щита у входной двери;
проводка для системы безопасности;
Установка видеодомофона: прокладка проводов завершена, установлен видеодомофон и панель видеодомофона рядом с входной дверью;
установлены электросчетчики. Здание находится на стадии "чернового строительства", завершение работ запланировано на июнь 2026 года.
Он расположен в юго-западной части Софии, в непосредственной близости от новой станции метро «Овча Купел», что облегчает доступ к некоторым крупным высшим учебным заведениям, таким как НБУ и Софийский университет.
Рядом со зданием расположены различные сети супермаркетов, спортивные залы, больница «Надежда», рынок «Росица», школы и детские сады — средняя школа им. Стефана Стамболова (123), СВДИ (51), ДГ № 126 Тинтява, начальная школа им. Любена Каравелова (136) и средняя школа им. 147. Также неподалеку находятся стадион «Септември» и «Славия», Западный парк, парк Святых Петра и Павла, конноспортивный центр «Хан Аспарух», картинг «Красная Поляна» и др.
В районе хорошо развита транспортная инфраструктура, и он обслуживается всеми видами общественного транспорта: станцией метро, трамваями № 4, 11, 22 и автобусами № 11, 60 и 83.
Восьмиэтажное здание с тремя входами будет иметь привлекательный клинкерный фасад и предложит в общей сложности 131 квартиру, при этом в продаже будет ограниченное количество трех- и четырехкомнатных квартир с функциональной планировкой и просторными комнатами.
Технические указанных обозначенных характеристики здания:
монолитная железобетонная бесбалочная фундаментная плита;
гидроизоляция фундамента здания - Kryton International Inc. Система Krystol Waterstop;
Каменная кладка из керамических кирпичей WIENERBERGER;
Внешние ограждающие стены - керамический кирпич Porotherm 25 см и система теплоизоляции /вспененный полистирол EPS/;
Для внутренних кирпичных стен — керамический кирпич Porotherm 12 см, со звукоизоляцией между квартирами;
Плоская кровля с детально уложенными слоями: пароизоляция, теплоизоляция из экструдированного пенополистирола (XPS), армированная стяжка с уклоном, два слоя гидроизоляции из прокатанного битума; без тепловых мостов на несущих элементах;
Общие зоны - гранитная плитка или натуральный камень;
лифты с роскошными кабинами и автоматическими дверями. Мы с нетерпением ждём вашего запроса.
Если вы хотите договориться о просмотре интересующего вас объекта недвижимости или посетить один из наших офисов, пожалуйста, свяжитесь с нами. Чтобы согласовать день и время встречи или просмотра, вы можете позвонить по номеру телефона, указанному в объявлении, или отправить запрос по электронной почте. Наш консультант поможет вам со всеми необходимыми деталями и согласует удобное для вас время.
Вы ищете подходящую недвижимость?
Не стесняйтесь обращаться к нам и рассказывать о ваших потребностях и предпочтениях. Наша команда проведет тщательное исследование рынка, чтобы предложить вам объекты недвижимости, точно соответствующие вашим критериям. У нас есть исключительное портфолио высококачественных и эксклюзивных домов, доступных только нашим клиентам. Чтобы первыми получать информацию о них – свяжитесь с нами.
Дополнительные услуги
Как ценный клиент нашей компании, вы получите привилегию пользоваться услугами нашей опытной юридической команды совершенно бесплатно. Кроме того, мы предлагаем комплексные решения, включая страхование недвижимости, бесплатные финансовые консультации, а также выгодные условия финансирования. Наши услуги также распространяются на сферу перепродажи, аренды и управления недвижимостью. Мы предоставляем высококачественные услуги по ремонту и меблировке через специализированные компании, входящие в нашу корпоративную группу и являющиеся нашими давними профессиональными партнерами.
Смотр недвижимости
Мы готовы организовать смотр недвижимости в удобное для вас время. Обратитесь к ответственному менеджеру по продажам и проинформируйте его, когда бы Вы хотели приехать на смотровой тур. Мы можем помочь Вам забронировать авиабилет и отель, а также помочь Вам оформить визу и необходимую страховку.
Бронирование недвижимости
Вы можете забронировать недвижимость, заплатив невозмещаемый задаток в размере 2 000 евро наличным платежом, кредитной картой или банковским переводом на фирменный счет компании. После получения задатка недвижимость бронируется, осмотры с другими потенциальными покупателями производиться не будут, и начнется изготовление необходимых документов по оформлению сделки. Пожалуйста, обратитесь к ответственному за данный объект менеджеру по продажам для получения подробной информации относительно процедуры покупки и способов оплаты.
Послепродажное обслуживание
Мы уважаемая компания, за плечами которой многолетний опыт работы в сфере недвижимости. Мы будем сопровождать Вас не только во время покупки, но и после приобретения недвижимости, обеспечивая Вам дополнительный набор услуг с учетом Ваших требовании, для того, чтобы Вы могли насладиться полноценным и спокойным времяпровождением в Болгарии. Услуги, которые мы можем предложить, включают страхование, строительство и ремонт, услуги по меблировке, бухгалтерские и юридическиe услуги, переоформление договоров на электричество, воду, телефон и многое другое.
Расположение на карте
ПРОДАЖА
ПРОЕКТ
Панорамная двухкомнатная квартира в районе Крастова Вада в элитном доме.
Кръстова вада / София / София / Болгария карта
Область: 125.61 м 2
Цена: 305 000 € /// 2 428 €/м 2
ПРОДАЖА
ПРОЕКТ
Однокомнатная квартира с панорамной террасой и гаражом в закрытом жилом комплексе.
Студентски град / София / София / Болгария карта
Область: 220 м 2
Цена: 440 000 € /// 2 000 €/м 2
ПРОДАЖА
ПРОЕКТ
Двухкомнатная квартира в инновационном, энергоэффективном жилом здании с фотоэлектрической установкой.
Манастирски ливади - Изток / София / София / Болгария карта
Область: 111.55 м 2
Цена: 295 615 € /// 2 650 €/м 2
Выберите эту опцию, и мы уведомим вас по электронной почте в случае каких-либо изменений в статусе предложения, например:
• Изменение цены;
• Объект недвижимости попал в рекламное предложение;
• Имущество зарезервировано или продано;
• Другие новости, связанные с недвижимостью.
• Имущество снимается с продажи;
Вы можете легко отписаться от уведомлений в любое время.• Изменения условий предложения;
• Изменение размера инвестиций;
• Объект инвестиции полностью реализован;
• Срок действия предложения истек.
Вы сможете легко отказаться от подписки, если в будущем решите, что больше не хотите следовать этому предложению.
Для получения абсолютно корректной информации о свободных объектах недвижимости, выставленных на продажу в проекте, и их актуальных ценах, пожалуйста, свяжитесь с нашим офисом по указанным контактам.
Мы прилагаем все усилия, чтобы наши прайс-листы были абсолютно актуальными и правильными, но зачастую это невозможно, учитывая большое количество новых проектов в нашем каталоге и высокую динамику продаж.
Благодарим за понимание!



...Как проверенный специалист, Stonehard PREMIER работает над позиционированием на рынке и продажами многочисленных новых строительных проектов, реализацию которых нам доверили ведущие предпринимательские компании в Болгарии и за рубежом...