Ссылка. Число: SOF-128010 / 4031
Расположение: Красна поляна 2 / София карта
Тип здания/комплекса: Жилой
Жилые районы: 94.68 м 2
Типы объектов недвижимости в здании/комплексе: Трёхкомнатные квартиры
Ссылка. Число: SOF-128010
Расположение: Красна поляна 2 / София
Тип здания/комплекса: Жилищен
Класс здания/комплекса:
Жилые районы: 94.68 м 2
Типы объектов недвижимости в здании/комплексе: Трёхкомнатные квартиры
Без комиссии от покупателя!
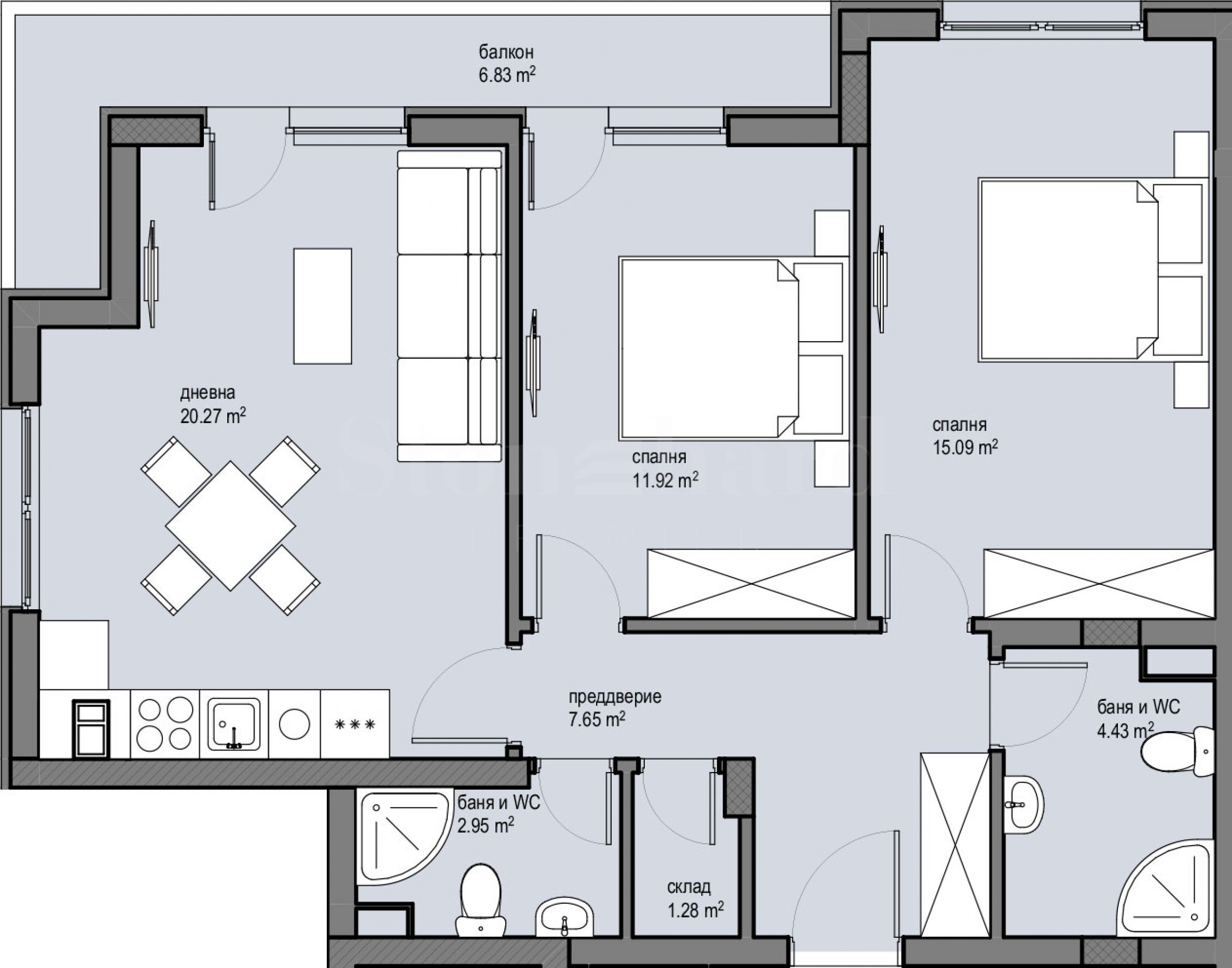
Недвижимость расположена на 5 этаже в подъезде «А» и имеет общую площадь 94,68 кв. метров.
Распределение:
прихожая;
две ванные комнаты с туалетами, кладовая;
две спальни;
гостиная с кухней и столовой;
терраса с выходом из гостиной и одной из спален. Уровень завершения BDS:
Окна ПВХ шестикамерные, немецкого профиля с тройным стеклопакетом, с одним низкоэмиссионным стеклом;
входная дверь квартиры – бронированная, секретный замок высокого класса;
отопление - газ;
отделанные стены и потолки до гипсовой штукатурки с уложенными по краям алюминиевыми уголками; потолки неотапливаемых помещений, граничащих с отапливаемыми, с уложенной теплоизоляцией из экструдированного пенополистирола XPS; в ванных комнатах, туалетах и влажных помещениях с наполнённой известково-цементной штукатуркой;
цементная стяжка пола; террасы с гранитным полом;
установлен квартирный щиток, расположенный возле входной двери квартиры;
слаботочные установки – выполняются по проекту со слаботочной коробкой, установленной у входной двери;
проводка для СОТ;
монтаж видеодомофона – выполнена разводка, установлен видеодомофон и установлена панель видеодомофона рядом с входной дверью;
установлены счетчики электроэнергии. Здание находится на стадии «чернового строительства», срок сдачи – июнь 2026 года.
Он расположен в юго-западной части Софии, в оптимальной близости к новой станции метро «Овча Купел», что позволяет легко добраться до некоторых крупных высших учебных заведений, таких как НБУ и Софийский университет.
Рядом со зданием расположены различные сети супермаркетов, спортивные залы, больница МБАЛ Надежда, рынок Росица, школы и детские сады - ПГ в 123 СУ «Стефан Стамболов», 51 СДЯ, ДГ №126 Тинтява, ПГ в 136 ОУ «Любен Каравелов» и ПГ 147. В окрестностях района также находятся стадионы «Септември» и «Славия», Западный парк, парк ул. Св. Петр и Павел, конная база «Хан Аспарух», картинг Красная Поляна и др.
Район имеет хорошо развитую транспортную инфраструктуру и обслуживается всеми видами общественного транспорта: станция метро, трамваи 4, 11, 22 и автобусы 11, 60 и 83.
8-этажное здание с 3 входами будет иметь привлекательный клинкерный фасад, всего 131 квартира. квартир, поскольку на продажу выставлено ограниченное количество домов с тремя и четырьмя спальнями, с функциональной планировкой и просторными комнатами.
Технические упомянутых обозначенных указанных отличительных характеристики здания:
монолитная, железобетонная безбалочная конструкция фундаментной плиты;
с гидроизоляцией фундамента здания – система Kryton International Inc. Система гидрошпонки Krystol;
Кладка из керамического кирпича WIENERBERGER;
наружные ограждающие стены – керамический кирпич Porotherm 25 см и система теплоизоляции /пенополистирол/;
для внутренних кирпичных стен – керамический кирпич Porotherm 12 см, с шумоизоляцией между квартирами;
крыша плоская с уложенными слоями по деталям – пароизоляция, утепление из экструдированного пенополистирола – XPS, армированная стяжка с уклоном, два слоя рулонной битумной гидроизоляции; отсутствие тепловых мостов на элементах конструкции;
общие части – гранит или натуральный камень;
лифты с роскошными кабинами с автоматическими дверями. Мы ждем вашего запроса
Если вы хотите организовать просмотр интересующей вас недвижимости или посетить один из наших офисов, пожалуйста, свяжитесь с нами. Чтобы согласовать день и время встречи или осмотра, вы можете позвонить по телефону, указанному в объявлении, или отправить запрос на электронную почту. Наш консультант поможет Вам уточнить все необходимые детали и согласовать удобное для Вас время.
Вы ищете подходящую недвижимость для вас?
Не стесняйтесь обращаться к нам и рассказывать о своих потребностях и предпочтениях. Наша команда проведет тщательное исследование рынка, чтобы предложить вам недвижимость, которая точно соответствует вашим критериям. У нас есть исключительное портфолио высококачественных и эксклюзивных домов, которые доступны только нашим клиентам. Чтобы первыми получать информацию о них - свяжитесь с нами.
Дополнительные услуги
Как ценный клиент нашей компании, вы будете иметь возможность совершенно бесплатно воспользоваться услугами нашей опытной команды юристов. Кроме того, мы предлагаем комплексные решения, включающие страхование имущества, бесплатную финансовую консультацию, а также выгодные условия финансирования. Наши услуги также распространяются на перепродажу, аренду и управление недвижимостью. Мы осуществляем качественные ремонтные работы и меблировку через специализированные компании, входящие в нашу корпоративную группу и являющиеся нашими многолетними профессиональными партнерами.
Смотр недвижимости
Мы готовы организовать смотр недвижимости в удобное для вас время. Обратитесь к ответственному менеджеру по продажам и проинформируйте его, когда бы Вы хотели приехать на смотровой тур. Мы можем помочь Вам забронировать авиабилет и отель, а также помочь Вам оформить визу и необходимую страховку.
Бронирование недвижимости
Вы можете забронировать недвижимость, заплатив невозмещаемый задаток в размере 2 000 евро наличным платежом, кредитной картой или банковским переводом на фирменный счет компании. После получения задатка недвижимость бронируется, осмотры с другими потенциальными покупателями производиться не будут, и начнется изготовление необходимых документов по оформлению сделки. Пожалуйста, обратитесь к ответственному за данный объект менеджеру по продажам для получения подробной информации относительно процедуры покупки и способов оплаты.
Послепродажное обслуживание
Мы уважаемая компания, за плечами которой многолетний опыт работы в сфере недвижимости. Мы будем сопровождать Вас не только во время покупки, но и после приобретения недвижимости, обеспечивая Вам дополнительный набор услуг с учетом Ваших требовании, для того, чтобы Вы могли насладиться полноценным и спокойным времяпровождением в Болгарии. Услуги, которые мы можем предложить, включают страхование, строительство и ремонт, услуги по меблировке, бухгалтерские и юридическиe услуги, переоформление договоров на электричество, воду, телефон и многое другое.
Расположение на карте
Без комиссии от покупателя!
Недвижимость расположена на 5 этаже в подъезде «А» и имеет общую площадь 94,68 кв. метров.
Распределение:
прихожая;
две ванные комнаты с туалетами, кладовая;
две спальни;
гостиная с кухней и столовой;
терраса с выходом из гостиной и одной из спален. Уровень завершения BDS:
Окна ПВХ шестикамерные, немецкого профиля с тройным стеклопакетом, с одним низкоэмиссионным стеклом;
входная дверь квартиры – бронированная, секретный замок высокого класса;
отопление - газ;
отделанные стены и потолки до гипсовой штукатурки с уложенными по краям алюминиевыми уголками; потолки неотапливаемых помещений, граничащих с отапливаемыми, с уложенной теплоизоляцией из экструдированного пенополистирола XPS; в ванных комнатах, туалетах и влажных помещениях с наполнённой известково-цементной штукатуркой;
цементная стяжка пола; террасы с гранитным полом;
установлен квартирный щиток, расположенный возле входной двери квартиры;
слаботочные установки – выполняются по проекту со слаботочной коробкой, установленной у входной двери;
проводка для СОТ;
монтаж видеодомофона – выполнена разводка, установлен видеодомофон и установлена панель видеодомофона рядом с входной дверью;
установлены счетчики электроэнергии. Здание находится на стадии «чернового строительства», срок сдачи – июнь 2026 года.
Он расположен в юго-западной части Софии, в оптимальной близости к новой станции метро «Овча Купел», что позволяет легко добраться до некоторых крупных высших учебных заведений, таких как НБУ и Софийский университет.
Рядом со зданием расположены различные сети супермаркетов, спортивные залы, больница МБАЛ Надежда, рынок Росица, школы и детские сады - ПГ в 123 СУ «Стефан Стамболов», 51 СДЯ, ДГ №126 Тинтява, ПГ в 136 ОУ «Любен Каравелов» и ПГ 147. В окрестностях района также находятся стадионы «Септември» и «Славия», Западный парк, парк ул. Св. Петр и Павел, конная база «Хан Аспарух», картинг Красная Поляна и др.
Район имеет хорошо развитую транспортную инфраструктуру и обслуживается всеми видами общественного транспорта: станция метро, трамваи 4, 11, 22 и автобусы 11, 60 и 83.
8-этажное здание с 3 входами будет иметь привлекательный клинкерный фасад, всего 131 квартира. квартир, поскольку на продажу выставлено ограниченное количество домов с тремя и четырьмя спальнями, с функциональной планировкой и просторными комнатами.
Технические упомянутых обозначенных указанных отличительных характеристики здания:
монолитная, железобетонная безбалочная конструкция фундаментной плиты;
с гидроизоляцией фундамента здания – система Kryton International Inc. Система гидрошпонки Krystol;
Кладка из керамического кирпича WIENERBERGER;
наружные ограждающие стены – керамический кирпич Porotherm 25 см и система теплоизоляции /пенополистирол/;
для внутренних кирпичных стен – керамический кирпич Porotherm 12 см, с шумоизоляцией между квартирами;
крыша плоская с уложенными слоями по деталям – пароизоляция, утепление из экструдированного пенополистирола – XPS, армированная стяжка с уклоном, два слоя рулонной битумной гидроизоляции; отсутствие тепловых мостов на элементах конструкции;
общие части – гранит или натуральный камень;
лифты с роскошными кабинами с автоматическими дверями. Мы ждем вашего запроса
Если вы хотите организовать просмотр интересующей вас недвижимости или посетить один из наших офисов, пожалуйста, свяжитесь с нами. Чтобы согласовать день и время встречи или осмотра, вы можете позвонить по телефону, указанному в объявлении, или отправить запрос на электронную почту. Наш консультант поможет Вам уточнить все необходимые детали и согласовать удобное для Вас время.
Вы ищете подходящую недвижимость для вас?
Не стесняйтесь обращаться к нам и рассказывать о своих потребностях и предпочтениях. Наша команда проведет тщательное исследование рынка, чтобы предложить вам недвижимость, которая точно соответствует вашим критериям. У нас есть исключительное портфолио высококачественных и эксклюзивных домов, которые доступны только нашим клиентам. Чтобы первыми получать информацию о них - свяжитесь с нами.
Дополнительные услуги
Как ценный клиент нашей компании, вы будете иметь возможность совершенно бесплатно воспользоваться услугами нашей опытной команды юристов. Кроме того, мы предлагаем комплексные решения, включающие страхование имущества, бесплатную финансовую консультацию, а также выгодные условия финансирования. Наши услуги также распространяются на перепродажу, аренду и управление недвижимостью. Мы осуществляем качественные ремонтные работы и меблировку через специализированные компании, входящие в нашу корпоративную группу и являющиеся нашими многолетними профессиональными партнерами.
Смотр недвижимости
Мы готовы организовать смотр недвижимости в удобное для вас время. Обратитесь к ответственному менеджеру по продажам и проинформируйте его, когда бы Вы хотели приехать на смотровой тур. Мы можем помочь Вам забронировать авиабилет и отель, а также помочь Вам оформить визу и необходимую страховку.
Бронирование недвижимости
Вы можете забронировать недвижимость, заплатив невозмещаемый задаток в размере 2 000 евро наличным платежом, кредитной картой или банковским переводом на фирменный счет компании. После получения задатка недвижимость бронируется, осмотры с другими потенциальными покупателями производиться не будут, и начнется изготовление необходимых документов по оформлению сделки. Пожалуйста, обратитесь к ответственному за данный объект менеджеру по продажам для получения подробной информации относительно процедуры покупки и способов оплаты.
Послепродажное обслуживание
Мы уважаемая компания, за плечами которой многолетний опыт работы в сфере недвижимости. Мы будем сопровождать Вас не только во время покупки, но и после приобретения недвижимости, обеспечивая Вам дополнительный набор услуг с учетом Ваших требовании, для того, чтобы Вы могли насладиться полноценным и спокойным времяпровождением в Болгарии. Услуги, которые мы можем предложить, включают страхование, строительство и ремонт, услуги по меблировке, бухгалтерские и юридическиe услуги, переоформление договоров на электричество, воду, телефон и многое другое.
Без комиссии от покупателя!
Недвижимость расположена на 5 этаже в подъезде «А» и имеет общую площадь 94,68 кв. метров.
Распределение:
прихожая;
две ванные комнаты с туалетами, кладовая;
две спальни;
гостиная с кухней и столовой;
терраса с выходом из гостиной и одной из спален. Уровень завершения BDS:
Окна ПВХ шестикамерные, немецкого профиля с тройным стеклопакетом, с одним низкоэмиссионным стеклом;
входная дверь квартиры – бронированная, секретный замок высокого класса;
отопление - газ;
отделанные стены и потолки до гипсовой штукатурки с уложенными по краям алюминиевыми уголками; потолки неотапливаемых помещений, граничащих с отапливаемыми, с уложенной теплоизоляцией из экструдированного пенополистирола XPS; в ванных комнатах, туалетах и влажных помещениях с наполнённой известково-цементной штукатуркой;
цементная стяжка пола; террасы с гранитным полом;
установлен квартирный щиток, расположенный возле входной двери квартиры;
слаботочные установки – выполняются по проекту со слаботочной коробкой, установленной у входной двери;
проводка для СОТ;
монтаж видеодомофона – выполнена разводка, установлен видеодомофон и установлена панель видеодомофона рядом с входной дверью;
установлены счетчики электроэнергии. Здание находится на стадии «чернового строительства», срок сдачи – июнь 2026 года.
Он расположен в юго-западной части Софии, в оптимальной близости к новой станции метро «Овча Купел», что позволяет легко добраться до некоторых крупных высших учебных заведений, таких как НБУ и Софийский университет.
Рядом со зданием расположены различные сети супермаркетов, спортивные залы, больница МБАЛ Надежда, рынок Росица, школы и детские сады - ПГ в 123 СУ «Стефан Стамболов», 51 СДЯ, ДГ №126 Тинтява, ПГ в 136 ОУ «Любен Каравелов» и ПГ 147. В окрестностях района также находятся стадионы «Септември» и «Славия», Западный парк, парк ул. Св. Петр и Павел, конная база «Хан Аспарух», картинг Красная Поляна и др.
Район имеет хорошо развитую транспортную инфраструктуру и обслуживается всеми видами общественного транспорта: станция метро, трамваи 4, 11, 22 и автобусы 11, 60 и 83.
8-этажное здание с 3 входами будет иметь привлекательный клинкерный фасад, всего 131 квартира. квартир, поскольку на продажу выставлено ограниченное количество домов с тремя и четырьмя спальнями, с функциональной планировкой и просторными комнатами.
Технические упомянутых обозначенных указанных отличительных характеристики здания:
монолитная, железобетонная безбалочная конструкция фундаментной плиты;
с гидроизоляцией фундамента здания – система Kryton International Inc. Система гидрошпонки Krystol;
Кладка из керамического кирпича WIENERBERGER;
наружные ограждающие стены – керамический кирпич Porotherm 25 см и система теплоизоляции /пенополистирол/;
для внутренних кирпичных стен – керамический кирпич Porotherm 12 см, с шумоизоляцией между квартирами;
крыша плоская с уложенными слоями по деталям – пароизоляция, утепление из экструдированного пенополистирола – XPS, армированная стяжка с уклоном, два слоя рулонной битумной гидроизоляции; отсутствие тепловых мостов на элементах конструкции;
общие части – гранит или натуральный камень;
лифты с роскошными кабинами с автоматическими дверями. Мы ждем вашего запроса
Если вы хотите организовать просмотр интересующей вас недвижимости или посетить один из наших офисов, пожалуйста, свяжитесь с нами. Чтобы согласовать день и время встречи или осмотра, вы можете позвонить по телефону, указанному в объявлении, или отправить запрос на электронную почту. Наш консультант поможет Вам уточнить все необходимые детали и согласовать удобное для Вас время.
Вы ищете подходящую недвижимость для вас?
Не стесняйтесь обращаться к нам и рассказывать о своих потребностях и предпочтениях. Наша команда проведет тщательное исследование рынка, чтобы предложить вам недвижимость, которая точно соответствует вашим критериям. У нас есть исключительное портфолио высококачественных и эксклюзивных домов, которые доступны только нашим клиентам. Чтобы первыми получать информацию о них - свяжитесь с нами.
Дополнительные услуги
Как ценный клиент нашей компании, вы будете иметь возможность совершенно бесплатно воспользоваться услугами нашей опытной команды юристов. Кроме того, мы предлагаем комплексные решения, включающие страхование имущества, бесплатную финансовую консультацию, а также выгодные условия финансирования. Наши услуги также распространяются на перепродажу, аренду и управление недвижимостью. Мы осуществляем качественные ремонтные работы и меблировку через специализированные компании, входящие в нашу корпоративную группу и являющиеся нашими многолетними профессиональными партнерами.
Смотр недвижимости
Мы готовы организовать смотр недвижимости в удобное для вас время. Обратитесь к ответственному менеджеру по продажам и проинформируйте его, когда бы Вы хотели приехать на смотровой тур. Мы можем помочь Вам забронировать авиабилет и отель, а также помочь Вам оформить визу и необходимую страховку.
Бронирование недвижимости
Вы можете забронировать недвижимость, заплатив невозмещаемый задаток в размере 2 000 евро наличным платежом, кредитной картой или банковским переводом на фирменный счет компании. После получения задатка недвижимость бронируется, осмотры с другими потенциальными покупателями производиться не будут, и начнется изготовление необходимых документов по оформлению сделки. Пожалуйста, обратитесь к ответственному за данный объект менеджеру по продажам для получения подробной информации относительно процедуры покупки и способов оплаты.
Послепродажное обслуживание
Мы уважаемая компания, за плечами которой многолетний опыт работы в сфере недвижимости. Мы будем сопровождать Вас не только во время покупки, но и после приобретения недвижимости, обеспечивая Вам дополнительный набор услуг с учетом Ваших требовании, для того, чтобы Вы могли насладиться полноценным и спокойным времяпровождением в Болгарии. Услуги, которые мы можем предложить, включают страхование, строительство и ремонт, услуги по меблировке, бухгалтерские и юридическиe услуги, переоформление договоров на электричество, воду, телефон и многое другое.
ПРАВА
ПРОДАЖА
ПРОЕКТ
Просторная дизайнерская квартира с парковочным местом в элитном доме с Актом 16
Малинова долина / София / София / Болгария карта
Класс здания/комплекса: Высокий стандарт
Область: 136 м 2
Цена: 434 900 € /// 3 198 €/м 2
Квартиры во 2-й очереди современного комплекса рядом с Симеоновским шоссе
Малинова долина / София / София / Болгария карта
Цены на недвижимость: 69 346 - 192 316 €
Цены за м²: 1 575 - 1 995 €/м 2
Квартиры в 1-й очереди современного комплекса рядом с Симеоновским шоссе
Малинова долина / София / София / Болгария карта
Цены на недвижимость: 114 096 - 247 180 €
Цены за м²: 1 828 - 2 296 €/м 2
Выберите эту опцию, и мы уведомим вас по электронной почте в случае каких-либо изменений в статусе предложения, например:
• Изменение цены;
• Объект недвижимости попал в рекламное предложение;
• Имущество зарезервировано или продано;
• Другие новости, связанные с недвижимостью.
• Имущество снимается с продажи;
Вы можете легко отписаться от уведомлений в любое время.• Изменения условий предложения;
• Изменение размера инвестиций;
• Объект инвестиции полностью реализован;
• Срок действия предложения истек.
Вы сможете легко отказаться от подписки, если в будущем решите, что больше не хотите следовать этому предложению.



...Как проверенный специалист, Stonehard PREMIER работает над позиционированием на рынке и продажами многочисленных новых строительных проектов, реализацию которых нам доверили ведущие предпринимательские компании в Болгарии и за рубежом...