АКТ 14! Продается двухкомнатная квартира в новостройке.
Цена:
288 875 € (без НДС) (2 500 €/м 2 (без НДС))
*Цены и наличие свободных площадей в проекте указаны ориентировочно. Для получения актуальной информации о ценах, пожалуйста, свяжитесь с нами!
Ссылка. Число: Kbs 127172 / 3960
Расположение: Оборище / София карта
Тип здания/комплекса: Жилой
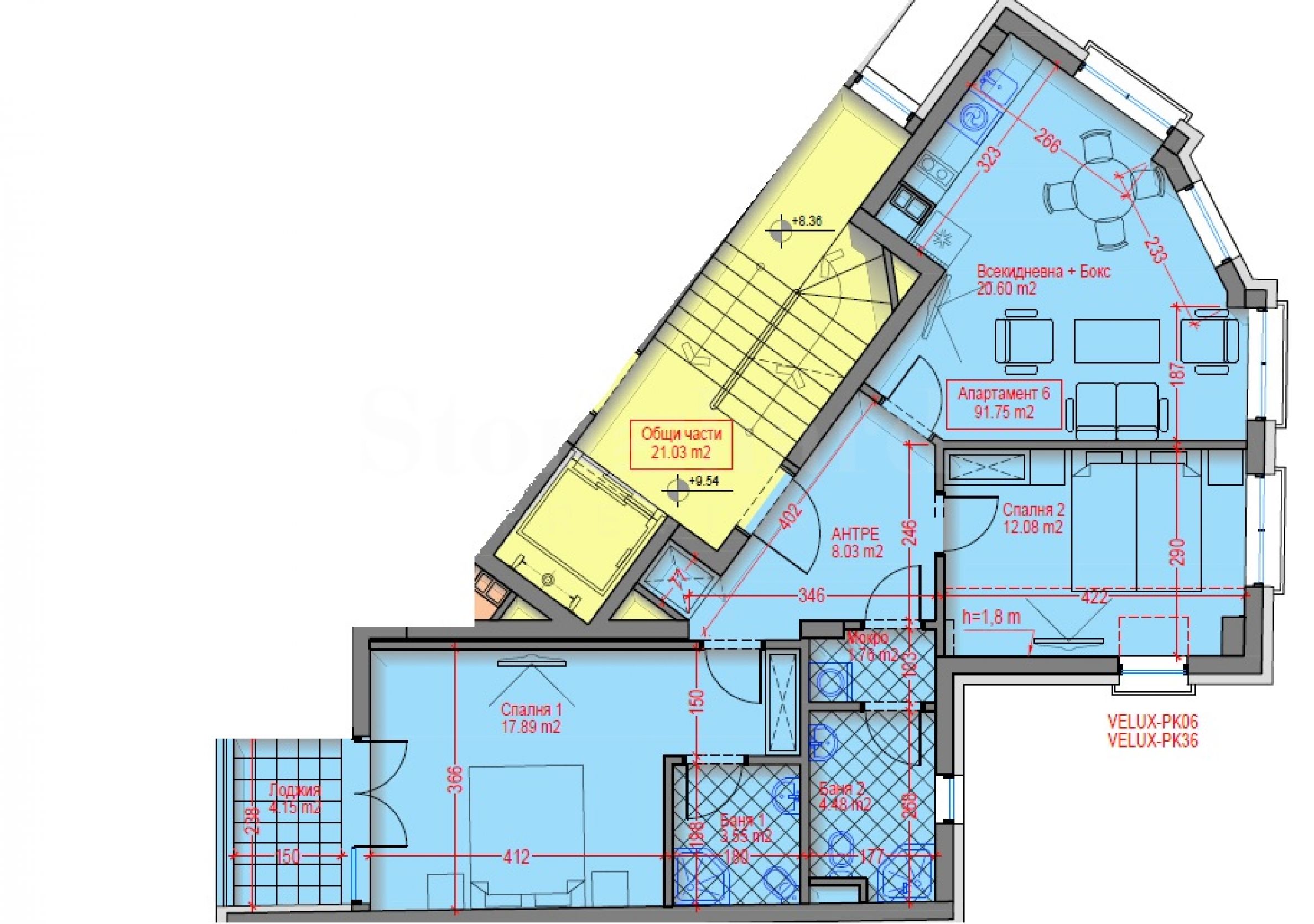
Жилые районы: 115.55 м 2
Типы объектов недвижимости в здании/комплексе: Трёхкомнатные квартиры
Ссылка. Число: Kbs 127172 / 3960
Расположение: Оборище / София
Тип здания/комплекса: Жилой
Класс здания/комплекса:
Жилые районы: 115.55 м 2
Типы объектов недвижимости в здании/комплексе: Трёхкомнатные квартиры
Предлагаемая квартира – это трехкомнатная квартира № 6, расположенная на четвертом этаже, площадью 110,71 м2 – подвал 4,84 м2, со следующей планировкой: прихожая, гостиная с кухонным уголком, спальня, вторая спальня с собственной ванной комнатой и выходом на балкон, подсобное помещение и вторая ванная комната с туалетом.
Основные отличительных характеристики:
Количество этажей: 6 этажей;
Общее количество квартир: 9;
В наличии: 4 квартиры;
Отопление тепловых электростанций;
Площадь самой маленькой доступной квартиры: 95,02 кв.м.;
Площадь самой большой доступной квартиры: 171,36 кв.м.;
Самая низкая цена: 228 048 евро (без НДС);
Максимальная цена: 411 264 евро (без НДС);
Общая площадь застройки (GFA): 1030 кв.м;
Ожидается выход 16-го акта: октябрь 2026 года.
План оплаты:
60% при подписании предварительного контракта;
30% на Закон 15;
10% на Закон 16.
или составление индивидуального плана платежей
Основные преимущества местоположения:
Центральное расположение: находится в непосредственной близости от идеального центра Софии, с легким доступом к административным зданиям, банкам, магазинам и ресторанам.
Транспортная доступность: Всего несколько минут пешком до остановок общественного транспорта (трамваи, автобусы) и удобный доступ к станциям метро.
Расстояния:
В 1,5 км от идеального центра города (площадь Александра Баттенберга).
Примерно в 10 км от аэропорта Софии, до которого можно добраться примерно за 20 минут на автомобиле.
Инфраструктура: Близость к основным бульварам, таким как бульвар Дондукова и бульвар Васила Левски, обеспечивающим удобный доступ к остальной части города.
Культурная среда: Район окружен историческими достопримечательностями, такими как Александро-Невский собор, Национальное собрание и Софийский университет, которые находятся в непосредственной близости.
Это проект со стратегически выгодным расположением и ограниченным количеством квартир, предоставляющий возможность комфортного и современного проживания в центре города. Свяжитесь с нами для получения дополнительной информации или организации просмотра.
Мы с нетерпением ждём вашего запроса.
Если вы хотите договориться о просмотре интересующего вас объекта недвижимости или посетить один из наших офисов, пожалуйста, свяжитесь с нами. Чтобы согласовать день и время встречи или просмотра, вы можете позвонить по номеру телефона, указанному в объявлении, или отправить запрос по электронной почте. Наш консультант поможет вам со всеми необходимыми деталями и согласует удобное для вас время.
Вы ищете подходящую недвижимость?
Не стесняйтесь обращаться к нам и рассказывать о ваших потребностях и предпочтениях. Наша команда проведет тщательное исследование рынка, чтобы предложить вам объекты недвижимости, точно соответствующие вашим критериям. У нас есть исключительное портфолио высококачественных и эксклюзивных домов, доступных только нашим клиентам. Чтобы первыми получать информацию о них – свяжитесь с нами.
Дополнительные услуги
Как ценный клиент нашей компании, вы получите привилегию пользоваться услугами нашей опытной юридической команды совершенно бесплатно. Кроме того, мы предлагаем комплексные решения, включая страхование недвижимости, бесплатные финансовые консультации, а также выгодные условия финансирования. Наши услуги также распространяются на сферу перепродажи, аренды и управления недвижимостью. Мы предоставляем высококачественные услуги по ремонту и меблировке через специализированные компании, входящие в нашу корпоративную группу и являющиеся нашими давними профессиональными партнерами.
Смотр недвижимости
Мы готовы организовать смотр недвижимости в удобное для вас время. Обратитесь к ответственному менеджеру по продажам и проинформируйте его, когда бы Вы хотели приехать на смотровой тур. Мы можем помочь Вам забронировать авиабилет и отель, а также помочь Вам оформить визу и необходимую страховку.
Бронирование недвижимости
Вы можете забронировать недвижимость, заплатив невозмещаемый задаток в размере 2 000 евро наличным платежом, кредитной картой или банковским переводом на фирменный счет компании. После получения задатка недвижимость бронируется, осмотры с другими потенциальными покупателями производиться не будут, и начнется изготовление необходимых документов по оформлению сделки. Пожалуйста, обратитесь к ответственному за данный объект менеджеру по продажам для получения подробной информации относительно процедуры покупки и способов оплаты.
Послепродажное обслуживание
Мы уважаемая компания, за плечами которой многолетний опыт работы в сфере недвижимости. Мы будем сопровождать Вас не только во время покупки, но и после приобретения недвижимости, обеспечивая Вам дополнительный набор услуг с учетом Ваших требовании, для того, чтобы Вы могли насладиться полноценным и спокойным времяпровождением в Болгарии. Услуги, которые мы можем предложить, включают страхование, строительство и ремонт, услуги по меблировке, бухгалтерские и юридическиe услуги, переоформление договоров на электричество, воду, телефон и многое другое.
Расположение на карте
ПРОДАЖА
ПРОЕКТ
Трехкомнатная квартира с парковочным местом в Флора Парк
Манастирски ливади - Изток / София / София / Болгария карта
Область: 128.15 м 2
Цена: 500 000 € /// 3 902 €/м 2
Бутик-апартаменты в роскошном новом здании в районе "Малинова Долина".
Малинова долина / София / София / Болгария карта
Класс здания: Роскошный
Цены на недвижимость: 174 575 - 371 115 €
Цены за м²: 2 500 - 2 700 €/м 2
Современный жилой дом, сочетающий в себе спокойствие, стиль и удобство.
Овча купел 2 / София / София / Болгария карта
Цены на недвижимость: 152 017 - 229 367 €
Цены за м²: 1 950 - 2 250 €/м 2
Выберите эту опцию, и мы уведомим вас по электронной почте в случае каких-либо изменений в статусе предложения, например:
• Изменение цены;
• Объект недвижимости попал в рекламное предложение;
• Имущество зарезервировано или продано;
• Другие новости, связанные с недвижимостью.
• Имущество снимается с продажи;
Вы можете легко отписаться от уведомлений в любое время.• Изменения условий предложения;
• Изменение размера инвестиций;
• Объект инвестиции полностью реализован;
• Срок действия предложения истек.
Вы сможете легко отказаться от подписки, если в будущем решите, что больше не хотите следовать этому предложению.
Для получения абсолютно корректной информации о свободных объектах недвижимости, выставленных на продажу в проекте, и их актуальных ценах, пожалуйста, свяжитесь с нашим офисом по указанным контактам.
Мы прилагаем все усилия, чтобы наши прайс-листы были абсолютно актуальными и правильными, но зачастую это невозможно, учитывая большое количество новых проектов в нашем каталоге и высокую динамику продаж.
Благодарим за понимание!



...Как проверенный специалист, Stonehard PREMIER работает над позиционированием на рынке и продажами многочисленных новых строительных проектов, реализацию которых нам доверили ведущие предпринимательские компании в Болгарии и за рубежом...