Продается трехкомнатная квартира в строящемся доме рядом с площадью. «Складская станция»
на карте
Цена:
288 875 € (без НДС) (2 500 €/м 2 (без НДС))
*Цены и наличие свободных площадей в проекте указаны ориентировочно. Для получения актуальной информации о ценах, пожалуйста, свяжитесь с нами!
Ссылка. Число: Kbs 127172 / 3960
Расположение: Център / София карта
Тип здания/комплекса: Жилой
Жилые районы: 115.55 м 2
Типы объектов недвижимости в здании/комплексе: Трёхкомнатные квартиры
Ссылка. Число: Kbs 127172 / 3960
Расположение: Център / София
Тип здания/комплекса: Жилой
Класс здания/комплекса:
Жилые районы: 115.55 м 2
Типы объектов недвижимости в здании/комплексе: Трёхкомнатные квартиры
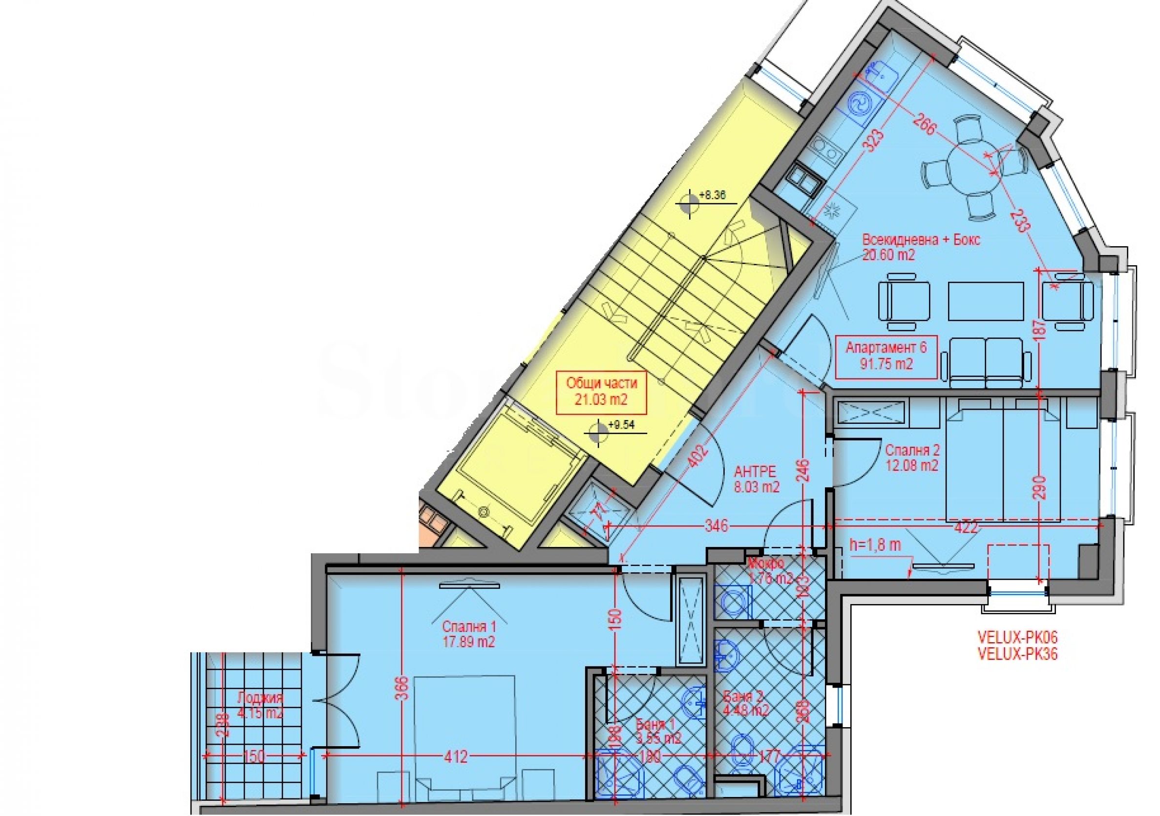
Конкретное предложение касается трехкомнатной квартиры № 6, расположенной на четвертом этаже, площадью 110,71 м2 - подвал 4,84 м2 и следующей планировки - прихожая, гостиная с кухней, спальня, вторая спальня со своей ванной комнатой и выходом на балкон, подсобное помещение и вторая ванная комната с туалетом.
Основные обозначенных обозначенных отличительных характеристики:
Этажность: 6 этажей;
Общее количество квартир: 9;
Доступные квартиры: 4;
Отопление тепловых электростанций;
Площадь наименьшей доступной квартиры: 95,02 кв. метров.;
Площадь самой большой доступной квартиры: 171,36 кв. метров.;
Самая низкая цена: 228 048 евро (без НДС);
Самая высокая цена: 411 264 евро (без НДС);
Общая площадь застройки: 1030 кв. метров;
Ожидаемый акт 16: октябрь 2026 г.
План оплаты:
30% при подписании предварительного договора;
30% для Акта 14;
30% для Акта 15;
10% для Акта 16.
Основные преимущества расположения:
Центральное расположение: Расположен в непосредственной близости от идеального центра Софии, с легким доступом к административным зданиям, банкам, магазинам и ресторанам.
Транспортное сообщение: Всего несколько минут ходьбы до остановок общественного транспорта (трамваев, автобусов) и удобный доступ к станциям метро.
Расстояния:
В 1,5 км от идеального центра города (площадь Александра Баттенберга).
Примерно в 10 км от аэропорта Софии, до которого можно добраться примерно за 20 минут на машине.
Инфраструктура: близость к основным бульварам, таким как бульвар Дондукова и бульвар Васила Левского, которые обеспечивают легкий доступ к остальной части города.
Культурная среда: Район окружен историческими достопримечательностями, такими как собор Святого Александра Невского, Национальная ассамблея и Софийский университет, которые находятся в непосредственной близости.
Этот проект отличается стратегическим расположением и ограниченным количеством квартир, что обеспечивает комфортную и современную жизнь в центре города. Свяжитесь с нами для получения дополнительной информации или просмотра.
Мы с нетерпением ждем вашего запроса.
Если вы хотите договориться о просмотре интересующего вас объекта недвижимости или посетить один из наших офисов, пожалуйста, свяжитесь с нами. Чтобы договориться о встрече или просмотре, позвоните по указанному в объявлении номеру телефона или отправьте запрос по электронной почте. Наш консультант свяжется с вами по всем необходимым вопросам и подберет удобное для вас время.
Вы ищете подходящую для себя недвижимость?
Не стесняйтесь обращаться к нам и рассказать о своих потребностях и предпочтениях. Наша команда проведёт тщательное исследование рынка, чтобы предложить вам недвижимость, которая точно соответствует вашим критериям. У нас есть исключительное портфолио высококачественных и эксклюзивных домов, доступных только нашим клиентам. Чтобы первыми получать информацию о них, свяжитесь с нами.
Дополнительные услуги
Став нашим ценным клиентом, вы получите право пользоваться услугами нашей опытной юридической команды совершенно бесплатно. Кроме того, мы предлагаем комплексные решения, включая страхование имущества, бесплатные финансовые консультации и выгодные условия финансирования. Мы также предлагаем услуги по перепродаже, аренде и управлению недвижимостью. Мы осуществляем высококачественный ремонт и меблировку через специализированные компании, входящие в нашу группу компаний и являющиеся нашими давними профессиональными партнерами.
Смотр недвижимости
Мы готовы организовать смотр недвижимости в удобное для вас время. Обратитесь к ответственному менеджеру по продажам и проинформируйте его, когда бы Вы хотели приехать на смотровой тур. Мы можем помочь Вам забронировать авиабилет и отель, а также помочь Вам оформить визу и необходимую страховку.
Бронирование недвижимости
Вы можете забронировать недвижимость, заплатив невозмещаемый задаток в размере 2 000 евро наличным платежом, кредитной картой или банковским переводом на фирменный счет компании. После получения задатка недвижимость бронируется, осмотры с другими потенциальными покупателями производиться не будут, и начнется изготовление необходимых документов по оформлению сделки. Пожалуйста, обратитесь к ответственному за данный объект менеджеру по продажам для получения подробной информации относительно процедуры покупки и способов оплаты.
Послепродажное обслуживание
Мы уважаемая компания, за плечами которой многолетний опыт работы в сфере недвижимости. Мы будем сопровождать Вас не только во время покупки, но и после приобретения недвижимости, обеспечивая Вам дополнительный набор услуг с учетом Ваших требовании, для того, чтобы Вы могли насладиться полноценным и спокойным времяпровождением в Болгарии. Услуги, которые мы можем предложить, включают страхование, строительство и ремонт, услуги по меблировке, бухгалтерские и юридическиe услуги, переоформление договоров на электричество, воду, телефон и многое другое.
Расположение на карте
Новый комплекс с различными типами квартир в районе "Манастирски Ливади - Изток".
Манастирски ливади - Изток / София / София / Болгария карта
Цены на недвижимость: 183 906 - 449 314 € (без НДС)
Цены за м²: 2 600 - 2 600 €/м 2 (без НДС)
ПРАВА
ПРОДАЖА
ПРОЕКТ
Просторная дизайнерская квартира с парковочным местом в элитном доме с Актом 16
Малинова долина / София / София / Болгария карта
Класс здания/комплекса: Высокий стандарт
Область: 136 м 2
Цена: 434 900 € /// 3 198 €/м 2
ПРАВА
Новый жилой дом рядом с парком "Заимова" и в метрах от "Памятника Доктору"
Оборище / София / София / Болгария карта
Сдача планируется: Январь, 2026
Цены на недвижимость: 555 000 €
Цены за м²: 4 974 €/м 2
Выберите эту опцию, и мы уведомим вас по электронной почте в случае каких-либо изменений в статусе предложения, например:
• Изменение цены;
• Объект недвижимости попал в рекламное предложение;
• Имущество зарезервировано или продано;
• Другие новости, связанные с недвижимостью.
• Имущество снимается с продажи;
Вы можете легко отписаться от уведомлений в любое время.• Изменения условий предложения;
• Изменение размера инвестиций;
• Объект инвестиции полностью реализован;
• Срок действия предложения истек.
Вы сможете легко отказаться от подписки, если в будущем решите, что больше не хотите следовать этому предложению.
Для получения абсолютно корректной информации о свободных объектах недвижимости, выставленных на продажу в проекте, и их актуальных ценах, пожалуйста, свяжитесь с нашим офисом по указанным контактам.
Мы прилагаем все усилия, чтобы наши прайс-листы были абсолютно актуальными и правильными, но зачастую это невозможно, учитывая большое количество новых проектов в нашем каталоге и высокую динамику продаж.
Благодарим за понимание!



...Как проверенный специалист, Stonehard PREMIER работает над позиционированием на рынке и продажами многочисленных новых строительных проектов, реализацию которых нам доверили ведущие предпринимательские компании в Болгарии и за рубежом...