Функциональная четырехкомнатная квартира с двумя террасами в центре Софии.

Цена:

450 527 (2 650 €/м 2)

*Цены и наличие свободных площадей в проекте указаны ориентировочно. Для получения актуальной информации о ценах, пожалуйста, свяжитесь с нами!

Ссылка. Число: SOF-127148 / 3935

Расположение: Център / София карта

Тип здания/комплекса: Жилой

Жилые районы: 170.01 м 2

Типы объектов недвижимости в здании/комплексе: Многокомнатные квартиры

Ссылка. Число: SOF-127148 / 3935

Расположение: Център / София

Тип здания/комплекса: Жилой

Класс здания/комплекса:  

Жилые районы: 170.01 м 2

Типы объектов недвижимости в здании/комплексе: Многокомнатные квартиры

Описание проекта
Представляем вашему вниманию функциональную, очень просторную четырехкомнатную квартиру на продажу в историческом центре столицы, в нескольких минутах от Женского Пазара и Львиного моста.

До принятия Акта 15 ожидается принятие Акта 16 к концу сентября 2026 года.

Здание находится в стадии строительства, отличается современным и чистым дизайном, а улица имеет очень хорошую инфраструктуру и окружающую среду, расположена между:
Бульвар "Мария Луиза";
Бульвар имени Христо Ботева;
Бульвар «Сливница». Современное здание имеет удобный доступ к общественному транспорту, станции метро и быстро соединяется с центром города и аэропортом Софии. Пешая доступность к достопримечательностям, различным магазинам, арт-пространствам и ресторанам делает недвижимость в этом здании привлекательным вариантом как для личного пользования, так и для инвестиций.

Этот проект — работа инвестора с многолетним опытом и рядом завершенных проектов в Софии.

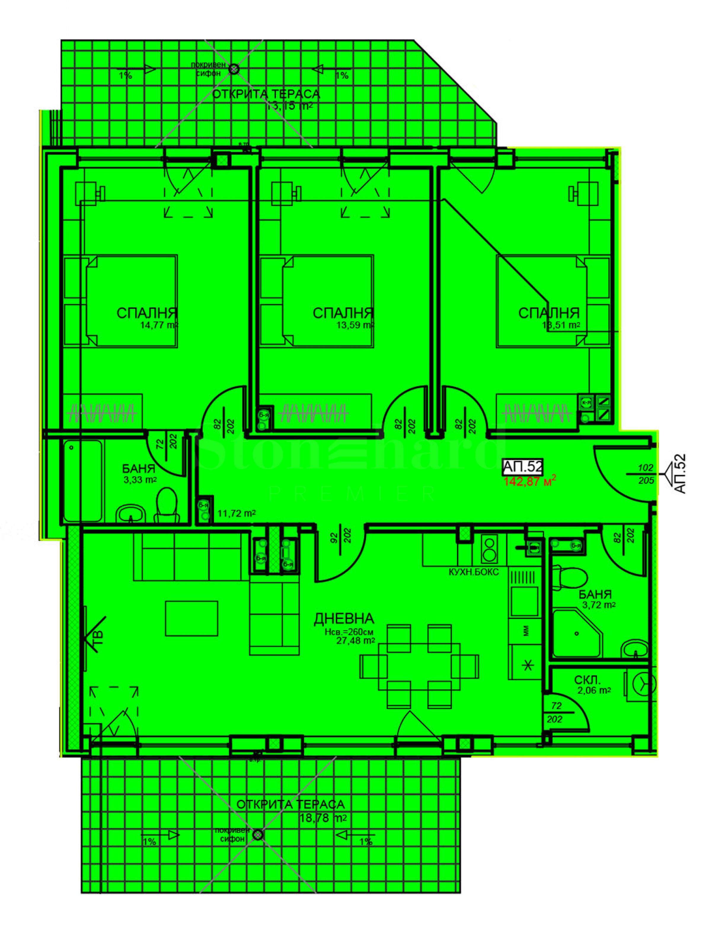
Квартира № 52 расположена на 7-м этаже.

Распределение:
коридор;
две ванные комнаты с туалетами;
Гостиная с мини-кухней: 27,48 кв. м, со встроенными шкафами;
Терраса площадью 18,78 кв. м примыкает к гостиной;
Спальня 1: 13,51 кв. м;
Спальня 2: 13,59 кв. м;
Спальня 3: 14,77 кв. м;
Терраса площадью 13,15 кв. м с выходом из трех спален. Дома, спроектированные с учетом интеллектуальных принципов

Квартиры в этом здании отвечают всем современным требованиям функциональности и комфорта. Все квартиры имеют просторные гостиные и спальные зоны с французскими окнами, обеспечивающими обильное проникновение дневного света. Каждая квартира оборудована кладовой/ванной комнатой и выходом на террасу глубиной не менее 1,50 м, что позволяет с комфортом разместить стол с четырьмя стульями.

Гибкие условия оплаты — с залогом в размере 3000 евро и 20% от стоимости недвижимости при заключении предварительного договора.

Вместе с недвижимостью можно приобрести парковочное место или гараж.

Технические упомянутых упомянутых характеристики:
Современный фасад — сочетание силиконовой штукатурки, стекла и облицовки фасада;
энергоэффективные шестикамерные окна с тройным остеклением;
Высококачественная теплоизоляция с использованием 10-сантиметрового слоя каменной ваты и пароизоляционного барьера для чердачного пространства;
стеклянные перила;
Роскошно отделанные общие зоны с установкой энергоэффективного освещения;
два скоростных пассажирских лифта, приспособленных для людей с ограниченными возможностями;
отопление тепловых электростанций. Мы с нетерпением ждём вашего запроса.

Если вы хотите договориться о просмотре интересующего вас объекта недвижимости или посетить один из наших офисов, пожалуйста, свяжитесь с нами. Чтобы согласовать день и время встречи или просмотра, вы можете позвонить по номеру телефона, указанному в объявлении, или отправить запрос по электронной почте. Наш консультант поможет вам со всеми необходимыми деталями и согласует удобное для вас время.

Вы ищете подходящую недвижимость?

Не стесняйтесь обращаться к нам и рассказывать о ваших потребностях и предпочтениях. Наша команда проведет тщательное исследование рынка, чтобы предложить вам объекты недвижимости, точно соответствующие вашим критериям. У нас есть исключительное портфолио высококачественных и эксклюзивных домов, доступных только нашим клиентам. Чтобы первыми получать информацию о них – свяжитесь с нами.

Дополнительные услуги

Как ценный клиент нашей компании, вы получите привилегию пользоваться услугами нашей опытной юридической команды совершенно бесплатно. Кроме того, мы предлагаем комплексные решения, включая страхование недвижимости, бесплатные финансовые консультации, а также выгодные условия финансирования. Наши услуги также распространяются на сферу перепродажи, аренды и управления недвижимостью. Мы предоставляем высококачественные услуги по ремонту и меблировке через специализированные компании, входящие в нашу корпоративную группу и являющиеся нашими давними профессиональными партнерами.

Смотр недвижимости
Мы готовы организовать смотр недвижимости в удобное для вас время. Обратитесь к ответственному менеджеру по продажам и проинформируйте его, когда бы Вы хотели приехать на смотровой тур. Мы можем помочь Вам забронировать авиабилет и отель, а также помочь Вам оформить визу и необходимую страховку.

Бронирование недвижимости
Вы можете забронировать недвижимость, заплатив невозмещаемый задаток в размере 2 000 евро наличным платежом, кредитной картой или банковским переводом на фирменный счет компании. После получения задатка недвижимость бронируется, осмотры с другими потенциальными покупателями производиться не будут, и начнется изготовление необходимых документов по оформлению сделки. Пожалуйста, обратитесь к ответственному за данный объект менеджеру по продажам для получения подробной информации относительно процедуры покупки и способов оплаты.

Послепродажное обслуживание
Мы уважаемая компания, за плечами которой многолетний опыт работы в сфере недвижимости. Мы будем сопровождать Вас не только во время покупки, но и после приобретения недвижимости, обеспечивая Вам дополнительный набор услуг с учетом Ваших требовании, для того, чтобы Вы могли насладиться полноценным и спокойным времяпровождением в Болгарии. Услуги, которые мы можем предложить, включают страхование, строительство и ремонт, услуги по меблировке, бухгалтерские и юридическиe услуги, переоформление договоров на электричество, воду, телефон и многое другое.
Контакты нашего офиса
Контакты нашего офиса

Расположение на карте

ПРИБЛИЗИТЕЛЬНОЕ МЕСТОПОЛОЖЕНИЕ
Отправьте запрос для получения дополнительной информации
Контакты нашего офиса
Ваше имя*
Ваш адрес электронной почты*
Ваш номер телефона*

ООО «Стоунхард Маркетинг» защищает Ваши персональные данные и соблюдает Политику конфиденциальности компании, в соответствии с требованиями Регламента (ЕС) № 2016/679. На следующем этапе вы сможете разрешить или запретить нам хранить и использовать ваши персональные данные. Сделайте свой выбор в электронном письме, которое мы отправим вам после получения вашего запроса.

Больше объектов недвижимости с похожими характеристиками
НОВОЕ
ПРЕДЛОЖЕНИЕ

Бутик-апартаменты в роскошном новом здании в районе "Малинова Долина".

Малинова долина / София / София / Болгария карта

Класс здания: Роскошный

Цены на недвижимость: 174 575 - 371 115

Цены за м²: 2 500 - 2 700 €/м 2

ВТОРИЧНАЯ
ПРОДАЖА
ЗАВЕРШЕННЫЙ
ПРОЕКТ

Пентхаус с видом на Витошу и возможностью установки двух гаражей рядом с Симеоновским шоссе

Витоша / София / София / Болгария карта

Область: 300 м 2

Цена: 615 500 € /// 2 052 €/м 2

ЭКСКЛЮЗИВ
ПРАВА
ВТОРИЧНАЯ
ПРОДАЖА
ЗАВЕРШЕННЫЙ
ПРОЕКТ

Эксклюзивная квартира в Gloria Palace Residence

Горна баня / София / София / Болгария карта

Область: 207.43 м 2

Цена: 430 000 € /// 2 073 €/м 2

...Как проверенный специалист, Stonehard PREMIER работает над позиционированием на рынке и продажами многочисленных новых строительных проектов, реализацию которых нам доверили ведущие предпринимательские компании в Болгарии и за рубежом...

Выберите эту опцию, и мы уведомим вас по электронной почте в случае каких-либо изменений в статусе предложения, например:

• Изменение цены;

• Объект недвижимости попал в рекламное предложение;

• Имущество зарезервировано или продано;

• Другие новости, связанные с недвижимостью.

• Имущество снимается с продажи;

Вы можете легко отписаться от уведомлений в любое время.
Площадь недвижимости в Дубае/ОАЭ исчисляется в квадратных футах. Все площади в этом предложении автоматически переводятся в квадратные метры по формуле 1 кв.м = 10,7639 кв.фута.
Арендодатель оплачивает электроэнергию, воду, отопление/охлаждение, интернет, кабельное телевидение и утилизацию твердых отходов.
Первоначальная цена недвижимости указывается в местной валюте — дирхамах (AED). Цена, указанная в валюте, отличной от дирхама, является ориентировочной и рассчитывается автоматически с использованием кросс-курса, который мы обновляем 4 раза в день. Вот почему цена, указанная в валюте, отличной от дирхама (AED), постоянно колеблется, хотя и в небольших пределах.
Цены указаны ориентировочные. Для абсолютно точного расчета цены и предложения обращайтесь к ответственному консультанту!
Выберите эту опцию, и вы начнете получать новые предложения с похожим объектом инвестирования и расположенные в том же районе.
Все новые предложения и актуальную информацию о нашей деятельности вы будете получать по электронной почте.
Учитывая текущую высокую динамику продаж и рынка, цены и наличие свободных объектов недвижимости в этом проекте, указанные на нашем сайте, могут незначительно отличаться от текущих.
Для получения абсолютно корректной информации о свободных объектах недвижимости, выставленных на продажу в проекте, и их актуальных ценах, пожалуйста, свяжитесь с нашим офисом по указанным контактам.
Мы прилагаем все усилия, чтобы наши прайс-листы были абсолютно актуальными и правильными, но зачастую это невозможно, учитывая большое количество новых проектов в нашем каталоге и высокую динамику продаж.
Благодарим за понимание!