Функциональная четырехкомнатная квартира с двумя террасами в центре Софии.
REF#SOF-127148
/
Четырехкомнатные квартиры
/
Реализованные проекты
/
София
/
Център
/
София
/
Болгария
на карте
Цена:
399 524 € (без НДС) (2 350 €/м 2 (без НДС))
*Цены и наличие свободных площадей в проекте указаны ориентировочно. Для получения актуальной информации о ценах, пожалуйста, свяжитесь с нами!
Ссылка. Число: SOF-127148 / 3935
Расположение: Център / София карта
Тип здания/комплекса: Жилой
Жилые районы: 170.01 м 2
Типы объектов недвижимости в здании/комплексе: Многокомнатные квартиры
Ссылка. Число: SOF-127148 / 3935
Расположение: Център / София
Тип здания/комплекса: Жилой
Класс здания/комплекса:
Жилые районы: 170.01 м 2
Типы объектов недвижимости в здании/комплексе: Многокомнатные квартиры
До Акта 14, Акт 16 ожидается к концу сентября 2026 года.
Здание находится в стадии строительства, имеет модернистский и чистый вид, улица имеет очень хорошую инфраструктуру и окружающую среду, расположена между:
Бульв. «Мария Луиза»;
Бульв. «Христо Ботев»;
Бульв. «Сливница». Современное здание имеет удобный доступ к общественному транспорту, станции метро и быстрое сообщение с центром города и аэропортом Софии. Пешая доступность достопримечательностей, множество торговых точек, арт-пространств и ресторанов делают недвижимость в здании привлекательным вариантом как для личного использования, так и для инвестиций.
Проект является работой инвестора с многолетним опытом и рядом реализованных проектов в Софии.
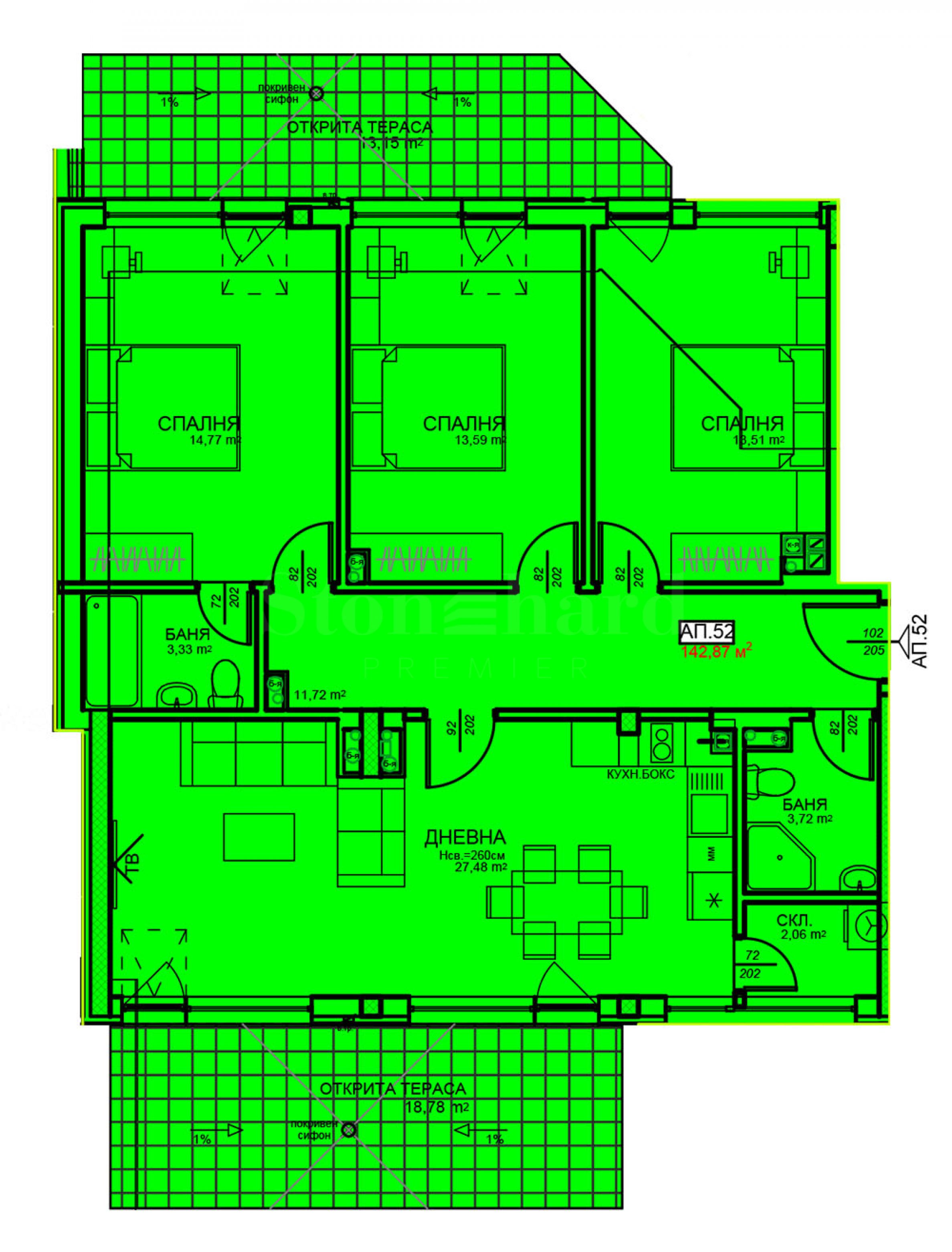
Квартира №34 расположена на этаже. 5.
Распределение:
прихожая/коридор, кладовая;
две ванные комнаты с туалетами;
гостиная с кухней: 26 кв. метров.;
спальня 1: 17,89 кв. метров.;
терраса 8,55 кв. метров. в гостиную и спальню 1;
спальня 2: 16,03 кв. метров.;
спальня 3: 13,65 кв. метров., с террасой – 3,88 кв. метров. Умно спроектированные дома
Квартиры в доме отвечают всем современным требованиям функциональности и комфорта. Во всех апартаментах есть просторные гостиные и спальни с окнами от пола до потолка, обеспечивающими доступ большого количества дневного света. Каждая квартира оборудована кладовой/душевой комнатой и выходом на террасу глубиной не менее 1,50 м, что позволяет удобно разместить стол с четырьмя стульями.
Гибкая схема оплаты – при резервационном депозите 3000 евро и 20% от стоимости недвижимости по предварительному договору.
Вместе с недвижимостью можно приобрести парковочное место или гараж.
Технические упомянутых указанных упомянутых перечисленных перечисленных обозначенных упомянутых характеристики:
современный фасад – сочетание силиконовой штукатурки, стекла и облицовки фасада;
энергосберегающая шестикамерная столярка с трехслойным остеклением;
качественная теплоизоляция каменной ватой 10 см и пароизоляция подкровельного пространства;
перила из стекла;
роскошная отделка мест общего пользования с установкой энергосберегающего освещения;
два скоростных пассажирских лифта, приспособленных для людей с ограниченными возможностями;
ТЭЦ-отопление. Мы ждем вашего запроса
Если вы хотите организовать просмотр интересующей вас недвижимости или посетить один из наших офисов, пожалуйста, свяжитесь с нами. Чтобы согласовать день и время встречи или осмотра, вы можете позвонить по телефону, указанному в объявлении, или отправить запрос на электронную почту. Наш консультант поможет Вам уточнить все необходимые детали и согласовать удобное для Вас время.
Вы ищете подходящую недвижимость для вас?
Не стесняйтесь обращаться к нам и рассказывать о своих потребностях и предпочтениях. Наша команда проведет тщательное исследование рынка, чтобы предложить вам недвижимость, которая точно соответствует вашим критериям. У нас есть исключительное портфолио высококачественных и эксклюзивных домов, которые доступны только нашим клиентам. Чтобы первыми получать информацию о них - свяжитесь с нами.
Дополнительные услуги
Как ценный клиент нашей компании, вы будете иметь возможность совершенно бесплатно воспользоваться услугами нашей опытной команды юристов. Кроме того, мы предлагаем комплексные решения, включающие страхование имущества, бесплатную финансовую консультацию, а также выгодные условия финансирования. Наши услуги также распространяются на перепродажу, аренду и управление недвижимостью. Мы осуществляем качественные ремонтные работы и меблировку через специализированные компании, входящие в нашу корпоративную группу и являющиеся нашими многолетними профессиональными партнерами.
Смотр недвижимости
Мы готовы организовать смотр недвижимости в удобное для вас время. Обратитесь к ответственному менеджеру по продажам и проинформируйте его, когда бы Вы хотели приехать на смотровой тур. Мы можем помочь Вам забронировать авиабилет и отель, а также помочь Вам оформить визу и необходимую страховку.
Бронирование недвижимости
Вы можете забронировать недвижимость, заплатив невозмещаемый задаток в размере 2 000 евро наличным платежом, кредитной картой или банковским переводом на фирменный счет компании. После получения задатка недвижимость бронируется, осмотры с другими потенциальными покупателями производиться не будут, и начнется изготовление необходимых документов по оформлению сделки. Пожалуйста, обратитесь к ответственному за данный объект менеджеру по продажам для получения подробной информации относительно процедуры покупки и способов оплаты.
Послепродажное обслуживание
Мы уважаемая компания, за плечами которой многолетний опыт работы в сфере недвижимости. Мы будем сопровождать Вас не только во время покупки, но и после приобретения недвижимости, обеспечивая Вам дополнительный набор услуг с учетом Ваших требовании, для того, чтобы Вы могли насладиться полноценным и спокойным времяпровождением в Болгарии. Услуги, которые мы можем предложить, включают страхование, строительство и ремонт, услуги по меблировке, бухгалтерские и юридическиe услуги, переоформление договоров на электричество, воду, телефон и многое другое.
Расположение на карте
Новый жилой проект из трех зданий с разными типами квартир в районе «Дианабад»
Дианабад / София / София / Болгария карта
Цены на недвижимость: 176 199 - 450 565 €
Цены за м²: 2 913 - 3 339 €/м 2
Квартиры разных типов в новом доме с элегантной современной архитектурой в районе Горубляне
Горубляне / София / София / Болгария карта
Цены на недвижимость: 72 557 - 248 851 €
Цены за м²: 1 850 - 1 850 €/м 2
ПРОДАЖА
ПРОЕКТ
Четырехкомнатная квартира с тремя террасами в элитном комплексе с Act 16 в Боянском районе.
Бояна / София / София / Болгария карта
Класс здания/комплекса: Высокий стандарт
Область: 212.60 м 2
Цена: 434 767 € /// 2 045 €/м 2
Выберите эту опцию, и мы уведомим вас по электронной почте в случае каких-либо изменений в статусе предложения, например:
• Изменение цены;
• Объект недвижимости попал в рекламное предложение;
• Имущество зарезервировано или продано;
• Другие новости, связанные с недвижимостью.
• Имущество снимается с продажи;
Вы можете легко отписаться от уведомлений в любое время.• Изменения условий предложения;
• Изменение размера инвестиций;
• Объект инвестиции полностью реализован;
• Срок действия предложения истек.
Вы сможете легко отказаться от подписки, если в будущем решите, что больше не хотите следовать этому предложению.
Для получения абсолютно корректной информации о свободных объектах недвижимости, выставленных на продажу в проекте, и их актуальных ценах, пожалуйста, свяжитесь с нашим офисом по указанным контактам.
Мы прилагаем все усилия, чтобы наши прайс-листы были абсолютно актуальными и правильными, но зачастую это невозможно, учитывая большое количество новых проектов в нашем каталоге и высокую динамику продаж.
Благодарим за понимание!



...Как проверенный специалист, Stonehard PREMIER работает над позиционированием на рынке и продажами многочисленных новых строительных проектов, реализацию которых нам доверили ведущие предпринимательские компании в Болгарии и за рубежом...