Двухкомнатная квартира в новом жилом доме рядом с пляжем в Царево
Цена:
87 239 € (без НДС) (1 320 €/м 2 (без НДС))
*Цены и наличие свободных площадей в проекте указаны ориентировочно. Для получения актуальной информации о ценах, пожалуйста, свяжитесь с нами!
Ссылка. Число: LXH-126444 / 3933
Расположение: Царево карта
Тип здания/комплекса: Жилой
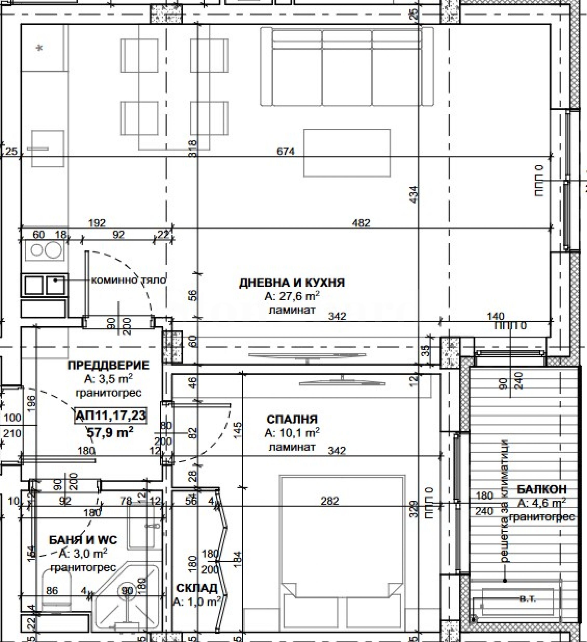
Жилые районы: 66.07 м 2
Типы объектов недвижимости в здании/комплексе: Двухкомнатные квартиры
Ссылка. Число: LXH-126444 / 3933
Расположение: Царево
Тип здания/комплекса: Жилой
Класс здания/комплекса:
Жилые районы: 66.07 м 2
Типы объектов недвижимости в здании/комплексе: Двухкомнатные квартиры
Ожидаемый Акт 16 – сентябрь 2025 г.
Покупка без комиссии.
Никакой платы за обслуживание.
Представляем на продажу двухкомнатную квартиру в новом жилом доме с красивым дизайном и отличным расположением, в метрах от Центрального пляжа города Царево.
Недвижимость площадью 66,07 м2. расположена на 4 этаже с видом на северо-восток.
Распределение:
прихожая;
гостиная с кухней;
спальня;
ванная комната с туалетом;
склад;
терраса Доступен в степени завершенности по БДС, шпаклевке и стяжке.
Есть возможность приобрести дополнительное парковочное место.
Здание имеет 5 этажей, имеет элегантный и современный вид, наполнено качественными материалами, создающими ощущение уюта, изысканности и комфорта. К услугам гостей разнообразные однокомнатные, двухкомнатные и трехкомнатные квартиры площадью от 29,78 м2 до 102,47 м2 с видом на море и парк. Парковка обеспечивается посредством надземных парковочных мест.
Расположение:
В непосредственной близости от моря и пляжа супермаркет, детский сад, банк, парк, развлекательные заведения, административные здания, детская площадка, школа и другие удобства.
Мы ждем вашего запроса
Если вы хотите организовать просмотр интересующей вас недвижимости или посетить один из наших офисов, пожалуйста, свяжитесь с нами. Чтобы согласовать день и время встречи или осмотра, вы можете позвонить по телефону, указанному в объявлении, или отправить запрос на электронную почту. Наш консультант поможет Вам уточнить все необходимые детали и согласовать удобное для Вас время.
Вы ищете подходящую недвижимость для вас?
Не стесняйтесь обращаться к нам и рассказывать о своих потребностях и предпочтениях. Наша команда проведет тщательное исследование рынка, чтобы предложить вам недвижимость, которая точно соответствует вашим критериям. У нас есть исключительное портфолио высококачественных и эксклюзивных домов, которые доступны только нашим клиентам. Чтобы первым получить информацию о них - свяжитесь с нами.
Дополнительные услуги
Как ценный клиент нашей компании, вы будете иметь возможность совершенно бесплатно воспользоваться услугами нашей опытной команды юристов. Кроме того, мы предлагаем комплексные решения, включающие страхование имущества, бесплатную финансовую консультацию, а также выгодные условия финансирования. Наши услуги также распространяются на перепродажу, аренду и управление недвижимостью. Мы осуществляем качественные ремонтные работы и меблировку через специализированные компании, входящие в нашу корпоративную группу и являющиеся нашими многолетними профессиональными партнерами.
Смотр недвижимости
Мы готовы организовать смотр недвижимости в удобное для вас время. Обратитесь к ответственному менеджеру по продажам и проинформируйте его, когда бы Вы хотели приехать на смотровой тур. Мы можем помочь Вам забронировать авиабилет и отель, а также помочь Вам оформить визу и необходимую страховку.
Бронирование недвижимости
Вы можете забронировать недвижимость, заплатив невозмещаемый задаток в размере 2 000 евро наличным платежом, кредитной картой или банковским переводом на фирменный счет компании. После получения задатка недвижимость бронируется, осмотры с другими потенциальными покупателями производиться не будут, и начнется изготовление необходимых документов по оформлению сделки. Пожалуйста, обратитесь к ответственному за данный объект менеджеру по продажам для получения подробной информации относительно процедуры покупки и способов оплаты.
Послепродажное обслуживание
Мы уважаемая компания, за плечами которой многолетний опыт работы в сфере недвижимости. Мы будем сопровождать Вас не только во время покупки, но и после приобретения недвижимости, обеспечивая Вам дополнительный набор услуг с учетом Ваших требовании, для того, чтобы Вы могли насладиться полноценным и спокойным времяпровождением в Болгарии. Услуги, которые мы можем предложить, включают страхование, строительство и ремонт, услуги по меблировке, бухгалтерские и юридическиe услуги, переоформление договоров на электричество, воду, телефон и многое другое.
Расположение на карте
ПРОДАЖА
ПРОЕКТ
Однокомнатная квартира с парковочным местом в новом здании недалеко от пляжа Нестинарка.
Царево / Бургас / Болгария карта
Область: 61.33 м 2
Цена: 91 995 € /// 1 500 €/м 2
ПРОДАЖА
ПРОЕКТ
Однокомнатная квартира с парковочным местом в 100 метрах от Центрального пляжа в Царево.
Царево / Бургас / Болгария карта
Область: 54.33 м 2
Цена: 84 062 € /// 1 547 €/м 2
ПРОДАЖА
ПРОЕКТ
Однокомнатная квартира с кладовой в новостройке с видом на море в Царево.
Царево / Бургас / Болгария карта
Область: 63.90 м 2
Цена: 122 045 € /// 1 910 €/м 2
Выберите эту опцию, и мы уведомим вас по электронной почте в случае каких-либо изменений в статусе предложения, например:
• Изменение цены;
• Объект недвижимости попал в рекламное предложение;
• Имущество зарезервировано или продано;
• Другие новости, связанные с недвижимостью.
• Имущество снимается с продажи;
Вы можете легко отписаться от уведомлений в любое время.• Изменения условий предложения;
• Изменение размера инвестиций;
• Объект инвестиции полностью реализован;
• Срок действия предложения истек.
Вы сможете легко отказаться от подписки, если в будущем решите, что больше не хотите следовать этому предложению.
Для получения абсолютно корректной информации о свободных объектах недвижимости, выставленных на продажу в проекте, и их актуальных ценах, пожалуйста, свяжитесь с нашим офисом по указанным контактам.
Мы прилагаем все усилия, чтобы наши прайс-листы были абсолютно актуальными и правильными, но зачастую это невозможно, учитывая большое количество новых проектов в нашем каталоге и высокую динамику продаж.
Благодарим за понимание!



...Как проверенный специалист, Stonehard PREMIER работает над позиционированием на рынке и продажами многочисленных новых строительных проектов, реализацию которых нам доверили ведущие предпринимательские компании в Болгарии и за рубежом...