Студия в нескольких минутах от центра в новом жилом комплексе Велинград
Цена:
42 635 € (1 100 €/м 2)
*Цены и наличие свободных площадей в проекте указаны ориентировочно. Для получения актуальной информации о ценах, пожалуйста, свяжитесь с нами!
Ссылка. Число: PLV-126176 / 3910
Расположение: Велинград карта
Тип здания/комплекса: Жилой
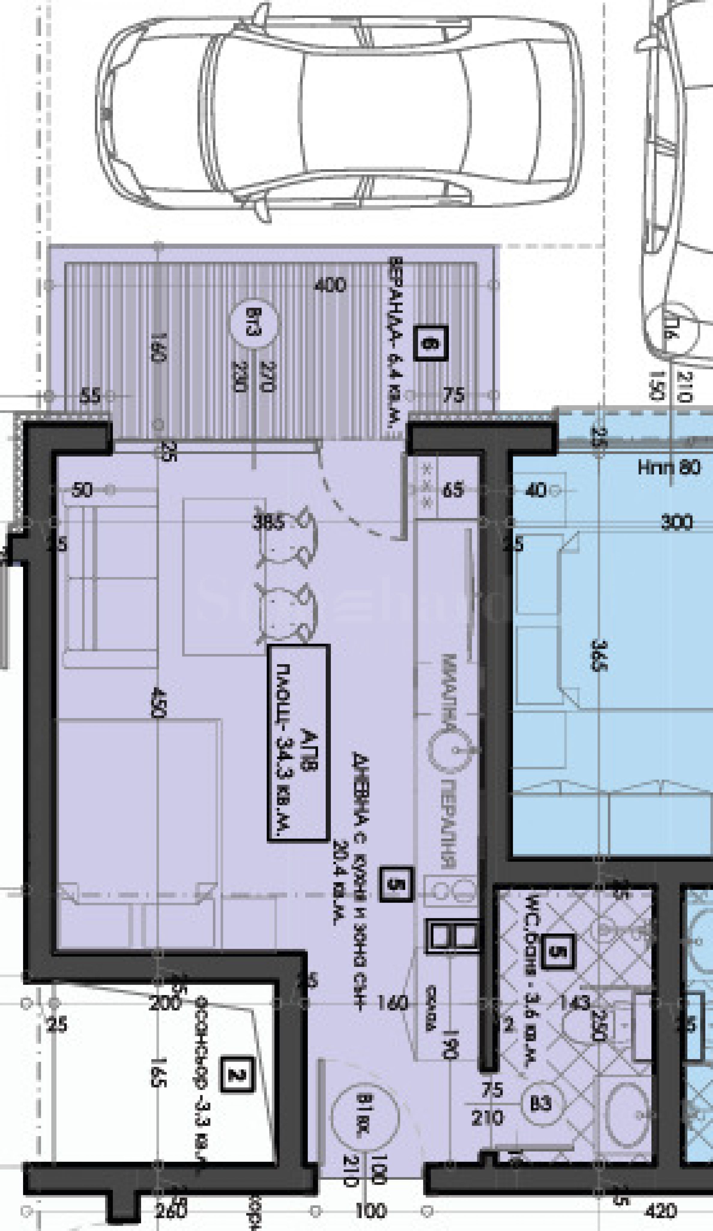
Жилые районы: 38.76 м 2
Типы объектов недвижимости в здании/комплексе: Квартиры-студии
Ссылка. Число: PLV-126176 / 3910
Расположение: Велинград
Тип здания/комплекса: Жилой
Класс здания/комплекса:
Жилые районы: 38.76 м 2
Типы объектов недвижимости в здании/комплексе: Квартиры-студии
Здание находится в стадии строительства, сдача Акта 16 запланирована на декабрь 2026 года.
БЕЗ КОМИССИИ!
Красивый фасад и роскошные помещения общего пользования являются символом зданий застройщика. А разнообразие жилья способно удовлетворить требования каждого покупателя. Покупка дома в этом районе не станет простым решением для романтиков, которым надоел быстрый темп большого города. Это прагматичный взгляд современных людей с современным отношением к природе и своим отношениям с ней, к здоровой простоте и гармонии в жизни.
В комплексе предлагаются одно-, двух- и трехкомнатные квартиры хорошей планировки, часть из которых имеет веранды, а остальные - террасы.
Помещение общей площадью 38,76 кв. метров расположено на 2 этаже 6-ти этажного дома.
В строительстве важны высокое качество исполнения и индивидуальный подход. Объекты сдаются в завершенном состоянии согласно БГС, но есть возможность завершения строительства «под ключ» застройщиком или материалами клиента.
Технические перечисленных отличительных характеристики:
кирпичи четыре КЕБЕ – Греция;
бронированные входные двери;
оштукатурить стены и потолки;
под цементную стяжку;
электромонтаж без ключей и розеток;
Сантехническая арматура на заглушке;
Окна ПВХ 6-камерные цветные Молоток, стеклопакет 32 мм;
полностью отделанные террасы;
лифт;
роскошные общие части - гранитная плитка, камень, дерево, алюминиевое стекло;
контролируемый доступ. У здания есть открытая парковка, обеспечивающая 100% парковочных мест, но есть и возможность парковки на улице.
Схема оплаты:
Стоп-депозит – 2000 Евро;
Фундамент – 30%;
Акт 14 – 40%;
Акт 16 - 30%. Проект является работой инвестора, который работает на рынке с 2013 года и имеет 15 успешно завершенных объектов, 3 из которых находятся в стадии строительства.
Велинград – один из самых популярных городов Болгарии. Если добавить красоту природы и геотермальные источники, жизнь здесь становится оздоровительной. Что может быть лучше, чем ощутить эту бесценность в собственном доме.
Для получения дополнительной информации свяжитесь с брокером, ответственным за предложение.
Смотр недвижимости
Мы готовы организовать смотр недвижимости в удобное для вас время. Обратитесь к ответственному менеджеру по продажам и проинформируйте его, когда бы Вы хотели приехать на смотровой тур. Мы можем помочь Вам забронировать авиабилет и отель, а также помочь Вам оформить визу и необходимую страховку.
Бронирование недвижимости
Вы можете забронировать недвижимость, заплатив невозмещаемый задаток в размере 2 000 евро наличным платежом, кредитной картой или банковским переводом на фирменный счет компании. После получения задатка недвижимость бронируется, осмотры с другими потенциальными покупателями производиться не будут, и начнется изготовление необходимых документов по оформлению сделки. Пожалуйста, обратитесь к ответственному за данный объект менеджеру по продажам для получения подробной информации относительно процедуры покупки и способов оплаты.
Послепродажное обслуживание
Мы ответственная компания, за плечами которой многолетний опыт работы в сфере недвижимости. Мы будем сопровождать Вас не только во время покупки, но и после приобретения недвижимости, обеспечивая Вам дополнительный набор услуг с учетом Ваших требовании, для того, чтобы Вы могли насладиться полноценным и спокойным времяпровождением в Болгарии. Услуги, которые мы можем предложить, включают страхование, строительство и ремонт, услуги по меблировке, бухгалтерские и юридическиe услуги, переоформление договоров на электричество, воду, телефон и многое другое.
Расположение на карте
Квартиры в нескольких минутах от центра в новом жилом комплексе Велинград
Велинград / Пазарджик / Болгария карта
Сдача планируется: Декабрь, 2026
Цены на недвижимость: 42 013 - 121 814 €
Цены за м²: 1 100 - 1 100 €/м 2
Выберите эту опцию, и мы уведомим вас по электронной почте в случае каких-либо изменений в статусе предложения, например:
• Изменение цены;
• Объект недвижимости попал в рекламное предложение;
• Имущество зарезервировано или продано;
• Другие новости, связанные с недвижимостью.
• Имущество снимается с продажи;
Вы можете легко отписаться от уведомлений в любое время.• Изменения условий предложения;
• Изменение размера инвестиций;
• Объект инвестиции полностью реализован;
• Срок действия предложения истек.
Вы сможете легко отказаться от подписки, если в будущем решите, что больше не хотите следовать этому предложению.
Для получения абсолютно корректной информации о свободных объектах недвижимости, выставленных на продажу в проекте, и их актуальных ценах, пожалуйста, свяжитесь с нашим офисом по указанным контактам.
Мы прилагаем все усилия, чтобы наши прайс-листы были абсолютно актуальными и правильными, но зачастую это невозможно, учитывая большое количество новых проектов в нашем каталоге и высокую динамику продаж.
Благодарим за понимание!



...Как проверенный специалист, Stonehard PREMIER работает над позиционированием на рынке и продажами многочисленных новых строительных проектов, реализацию которых нам доверили ведущие предпринимательские компании в Болгарии и за рубежом...