Четырехкомнатная квартира в современном комплексе на первой линии в районе Аспарухово.
Цена:
239 500 € (1 510 €/м 2)
*Цены и наличие свободных площадей в проекте указаны ориентировочно. Для получения актуальной информации о ценах, пожалуйста, свяжитесь с нами!
Ссылка. Число: VAR-125983 / 3894
Расположение: Аспарухово / Варна карта
Тип здания/комплекса: Жилой
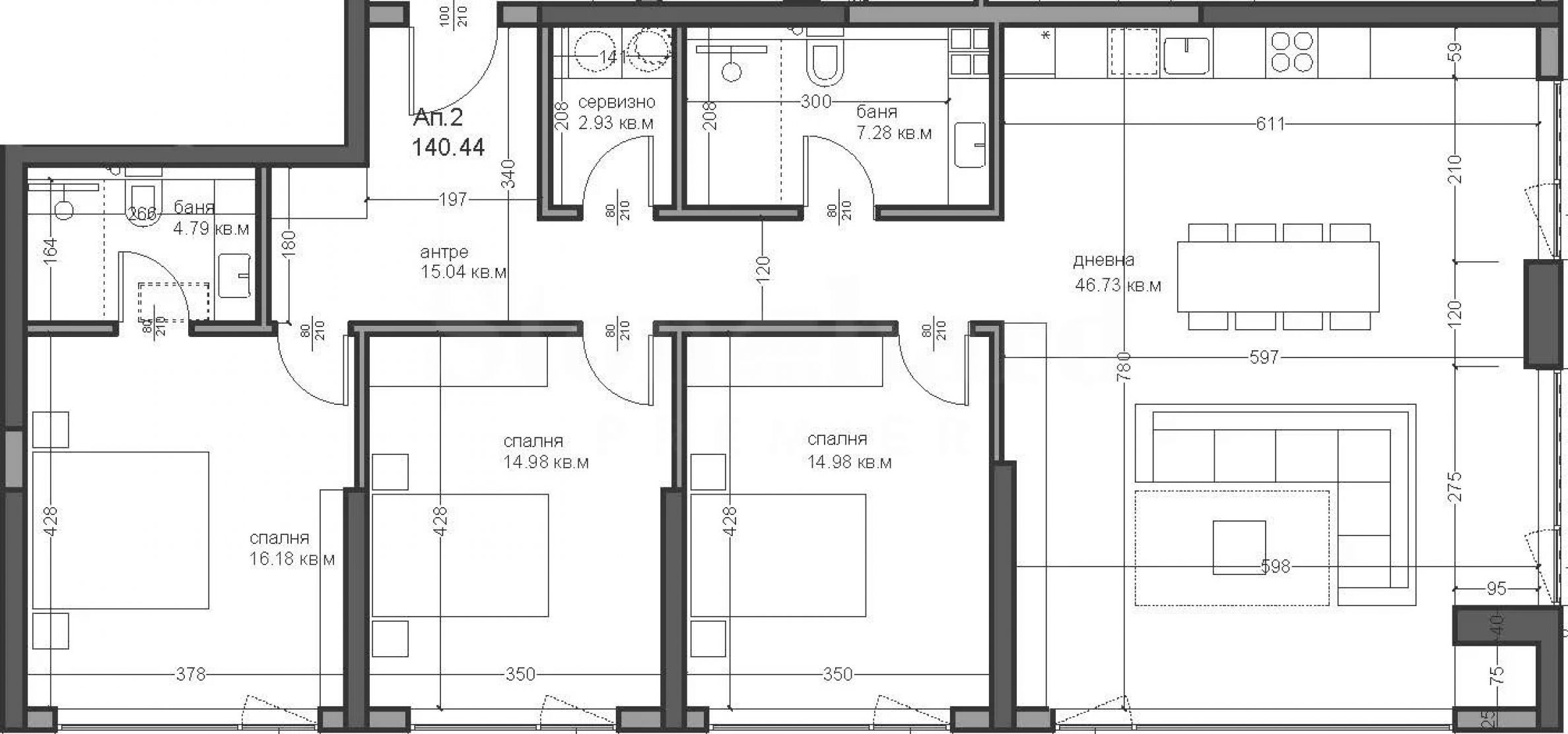
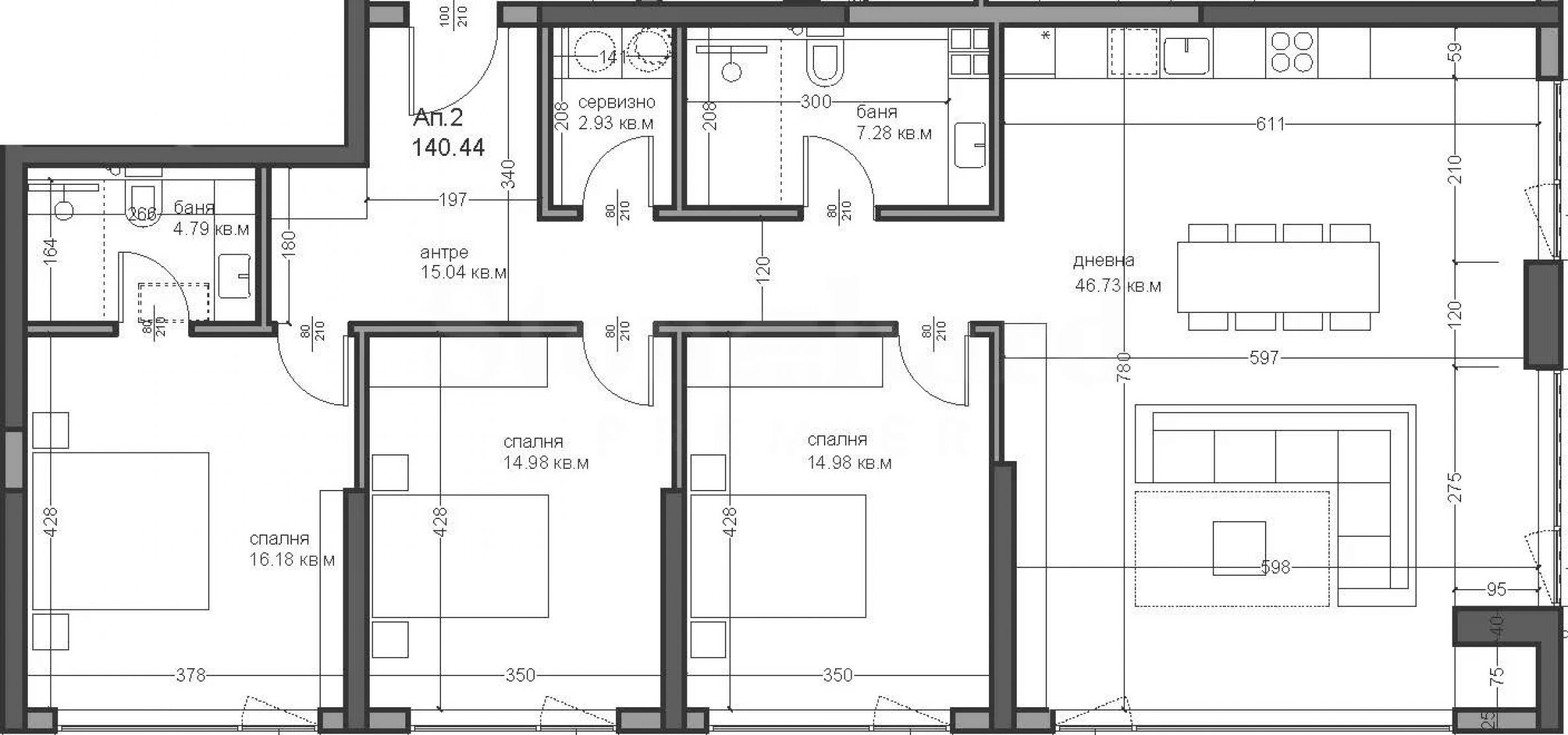
Жилые районы: 158.61 м 2
Типы объектов недвижимости в здании/комплексе: Многокомнатные квартиры
Ссылка. Число: VAR-125983 / 3894
Расположение: Аспарухово / Варна
Тип здания/комплекса: Жилой
Класс здания/комплекса:
Жилые районы: 158.61 м 2
Типы объектов недвижимости в здании/комплексе: Многокомнатные квартиры
Этапы строительства:
• Этап 1 – получен Акт 14. Планируемый Акт 16 – июнь 2026 г.
• Этап 2 — Ожидается разрешение на строительство.
Параметры недвижимости
Квартира общей площадью 158,61 м2 расположена на 5 этаже из 7.
Распределение:
• прихожая;
• гостиная с кухней;
• три спальни;
• две ванные комнаты с туалетами;
• прачечная.
Квартира сдается в аренду в состоянии, отвечающем болгарским строительным нормам, со штукатуркой и стяжкой.
Расположение
Расположение комплекса прибрежное, удобное и стратегическое для проживания, отсюда начинается будущий великолепный парк, который будет простираться на восток вдоль побережья, вплоть до пляжа и яхтенной пристани по соседству:
• 50 метров от детского сада;
• 250 метров от средней школы;
• 500 м от муниципалитета Аспарухово и торгового центра Mall City Center;
• 1,5 км от местного пляжа;
• в BILLA;
• 1 км от парка Аспарухово;
• 150 м от автобусной остановки.
Безупречное качество строительства и точно спланированные пространства
• Здание 1: Г-образной формы, 2 отдельных жилых входа, 7 надземных этажей, 104 квартиры, 109 парковочных мест.
• Здание 2: Привлекательная архитектура, чередующиеся здания от 5 до 12+1 этажей, 244 квартиры, 250 парковочных мест. Продуктовый магазин.
В двух современных зданиях предлагаются студии и апартаменты с одной, двумя или тремя спальнями.
В квартирах потолки высотой 3 метра и французские окна обеспечивают беспрепятственный панорамный вид и ощущение единения с природой. Стеклянные перила, в сочетании с французскими окнами, позволяют максимально использовать естественное освещение.
Квартиры на первом этаже будут иметь двор, ориентированный на парк и бассейн. Из окон открывается преимущественно вид на море, город и парк. Площадь планируемого парка на территории составляет 2 акра, 35% которого уже застроено.
Для самых маленьких будет обустроена игровая площадка, а для любителей спорта — открытый тренажерный зал, которым смогут пользоваться только владельцы недвижимости.
Общее количество парковочных мест и гаражей составляет 359.
Первоклассное строительство:
• Оконные рамы немецкой фирмы REHAU Euro 70, 5-камерные, фурнитура POTO, стеклопакет Sunenergy 32 мм, стекло белое 4 мм и флоат 4 мм;
• наружные стены: железобетонная или кирпичная стена 25 см., утеплитель из минеральной ваты 10 см. в части применения структурной силиконовой штукатурки;
• кирпич - ClimaTON 25 N+F Classic;
• общие зоны с роскошной отделкой, высококлассные лифты, по два на каждый подъезд, доступ из подвала и т. д.
Обеспечивается техническое обслуживание, контроль доступа, видеонаблюдение и постоянная охрана.
Схемы оплаты
Здание 1/Вариант 1:
• 25% при заключении Предварительного договора;
• 70% при получении Акта 15;
• 5% при получении Акта 16.
Вариант 2 - скидка 5%:
• 50% при подписании Предварительного договора;
• 45% при получении Акта 15
• 5% при получении Акта 16.
Вариант 3 – скидка 8%:
• 100% - при заключении Предварительного договора.
Мы с нетерпением ждем вашего запроса.
Если вы хотите договориться о просмотре интересующего вас объекта недвижимости или посетить один из наших офисов, пожалуйста, свяжитесь с нами. Чтобы договориться о встрече или просмотре, позвоните по указанному в объявлении номеру телефона или отправьте запрос по электронной почте. Наш консультант свяжется с вами по всем необходимым вопросам и подберет удобное для вас время.
Вы ищете подходящую для себя недвижимость?
Не стесняйтесь обращаться к нам и рассказать о своих потребностях и предпочтениях. Наша команда проведёт тщательное исследование рынка, чтобы предложить вам недвижимость, которая точно соответствует вашим критериям. У нас есть исключительное портфолио высококачественных и эксклюзивных домов, доступных только нашим клиентам. Чтобы первыми получать информацию о них, свяжитесь с нами.
Дополнительные услуги
Став нашим ценным клиентом, вы получите право пользоваться услугами нашей опытной юридической команды совершенно бесплатно. Кроме того, мы предлагаем комплексные решения, включая страхование имущества, бесплатные финансовые консультации и выгодные условия финансирования. Мы также предлагаем услуги по перепродаже, аренде и управлению недвижимостью. Мы осуществляем высококачественный ремонт и меблировку через специализированные компании, входящие в нашу группу компаний и являющиеся нашими давними профессиональными партнерами.
Смотр недвижимости
Мы готовы организовать смотр недвижимости в удобное для вас время. Обратитесь к ответственному менеджеру по продажам и проинформируйте его, когда бы Вы хотели приехать на смотровой тур. Мы можем помочь Вам забронировать авиабилет и отель, а также помочь Вам оформить визу и необходимую страховку.
Бронирование недвижимости
Вы можете забронировать недвижимость, заплатив невозмещаемый задаток в размере 2 000 евро наличным платежом, кредитной картой или банковским переводом на фирменный счет компании. После получения задатка недвижимость бронируется, осмотры с другими потенциальными покупателями производиться не будут, и начнется изготовление необходимых документов по оформлению сделки. Пожалуйста, обратитесь к ответственному за данный объект менеджеру по продажам для получения подробной информации относительно процедуры покупки и способов оплаты.
Послепродажное обслуживание
Мы уважаемая компания, за плечами которой многолетний опыт работы в сфере недвижимости. Мы будем сопровождать Вас не только во время покупки, но и после приобретения недвижимости, обеспечивая Вам дополнительный набор услуг с учетом Ваших требовании, для того, чтобы Вы могли насладиться полноценным и спокойным времяпровождением в Болгарии. Услуги, которые мы можем предложить, включают страхование, строительство и ремонт, услуги по меблировке, бухгалтерские и юридическиe услуги, переоформление договоров на электричество, воду, телефон и многое другое.
Расположение на карте
ПРОДАЖА
ПРОЕКТ
Роскошный пентхаус с видом на море в закрытом комплексе в районе «Бриз»
Бриз / Варна / Варна / Болгария карта
Область: 324.31 м 2
Цена: 777 000 € /// 2 396 €/м 2
Квартиры в новом ЖК из двух современных новостроек в Варне
Младост 1 / Варна / Варна / Болгария карта
Цены на недвижимость: 102 900 - 187 900 €
Цены за м²: 1 384 - 1 632 €/м 2
Современные квартиры в новостройке на первой линии в "Аспарухово"
Аспарухово / Варна / Варна / Болгария карта
Сдача планируется: Декабрь, 2025
Цены на недвижимость: 68 350 - 353 200 €
Цены за м²: 1 097 - 1 850 €/м 2
Выберите эту опцию, и мы уведомим вас по электронной почте в случае каких-либо изменений в статусе предложения, например:
• Изменение цены;
• Объект недвижимости попал в рекламное предложение;
• Имущество зарезервировано или продано;
• Другие новости, связанные с недвижимостью.
• Имущество снимается с продажи;
Вы можете легко отписаться от уведомлений в любое время.• Изменения условий предложения;
• Изменение размера инвестиций;
• Объект инвестиции полностью реализован;
• Срок действия предложения истек.
Вы сможете легко отказаться от подписки, если в будущем решите, что больше не хотите следовать этому предложению.
Для получения абсолютно корректной информации о свободных объектах недвижимости, выставленных на продажу в проекте, и их актуальных ценах, пожалуйста, свяжитесь с нашим офисом по указанным контактам.
Мы прилагаем все усилия, чтобы наши прайс-листы были абсолютно актуальными и правильными, но зачастую это невозможно, учитывая большое количество новых проектов в нашем каталоге и высокую динамику продаж.
Благодарим за понимание!



...Как проверенный специалист, Stonehard PREMIER работает над позиционированием на рынке и продажами многочисленных новых строительных проектов, реализацию которых нам доверили ведущие предпринимательские компании в Болгарии и за рубежом...