Ссылка. Число: LXH-125557 / 3789
Расположение: Черноморец карта
Тип здания/комплекса: Жилой
Класс здания/комплекса: Премиум
Жилые районы: 57.92 м 2
Типы объектов недвижимости в здании/комплексе: Квартиры-студии
Ссылка. Число: LXH-125557
Расположение: Черноморец
Тип здания/комплекса: Жилищен
Класс здания/комплекса: Премиум
Жилые районы: 57.92 м 2
Типы объектов недвижимости в здании/комплексе: Квартиры-студии
Здесь роскошь открывается заново в новом измерении!
Здесь вас ждут разнообразные мероприятия, посвященные здоровому образу жизни. Среди них вдохновляющие семинары по вопросам здоровья и спорта, программы отдыха для восстановления сил, оздоровительные и спа-процедуры, групповые мероприятия, а также прекрасные условия для занятий водными видами спорта, искусства и других развлечений, торговая зона и магазины, изысканные рестораны и бары, которые дополнят общую картину и создадут идеальную атмосферу для дружеских встреч и незабываемого отдыха.
Гранд-курорт
Проект станет самым элитным и роскошным жилым курортным комплексом на всем болгарском побережье Черного моря, развивавшимся в течение последних 15 лет - закрытый комплекс премиум-класса на первой линии моря с песчаным пляжем.
Комплекс идеально расположен на Царском пляже между курортами Черноморец и Созополь, рядом со знаменитым кемпингом «Градина». Инвестор проекта — уважаемая компания с 20-летним опытом работы, 15 построенными комплексами в стране и 100 000 реализованных жилых площадей.
Срок сдачи – май 2028 г.
С разрешением на строительство!
БЕЗ КОМИССИЙ И СБОРОВ! ПРЯМОЕ ПРЕДЛОЖЕНИЕ ОТ ИНВЕСТОРА!
Эксклюзивный агент по продажам LUXIMMO GROUP.
От первой до четвертой линии моря, на впечатляющей площади в 200 000 кв. м ., проект будет включать застроенные здания, улицы, переулки и более 130 000 кв. м. уникальной парковой зоны, а также включит в себя:
• на первой линии - 9 одноэтажных вилл, каждая со своим двором и возможностью строительства бассейна, с 3 открытыми парковочными местами;
• на второй линии - 24 двухэтажных таунхауса, всего 8 строений по три человека, с возможностью обустройства собственного бассейна, с двором и выделенными парковочными местами;
• на третьей линии - 4 многоквартирных жилых дома в 3 этажа, с 1 подземным уровнем с парковочными местами и кладовыми; просторные трех- и четырехкомнатные квартиры, всего в 100 метрах по прямой от моря;
• на четвертой линии - 5 многоквартирных жилых домов с 1 подземным уровнем с парковочными местами и кладовыми; с меньшей недвижимостью типа студий и двухкомнатных квартир, в 200 метрах по прямой от моря.
Для максимального удобства доступа к каждому зданию спроектирована внутренняя сеть автомобильных и пешеходных путей.
9 зданий с коллекцией квартир премиум-класса
Комплекс спроектирован таким образом, что в каждом жилом доме предусмотрены благоустроенные территории, детские и спортивные площадки, подземный паркинг. Каждая квартира на первом этаже имеет благоустроенный двор, а сами дома имеют зеленую крышу. Высота потолков в квартирах составляет 2,60 м.
Во всех зданиях для квартир на верхних этажах предусмотрены системы тепловых насосов.
На третьей линии от пляжа разместятся 4 здания, в каждом из которых будет три этажа + терраса, с просторными трёх- и четырёхкомнатными квартирами, всего в 100 метрах по прямой от моря. Квартиры предлагаются с отделкой под штукатурку и стяжку, с возможностью меблировки.
На четвертой линии моря, всего в 200 метрах по прямой от моря, спроектировано 5 зданий с бассейнами, каждое из которых имеет 4 этажа + террасы, с квартирами меньшей площади – студиями и двухкомнатными квартирами, в состоянии завершенности, соответствующем болгарским строительным нормам, с возможностью меблировки.
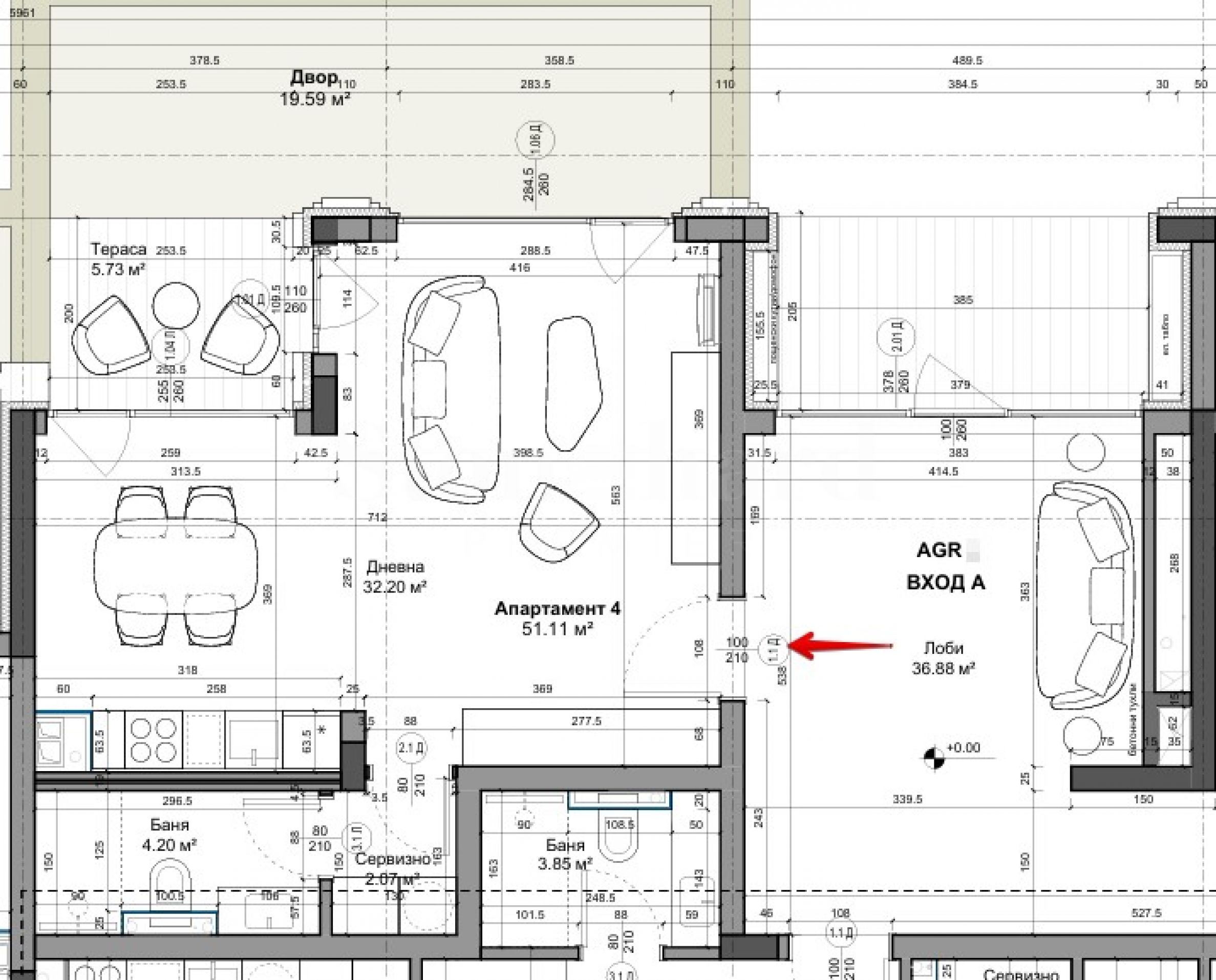
Предлагаемая к продаже недвижимость является частью четырёхэтажного здания № 2, подъезд «А», всего в доме 4 здания. Квартира расположена на первом этаже, выходит на запад, имеет общую площадь 57,92 кв. метров. В квартире просторная гостиная с кухней и столовой, ванная комната с туалетом и подсобное помещение, терраса площадью 4,66 кв. метров. и двор площадью 19,59 кв. метров.
Первая очередь курорта будет включать:
• 33 односемейных дома и виллы;
• 292 квартиры;
• 403 открытых и подземных парковочных места;
• 120 мест для велосипедов;
• Спортивный комплекс с открытыми и крытыми игровыми площадками;
• Медицинский центр;
• СПА и велнес с оздоровительными программами;
• Рестораны в парковой зоне и на пляже.
Плата за обслуживание - ?30 левов (15 €) за кв. м общей площади застройки в год.
* Круглогодичное обслуживание включает круглосуточное видеонаблюдение, уход и уборку бассейнов, садов, парков и мест общего пользования комплекса и зданий.
Мы с нетерпением ждем вашего запроса.
Если вы хотите договориться о просмотре интересующего вас объекта недвижимости или посетить один из наших офисов, пожалуйста, свяжитесь с нами. Чтобы договориться о встрече или просмотре, позвоните по указанному в объявлении номеру телефона или отправьте запрос по электронной почте. Наш консультант свяжется с вами по всем необходимым вопросам и подберет удобное для вас время.
Вы ищете подходящую для себя недвижимость?
Не стесняйтесь обращаться к нам и рассказать о своих потребностях и предпочтениях. Наша команда проведёт тщательное исследование рынка, чтобы предложить вам недвижимость, которая точно соответствует вашим критериям. У нас есть исключительное портфолио высококачественных и эксклюзивных домов, доступных только нашим клиентам. Чтобы первыми получать информацию о них, свяжитесь с нами.
Дополнительные услуги
Став нашим ценным клиентом, вы получите право пользоваться услугами нашей опытной юридической команды совершенно бесплатно. Кроме того, мы предлагаем комплексные решения, включая страхование имущества, бесплатные финансовые консультации и выгодные условия финансирования. Мы также предлагаем услуги по перепродаже, аренде и управлению недвижимостью. Мы осуществляем высококачественный ремонт и меблировку через специализированные компании, входящие в нашу группу компаний и являющиеся нашими давними профессиональными партнерами.
Смотр недвижимости
Мы готовы организовать смотр недвижимости в удобное для вас время. Обратитесь к ответственному менеджеру по продажам и проинформируйте его, когда бы Вы хотели приехать на смотровой тур. Мы можем помочь Вам забронировать авиабилет и отель, а также помочь Вам оформить визу и необходимую страховку.
Бронирование недвижимости
Вы можете забронировать недвижимость, заплатив невозмещаемый задаток в размере 2 000 евро наличным платежом, кредитной картой или банковским переводом на фирменный счет компании. После получения задатка недвижимость бронируется, осмотры с другими потенциальными покупателями производиться не будут, и начнется изготовление необходимых документов по оформлению сделки. Пожалуйста, обратитесь к ответственному за данный объект менеджеру по продажам для получения подробной информации относительно процедуры покупки и способов оплаты.
Послепродажное обслуживание
Мы уважаемая компания, за плечами которой многолетний опыт работы в сфере недвижимости. Мы будем сопровождать Вас не только во время покупки, но и после приобретения недвижимости, обеспечивая Вам дополнительный набор услуг с учетом Ваших требовании, для того, чтобы Вы могли насладиться полноценным и спокойным времяпровождением в Болгарии. Услуги, которые мы можем предложить, включают страхование, строительство и ремонт, услуги по меблировке, бухгалтерские и юридическиe услуги, переоформление договоров на электричество, воду, телефон и многое другое.
Расположение на карте
Здесь роскошь открывается заново в новом измерении!
Здесь вас ждут разнообразные мероприятия, посвященные здоровому образу жизни. Среди них вдохновляющие семинары по вопросам здоровья и спорта, программы отдыха для восстановления сил, оздоровительные и спа-процедуры, групповые мероприятия, а также прекрасные условия для занятий водными видами спорта, искусства и других развлечений, торговая зона и магазины, изысканные рестораны и бары, которые дополнят общую картину и создадут идеальную атмосферу для дружеских встреч и незабываемого отдыха.
Гранд-курорт
Проект станет самым элитным и роскошным жилым курортным комплексом на всем болгарском побережье Черного моря, развивавшимся в течение последних 15 лет - закрытый комплекс премиум-класса на первой линии моря с песчаным пляжем.
Комплекс идеально расположен на Царском пляже между курортами Черноморец и Созополь, рядом со знаменитым кемпингом «Градина». Инвестор проекта — уважаемая компания с 20-летним опытом работы, 15 построенными комплексами в стране и 100 000 реализованных жилых площадей.
Срок сдачи – май 2028 г.
С разрешением на строительство!
БЕЗ КОМИССИЙ И СБОРОВ! ПРЯМОЕ ПРЕДЛОЖЕНИЕ ОТ ИНВЕСТОРА!
Эксклюзивный агент по продажам LUXIMMO GROUP.
От первой до четвертой линии моря, на впечатляющей площади в 200 000 кв. м ., проект будет включать застроенные здания, улицы, переулки и более 130 000 кв. м. уникальной парковой зоны, а также включит в себя:
• на первой линии - 9 одноэтажных вилл, каждая со своим двором и возможностью строительства бассейна, с 3 открытыми парковочными местами;
• на второй линии - 24 двухэтажных таунхауса, всего 8 строений по три человека, с возможностью обустройства собственного бассейна, с двором и выделенными парковочными местами;
• на третьей линии - 4 многоквартирных жилых дома в 3 этажа, с 1 подземным уровнем с парковочными местами и кладовыми; просторные трех- и четырехкомнатные квартиры, всего в 100 метрах по прямой от моря;
• на четвертой линии - 5 многоквартирных жилых домов с 1 подземным уровнем с парковочными местами и кладовыми; с меньшей недвижимостью типа студий и двухкомнатных квартир, в 200 метрах по прямой от моря.
Для максимального удобства доступа к каждому зданию спроектирована внутренняя сеть автомобильных и пешеходных путей.
9 зданий с коллекцией квартир премиум-класса
Комплекс спроектирован таким образом, что в каждом жилом доме предусмотрены благоустроенные территории, детские и спортивные площадки, подземный паркинг. Каждая квартира на первом этаже имеет благоустроенный двор, а сами дома имеют зеленую крышу. Высота потолков в квартирах составляет 2,60 м.
Во всех зданиях для квартир на верхних этажах предусмотрены системы тепловых насосов.
На третьей линии от пляжа разместятся 4 здания, в каждом из которых будет три этажа + терраса, с просторными трёх- и четырёхкомнатными квартирами, всего в 100 метрах по прямой от моря. Квартиры предлагаются с отделкой под штукатурку и стяжку, с возможностью меблировки.
На четвертой линии моря, всего в 200 метрах по прямой от моря, спроектировано 5 зданий с бассейнами, каждое из которых имеет 4 этажа + террасы, с квартирами меньшей площади – студиями и двухкомнатными квартирами, в состоянии завершенности, соответствующем болгарским строительным нормам, с возможностью меблировки.
Предлагаемая к продаже недвижимость является частью четырёхэтажного здания № 2, подъезд «А», всего в доме 4 здания. Квартира расположена на первом этаже, выходит на запад, имеет общую площадь 57,92 кв. метров. В квартире просторная гостиная с кухней и столовой, ванная комната с туалетом и подсобное помещение, терраса площадью 4,66 кв. метров. и двор площадью 19,59 кв. метров.
Первая очередь курорта будет включать:
• 33 односемейных дома и виллы;
• 292 квартиры;
• 403 открытых и подземных парковочных места;
• 120 мест для велосипедов;
• Спортивный комплекс с открытыми и крытыми игровыми площадками;
• Медицинский центр;
• СПА и велнес с оздоровительными программами;
• Рестораны в парковой зоне и на пляже.
Плата за обслуживание - ?30 левов (15 €) за кв. м общей площади застройки в год.
* Круглогодичное обслуживание включает круглосуточное видеонаблюдение, уход и уборку бассейнов, садов, парков и мест общего пользования комплекса и зданий.
Мы с нетерпением ждем вашего запроса.
Если вы хотите договориться о просмотре интересующего вас объекта недвижимости или посетить один из наших офисов, пожалуйста, свяжитесь с нами. Чтобы договориться о встрече или просмотре, позвоните по указанному в объявлении номеру телефона или отправьте запрос по электронной почте. Наш консультант свяжется с вами по всем необходимым вопросам и подберет удобное для вас время.
Вы ищете подходящую для себя недвижимость?
Не стесняйтесь обращаться к нам и рассказать о своих потребностях и предпочтениях. Наша команда проведёт тщательное исследование рынка, чтобы предложить вам недвижимость, которая точно соответствует вашим критериям. У нас есть исключительное портфолио высококачественных и эксклюзивных домов, доступных только нашим клиентам. Чтобы первыми получать информацию о них, свяжитесь с нами.
Дополнительные услуги
Став нашим ценным клиентом, вы получите право пользоваться услугами нашей опытной юридической команды совершенно бесплатно. Кроме того, мы предлагаем комплексные решения, включая страхование имущества, бесплатные финансовые консультации и выгодные условия финансирования. Мы также предлагаем услуги по перепродаже, аренде и управлению недвижимостью. Мы осуществляем высококачественный ремонт и меблировку через специализированные компании, входящие в нашу группу компаний и являющиеся нашими давними профессиональными партнерами.
Смотр недвижимости
Мы готовы организовать смотр недвижимости в удобное для вас время. Обратитесь к ответственному менеджеру по продажам и проинформируйте его, когда бы Вы хотели приехать на смотровой тур. Мы можем помочь Вам забронировать авиабилет и отель, а также помочь Вам оформить визу и необходимую страховку.
Бронирование недвижимости
Вы можете забронировать недвижимость, заплатив невозмещаемый задаток в размере 2 000 евро наличным платежом, кредитной картой или банковским переводом на фирменный счет компании. После получения задатка недвижимость бронируется, осмотры с другими потенциальными покупателями производиться не будут, и начнется изготовление необходимых документов по оформлению сделки. Пожалуйста, обратитесь к ответственному за данный объект менеджеру по продажам для получения подробной информации относительно процедуры покупки и способов оплаты.
Послепродажное обслуживание
Мы уважаемая компания, за плечами которой многолетний опыт работы в сфере недвижимости. Мы будем сопровождать Вас не только во время покупки, но и после приобретения недвижимости, обеспечивая Вам дополнительный набор услуг с учетом Ваших требовании, для того, чтобы Вы могли насладиться полноценным и спокойным времяпровождением в Болгарии. Услуги, которые мы можем предложить, включают страхование, строительство и ремонт, услуги по меблировке, бухгалтерские и юридическиe услуги, переоформление договоров на электричество, воду, телефон и многое другое.
Здесь роскошь открывается заново в новом измерении!
Здесь вас ждут разнообразные мероприятия, посвященные здоровому образу жизни. Среди них вдохновляющие семинары по вопросам здоровья и спорта, программы отдыха для восстановления сил, оздоровительные и спа-процедуры, групповые мероприятия, а также прекрасные условия для занятий водными видами спорта, искусства и других развлечений, торговая зона и магазины, изысканные рестораны и бары, которые дополнят общую картину и создадут идеальную атмосферу для дружеских встреч и незабываемого отдыха.
Гранд-курорт
Проект станет самым элитным и роскошным жилым курортным комплексом на всем болгарском побережье Черного моря, развивавшимся в течение последних 15 лет - закрытый комплекс премиум-класса на первой линии моря с песчаным пляжем.
Комплекс идеально расположен на Царском пляже между курортами Черноморец и Созополь, рядом со знаменитым кемпингом «Градина». Инвестор проекта — уважаемая компания с 20-летним опытом работы, 15 построенными комплексами в стране и 100 000 реализованных жилых площадей.
Срок сдачи – май 2028 г.
С разрешением на строительство!
БЕЗ КОМИССИЙ И СБОРОВ! ПРЯМОЕ ПРЕДЛОЖЕНИЕ ОТ ИНВЕСТОРА!
Эксклюзивный агент по продажам LUXIMMO GROUP.
От первой до четвертой линии моря, на впечатляющей площади в 200 000 кв. м ., проект будет включать застроенные здания, улицы, переулки и более 130 000 кв. м. уникальной парковой зоны, а также включит в себя:
• на первой линии - 9 одноэтажных вилл, каждая со своим двором и возможностью строительства бассейна, с 3 открытыми парковочными местами;
• на второй линии - 24 двухэтажных таунхауса, всего 8 строений по три человека, с возможностью обустройства собственного бассейна, с двором и выделенными парковочными местами;
• на третьей линии - 4 многоквартирных жилых дома в 3 этажа, с 1 подземным уровнем с парковочными местами и кладовыми; просторные трех- и четырехкомнатные квартиры, всего в 100 метрах по прямой от моря;
• на четвертой линии - 5 многоквартирных жилых домов с 1 подземным уровнем с парковочными местами и кладовыми; с меньшей недвижимостью типа студий и двухкомнатных квартир, в 200 метрах по прямой от моря.
Для максимального удобства доступа к каждому зданию спроектирована внутренняя сеть автомобильных и пешеходных путей.
9 зданий с коллекцией квартир премиум-класса
Комплекс спроектирован таким образом, что в каждом жилом доме предусмотрены благоустроенные территории, детские и спортивные площадки, подземный паркинг. Каждая квартира на первом этаже имеет благоустроенный двор, а сами дома имеют зеленую крышу. Высота потолков в квартирах составляет 2,60 м.
Во всех зданиях для квартир на верхних этажах предусмотрены системы тепловых насосов.
На третьей линии от пляжа разместятся 4 здания, в каждом из которых будет три этажа + терраса, с просторными трёх- и четырёхкомнатными квартирами, всего в 100 метрах по прямой от моря. Квартиры предлагаются с отделкой под штукатурку и стяжку, с возможностью меблировки.
На четвертой линии моря, всего в 200 метрах по прямой от моря, спроектировано 5 зданий с бассейнами, каждое из которых имеет 4 этажа + террасы, с квартирами меньшей площади – студиями и двухкомнатными квартирами, в состоянии завершенности, соответствующем болгарским строительным нормам, с возможностью меблировки.
Предлагаемая к продаже недвижимость является частью четырёхэтажного здания № 2, подъезд «А», всего в доме 4 здания. Квартира расположена на первом этаже, выходит на запад, имеет общую площадь 57,92 кв. метров. В квартире просторная гостиная с кухней и столовой, ванная комната с туалетом и подсобное помещение, терраса площадью 4,66 кв. метров. и двор площадью 19,59 кв. метров.
Первая очередь курорта будет включать:
• 33 односемейных дома и виллы;
• 292 квартиры;
• 403 открытых и подземных парковочных места;
• 120 мест для велосипедов;
• Спортивный комплекс с открытыми и крытыми игровыми площадками;
• Медицинский центр;
• СПА и велнес с оздоровительными программами;
• Рестораны в парковой зоне и на пляже.
Плата за обслуживание - ?30 левов (15 €) за кв. м общей площади застройки в год.
* Круглогодичное обслуживание включает круглосуточное видеонаблюдение, уход и уборку бассейнов, садов, парков и мест общего пользования комплекса и зданий.
Мы с нетерпением ждем вашего запроса.
Если вы хотите договориться о просмотре интересующего вас объекта недвижимости или посетить один из наших офисов, пожалуйста, свяжитесь с нами. Чтобы договориться о встрече или просмотре, позвоните по указанному в объявлении номеру телефона или отправьте запрос по электронной почте. Наш консультант свяжется с вами по всем необходимым вопросам и подберет удобное для вас время.
Вы ищете подходящую для себя недвижимость?
Не стесняйтесь обращаться к нам и рассказать о своих потребностях и предпочтениях. Наша команда проведёт тщательное исследование рынка, чтобы предложить вам недвижимость, которая точно соответствует вашим критериям. У нас есть исключительное портфолио высококачественных и эксклюзивных домов, доступных только нашим клиентам. Чтобы первыми получать информацию о них, свяжитесь с нами.
Дополнительные услуги
Став нашим ценным клиентом, вы получите право пользоваться услугами нашей опытной юридической команды совершенно бесплатно. Кроме того, мы предлагаем комплексные решения, включая страхование имущества, бесплатные финансовые консультации и выгодные условия финансирования. Мы также предлагаем услуги по перепродаже, аренде и управлению недвижимостью. Мы осуществляем высококачественный ремонт и меблировку через специализированные компании, входящие в нашу группу компаний и являющиеся нашими давними профессиональными партнерами.
Смотр недвижимости
Мы готовы организовать смотр недвижимости в удобное для вас время. Обратитесь к ответственному менеджеру по продажам и проинформируйте его, когда бы Вы хотели приехать на смотровой тур. Мы можем помочь Вам забронировать авиабилет и отель, а также помочь Вам оформить визу и необходимую страховку.
Бронирование недвижимости
Вы можете забронировать недвижимость, заплатив невозмещаемый задаток в размере 2 000 евро наличным платежом, кредитной картой или банковским переводом на фирменный счет компании. После получения задатка недвижимость бронируется, осмотры с другими потенциальными покупателями производиться не будут, и начнется изготовление необходимых документов по оформлению сделки. Пожалуйста, обратитесь к ответственному за данный объект менеджеру по продажам для получения подробной информации относительно процедуры покупки и способов оплаты.
Послепродажное обслуживание
Мы уважаемая компания, за плечами которой многолетний опыт работы в сфере недвижимости. Мы будем сопровождать Вас не только во время покупки, но и после приобретения недвижимости, обеспечивая Вам дополнительный набор услуг с учетом Ваших требовании, для того, чтобы Вы могли насладиться полноценным и спокойным времяпровождением в Болгарии. Услуги, которые мы можем предложить, включают страхование, строительство и ремонт, услуги по меблировке, бухгалтерские и юридическиe услуги, переоформление договоров на электричество, воду, телефон и многое другое.
Дома и квартиры в будущем самом элитном комплексе на болгарском побережье Черного моря
Черноморец / Бургас / Болгария карта
Класс здания: Премиум
Старт строительства: Февраль, 2025
Завершение строительства: Май, 2028
Цены на недвижимость: Цена по запросу
Выберите эту опцию, и мы уведомим вас по электронной почте в случае каких-либо изменений в статусе предложения, например:
• Изменение цены;
• Объект недвижимости попал в рекламное предложение;
• Имущество зарезервировано или продано;
• Другие новости, связанные с недвижимостью.
• Имущество снимается с продажи;
Вы можете легко отписаться от уведомлений в любое время.• Изменения условий предложения;
• Изменение размера инвестиций;
• Объект инвестиции полностью реализован;
• Срок действия предложения истек.
Вы сможете легко отказаться от подписки, если в будущем решите, что больше не хотите следовать этому предложению.



...Как проверенный специалист, Stonehard PREMIER работает над позиционированием на рынке и продажами многочисленных новых строительных проектов, реализацию которых нам доверили ведущие предпринимательские компании в Болгарии и за рубежом...