Четырехкомнатная квартира в новом жилом доме рядом с Бизнес Парком София и метро Бизнес Парк.
REF#AP 124301
/
Четырехкомнатные квартиры
/
Реализованные проекты
/
София
/
Младост 4
/
София
/
Болгария
на карте
Цена:
299 696 € (2 350 €/м 2)
*Цены и наличие свободных площадей в проекте указаны ориентировочно. Для получения актуальной информации о ценах, пожалуйста, свяжитесь с нами!
Ссылка. Число: AP 124301 / 3762
Расположение: Младост 4 / София карта
Тип здания/комплекса: Жилой
Жилые районы: 127.53 м 2
Типы объектов недвижимости в здании/комплексе: Четырехкомнатные квартиры
Ссылка. Число: AP 124301 / 3762
Расположение: Младост 4 / София
Тип здания/комплекса: Жилой
Класс здания/комплекса:
Жилые районы: 127.53 м 2
Типы объектов недвижимости в здании/комплексе: Четырехкомнатные квартиры
В этом районе есть все необходимые удобства, такие как магазины и супермаркеты, школы и детские сады, остановки общественного транспорта, спортивные и развлекательные объекты.
Здание десятиэтажное и имеет три входа: А, В и С.
Есть возможность приобрести парковочные места и гаражи.
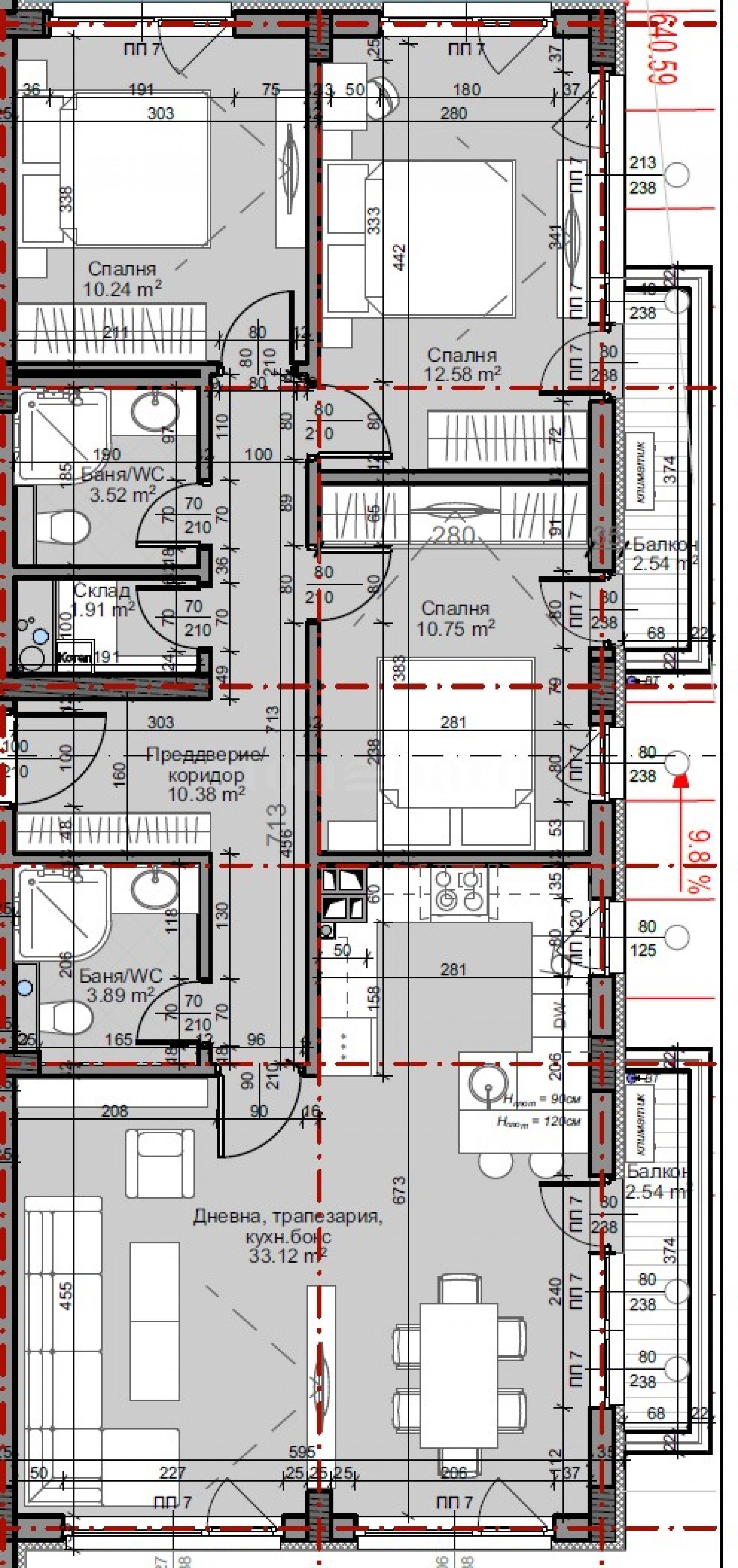
Квартира представляет собой четырехкомнатную квартиру общей площадью 127,53 кв. м (чистая площадь 110,27 кв. м + общая площадь 17,26 кв. м) и расположена на втором этаже.
Распределение: :
коридор;
гостиная с кухней и столовой;
шкаф;
три спальни;
две ванные комнаты с туалетами;
две террасы.
Квартира предлагается к продаже с высококачественной отделкой в соответствии с болгарскими стандартами, с использованием штукатурки и стяжки.
Технические обозначенных отличительных характеристики:
Высококлассное строительство с использованием самых современных технологий и материалов: кирпич Wienerberger, пятисекционные окна, лифты премиум-класса. Общие зоны роскошно оформлены, полы выложены натуральным гранитом. Отопление газовое.
Этап завершения:
Монтаж сантехники /завершен на уровне розеток/;
Электромонтажные работы, установка дверных звонков и домофонов, установка телевизоров, установка молниезащиты – все работы полностью выполнены;
Газовое отопление;
Вентиляционная установка;
Гладкая внутренняя штукатурка со шпатлевкой;
Ванные комнаты и санитарные помещения, выполненные из штукатурки и стяжки;
Внутренняя стандартная столярная отделка;
Внешние ПВХ-окна с двойным остеклением;
Бронированные входные двери;
Общие зоны полностью готовы.
План оплаты:
Предварительный контракт – 40%
Акт 15 – 20%
Акт 16 – 30%
Мы с нетерпением ждём вашего запроса.
Если вы хотите договориться о просмотре интересующего вас объекта недвижимости или посетить один из наших офисов, пожалуйста, свяжитесь с нами. Чтобы согласовать день и время встречи или просмотра, вы можете позвонить по номеру телефона, указанному в объявлении, или отправить запрос по электронной почте. Наш консультант поможет вам со всеми необходимыми деталями и согласует удобное для вас время.
Вы ищете подходящую недвижимость?
Не стесняйтесь обращаться к нам и рассказывать о ваших потребностях и предпочтениях. Наша команда проведет тщательное исследование рынка, чтобы предложить вам объекты недвижимости, точно соответствующие вашим критериям. У нас есть исключительное портфолио высококачественных и эксклюзивных домов, доступных только нашим клиентам. Чтобы первыми получать информацию о них – свяжитесь с нами.
Дополнительные услуги
Как ценный клиент нашей компании, вы получите привилегию пользоваться услугами нашей опытной юридической команды совершенно бесплатно. Кроме того, мы предлагаем комплексные решения, включая страхование недвижимости, бесплатные финансовые консультации, а также выгодные условия финансирования. Наши услуги также распространяются на сферу перепродажи, аренды и управления недвижимостью. Мы предоставляем высококачественные услуги по ремонту и меблировке через специализированные компании, входящие в нашу корпоративную группу и являющиеся нашими давними профессиональными партнерами.
Смотр недвижимости
Мы готовы организовать смотр недвижимости в удобное для вас время. Обратитесь к ответственному менеджеру по продажам и проинформируйте его, когда бы Вы хотели приехать на смотровой тур. Мы можем помочь Вам забронировать авиабилет и отель, а также помочь Вам оформить визу и необходимую страховку.
Бронирование недвижимости
Вы можете забронировать недвижимость, заплатив невозмещаемый задаток в размере 2 000 евро наличным платежом, кредитной картой или банковским переводом на фирменный счет компании. После получения задатка недвижимость бронируется, осмотры с другими потенциальными покупателями производиться не будут, и начнется изготовление необходимых документов по оформлению сделки. Пожалуйста, обратитесь к ответственному за данный объект менеджеру по продажам для получения подробной информации относительно процедуры покупки и способов оплаты.
Послепродажное обслуживание
Мы уважаемая компания, за плечами которой многолетний опыт работы в сфере недвижимости. Мы будем сопровождать Вас не только во время покупки, но и после приобретения недвижимости, обеспечивая Вам дополнительный набор услуг с учетом Ваших требовании, для того, чтобы Вы могли насладиться полноценным и спокойным времяпровождением в Болгарии. Услуги, которые мы можем предложить, включают страхование, строительство и ремонт, услуги по меблировке, бухгалтерские и юридическиe услуги, переоформление договоров на электричество, воду, телефон и многое другое.
Расположение на карте
Новый жилой проект из трех зданий с разными типами квартир в районе «Дианабад»
Дианабад / София / София / Болгария карта
Цены на недвижимость: 176 199 - 450 565 €
Цены за м²: 2 913 - 3 339 €/м 2
Квартиры разных типов в новом доме с элегантной современной архитектурой в районе Горубляне
Горубляне / София / София / Болгария карта
Цены на недвижимость: 72 557 - 248 851 €
Цены за м²: 1 850 - 1 850 €/м 2
ПРОДАЖА
ПРОЕКТ
Четырехкомнатная квартира с тремя террасами в элитном комплексе с Act 16 в Боянском районе.
Бояна / София / София / Болгария карта
Класс здания/комплекса: Высокий стандарт
Область: 212.60 м 2
Цена: 434 767 € /// 2 045 €/м 2
Выберите эту опцию, и мы уведомим вас по электронной почте в случае каких-либо изменений в статусе предложения, например:
• Изменение цены;
• Объект недвижимости попал в рекламное предложение;
• Имущество зарезервировано или продано;
• Другие новости, связанные с недвижимостью.
• Имущество снимается с продажи;
Вы можете легко отписаться от уведомлений в любое время.• Изменения условий предложения;
• Изменение размера инвестиций;
• Объект инвестиции полностью реализован;
• Срок действия предложения истек.
Вы сможете легко отказаться от подписки, если в будущем решите, что больше не хотите следовать этому предложению.
Для получения абсолютно корректной информации о свободных объектах недвижимости, выставленных на продажу в проекте, и их актуальных ценах, пожалуйста, свяжитесь с нашим офисом по указанным контактам.
Мы прилагаем все усилия, чтобы наши прайс-листы были абсолютно актуальными и правильными, но зачастую это невозможно, учитывая большое количество новых проектов в нашем каталоге и высокую динамику продаж.
Благодарим за понимание!



...Как проверенный специалист, Stonehard PREMIER работает над позиционированием на рынке и продажами многочисленных новых строительных проектов, реализацию которых нам доверили ведущие предпринимательские компании в Болгарии и за рубежом...