Новый таунхаус в закрытом комплексе Slow Life с актом 16
Цена:
515 000 €
*Цены и наличие свободных площадей в проекте указаны ориентировочно. Для получения актуальной информации о ценах, пожалуйста, свяжитесь с нами!
Ссылка. Число: SOF-123937 / 3787
Расположение: София карта
Тип здания/комплекса: Жилой
Жилые районы: 231.59 м 2
Типы объектов недвижимости в здании/комплексе: Таунхаусы
Ссылка. Число: SOF-123937 / 3787
Расположение: София
Тип здания/комплекса: Жилой
Класс здания/комплекса:
Жилые районы: 231.59 м 2
Типы объектов недвижимости в здании/комплексе: Таунхаусы
Просторный дом и собственный двор, безопасность и комфорт в закрытом комплексе с предусмотренными условиями для занятий спортом и защищенными игровыми площадками для детей.
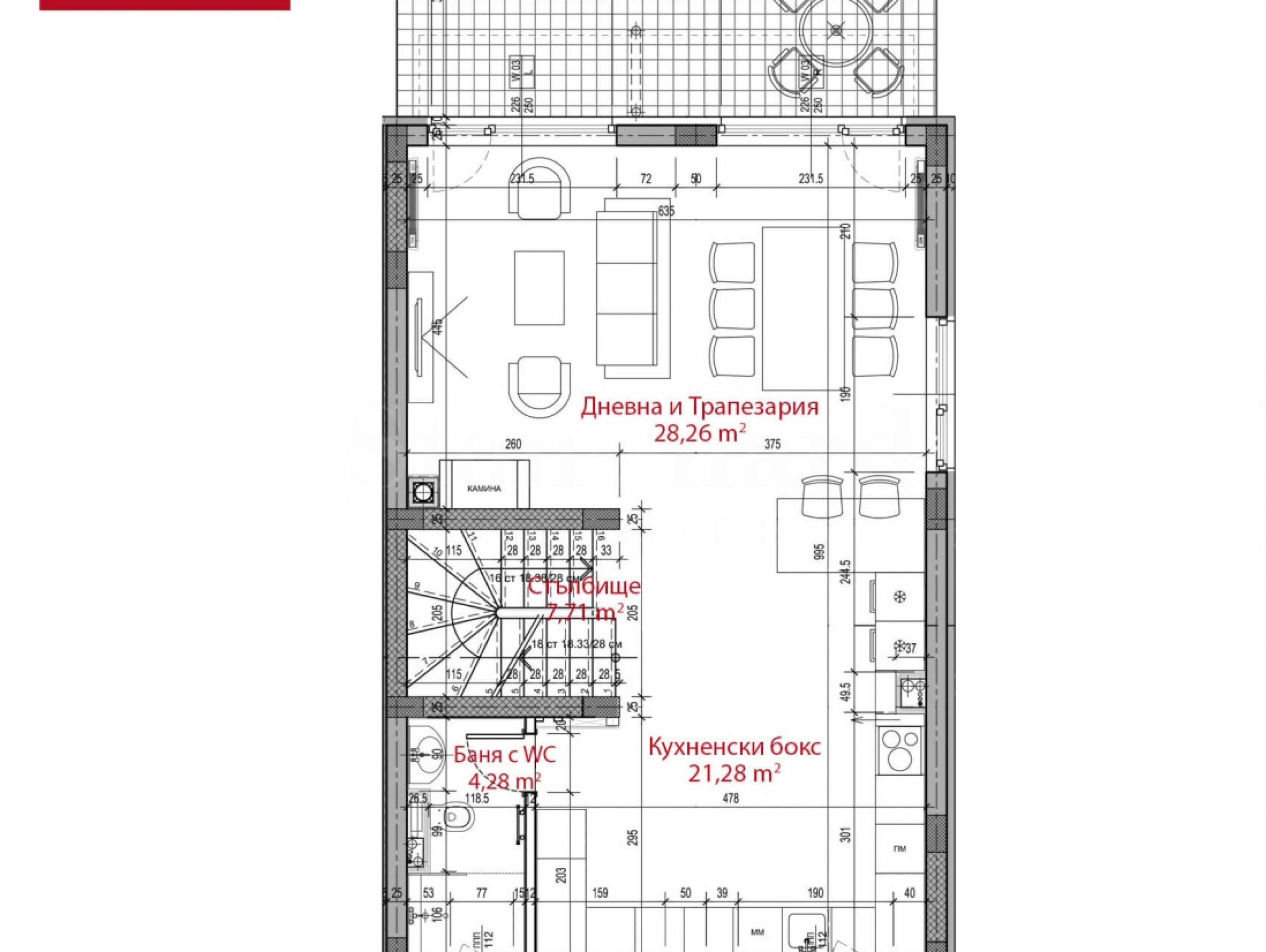
Дом двухэтажный , жилая площадь составляет 231,59 кв. м, собственный двор площадью 205 кв. м. Из окон открывается прекрасный панорамный вид на гору Витоша.
Распределение помещений в объекте недвижимости следующее:
Первый уровень:
• прихожая;
• просторная и светлая гостиная и столовая с французскими окнами, выходящими на веранду и благоустроенный двор;
• столовая, расположенная в открытом пространстве с кухней;
• ванная комната и туалет для гостей;
• внутренние лестницы;
• два гаража на две машины с дистанционным управлением открывания;
• техническое помещение с собственным санузлом.
Второй уровень:
• главная спальня с собственной ванной комнатой и выходом в большую гардеробную;
• вторая спальня;
• третья спальня;
• ванная комната с туалетом;
• панорамный вид на гору Витоша.
Дом построен полностью из высококачественных материалов, что делает его чрезвычайно комфортным и энергоэффективным. Столярные изделия имеют отличные тепло- и звукоизоляционные упомянутых обозначенных перечисленных упомянутых характеристики, отопление во всем доме водяное с высокоэффективным тепловым насосом, управляемым комнатными термостатами в каждой комнате.
Входная дверь выполнена из высококачественного массива.
Взимается ежемесячная плата за обслуживание и охрану.
Комплекс «Дистрикт медленной жизни»
Комплекс расположен в 15 минутах езды на машине от Софии. Его расположение чрезвычайно удобно, а именно он находится на южной стороне горы Витоша, что гарантирует максимальное количество солнечных дней в течение всего года.
До Slow Life можно добраться по дороге из Софии в Перник и Кулату, повернув налево у деревни Владая. Комплекс расположен на высоте 950 метров и состоит из 45 домов. Комплекс предлагает своим жителям просторные зеленые зоны, открытую зону для барбекю, футбольное поле, а также открытый тренажерный зал.
Дома расположены веером, все жилые помещения выходят окнами на панораму Витоши.
Поселок располагает круглосуточной охраной и обслуживанием всего комплекса, а также собственной инфраструктурой — подземной распределительной сетью электроснабжения, станцией очистки воды, канализацией и оптоволоконным кабелем для интернета.
Село имеет уникальное расположение, сочетающее в себе близость к столице (всего 10 км от въезда в Софию), а также прекрасную панораму, здоровый климат и удобства повседневной жизни. Недалеко от села находятся турбаза «Селимица», водохранилище «Студена», охотничья резиденция «Студена», минеральный пляж «Рударци», Черни Врых, монастырь Св. Николы, пещера Духлата и т. д.
Смотр недвижимости
Мы готовы организовать смотр недвижимости в удобное для вас время. Обратитесь к ответственному менеджеру по продажам и проинформируйте его, когда бы Вы хотели приехать на смотровой тур. Мы можем помочь Вам забронировать авиабилет и отель, а также помочь Вам оформить визу и необходимую страховку.
Бронирование недвижимости
Вы можете забронировать недвижимость, заплатив невозмещаемый задаток в размере 2 000 евро наличным платежом, кредитной картой или банковским переводом на фирменный счет компании. После получения задатка недвижимость бронируется, осмотры с другими потенциальными покупателями производиться не будут, и начнется изготовление необходимых документов по оформлению сделки. Пожалуйста, обратитесь к ответственному за данный объект менеджеру по продажам для получения подробной информации относительно процедуры покупки и способов оплаты.
Послепродажное обслуживание
Мы уважаемая компания, за плечами которой многолетний опыт работы в сфере недвижимости. Мы будем сопровождать Вас не только во время покупки, но и после приобретения недвижимости, обеспечивая Вам дополнительный набор услуг с учетом Ваших требовании, для того, чтобы Вы могли насладиться полноценным и спокойным времяпровождением в Болгарии. Услуги, которые мы можем предложить, включают страхование, строительство и ремонт, услуги по меблировке, бухгалтерские и юридическиe услуги, переоформление договоров на электричество, воду, телефон и многое другое.
Расположение на карте
ПРОДАЖА
ПРОЕКТ
Двухквартирный дом в закрытом комплексе Slow Life с актом 16
София / София / Болгария карта
Область: 229.29 м 2
Цена: 515 000 € ///
Выберите эту опцию, и мы уведомим вас по электронной почте в случае каких-либо изменений в статусе предложения, например:
• Изменение цены;
• Объект недвижимости попал в рекламное предложение;
• Имущество зарезервировано или продано;
• Другие новости, связанные с недвижимостью.
• Имущество снимается с продажи;
Вы можете легко отписаться от уведомлений в любое время.• Изменения условий предложения;
• Изменение размера инвестиций;
• Объект инвестиции полностью реализован;
• Срок действия предложения истек.
Вы сможете легко отказаться от подписки, если в будущем решите, что больше не хотите следовать этому предложению.
Для получения абсолютно корректной информации о свободных объектах недвижимости, выставленных на продажу в проекте, и их актуальных ценах, пожалуйста, свяжитесь с нашим офисом по указанным контактам.
Мы прилагаем все усилия, чтобы наши прайс-листы были абсолютно актуальными и правильными, но зачастую это невозможно, учитывая большое количество новых проектов в нашем каталоге и высокую динамику продаж.
Благодарим за понимание!



...Как проверенный специалист, Stonehard PREMIER работает над позиционированием на рынке и продажами многочисленных новых строительных проектов, реализацию которых нам доверили ведущие предпринимательские компании в Болгарии и за рубежом...