Четырехкомнатный мезонет под ключ в престижном комплексе 7 Ангелов
на карте
Цена:
338 865 € (без НДС) (1 900 €/м 2 (без НДС))
*Цены и наличие свободных площадей в проекте указаны ориентировочно. Для получения актуальной информации о ценах, пожалуйста, свяжитесь с нами!
Ссылка. Число: STO 117958 / 3566
Расположение: Боровец карта
Тип здания/комплекса: Жилой
Класс здания/комплекса: Роскошный
Жилые районы: 178.35 м 2
Типы объектов недвижимости в здании/комплексе: Многокомнатные квартиры, Пентхаусы в двух уровнях
Ссылка. Число: STO 117958 / 3566
Расположение: Боровец
Тип здания/комплекса: Жилой
Класс здания/комплекса: Роскошный
Жилые районы: 178.35 м 2
Типы объектов недвижимости в здании/комплексе: Многокомнатные квартиры, Пентхаусы в двух уровнях
Проект будет реализован без компромиссов и претендует на звание одной из самых известных и престижных резиденций в аристократическом горном курорте Болгарии, основанном царем Фердинандом более 120 лет назад. Проект предусматривает полную реконструкцию двух существующих зданий бывшего отеля «Зодиак» на курорте Боровец и их превращение в роскошную горную резиденцию с комфортабельными апартаментами и широким спектром удобств для своих жителей.
С РАЗРЕШЕНИЕМ НА СТРОИТЕЛЬСТВО!
Планируемое завершение строительства – конец 2026 года.
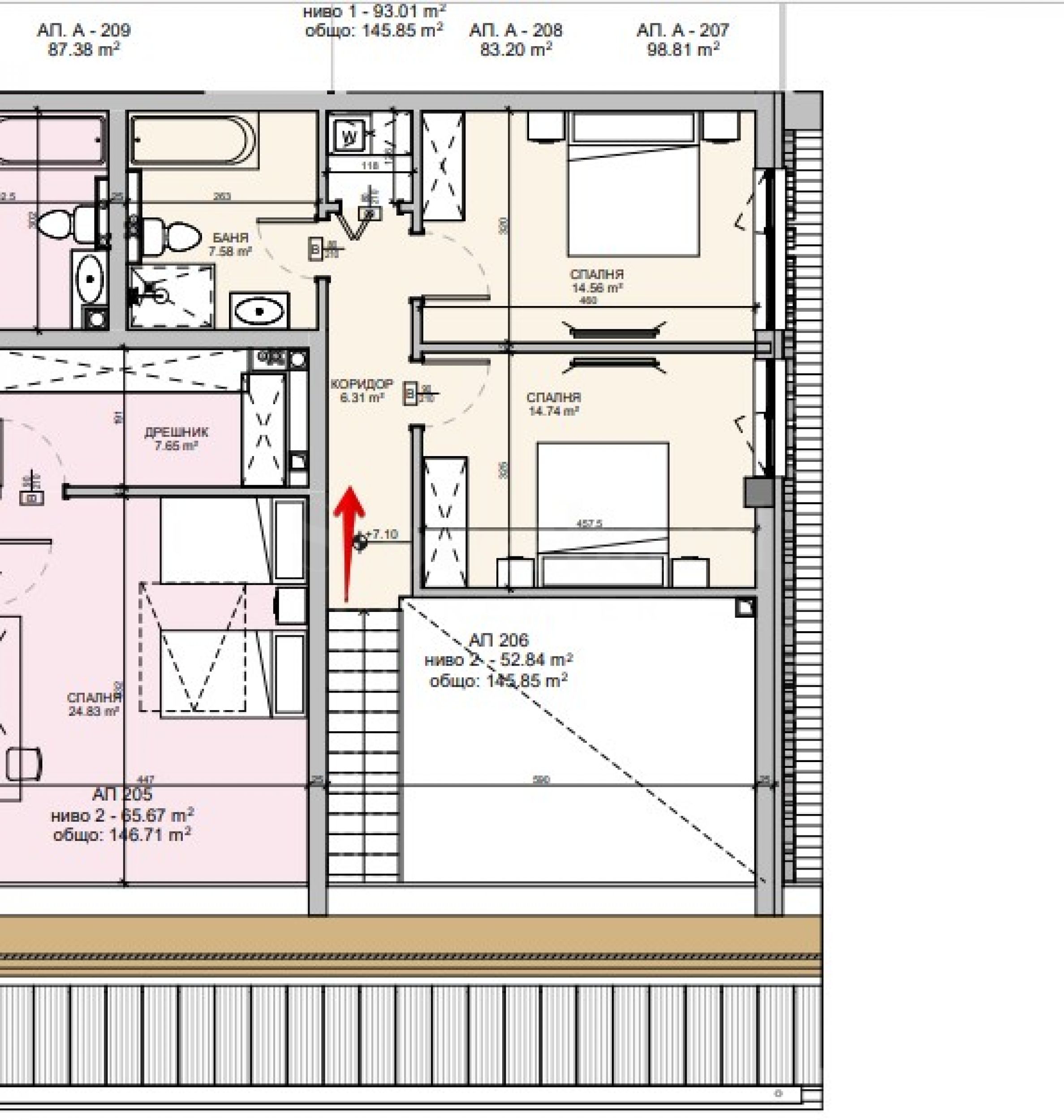
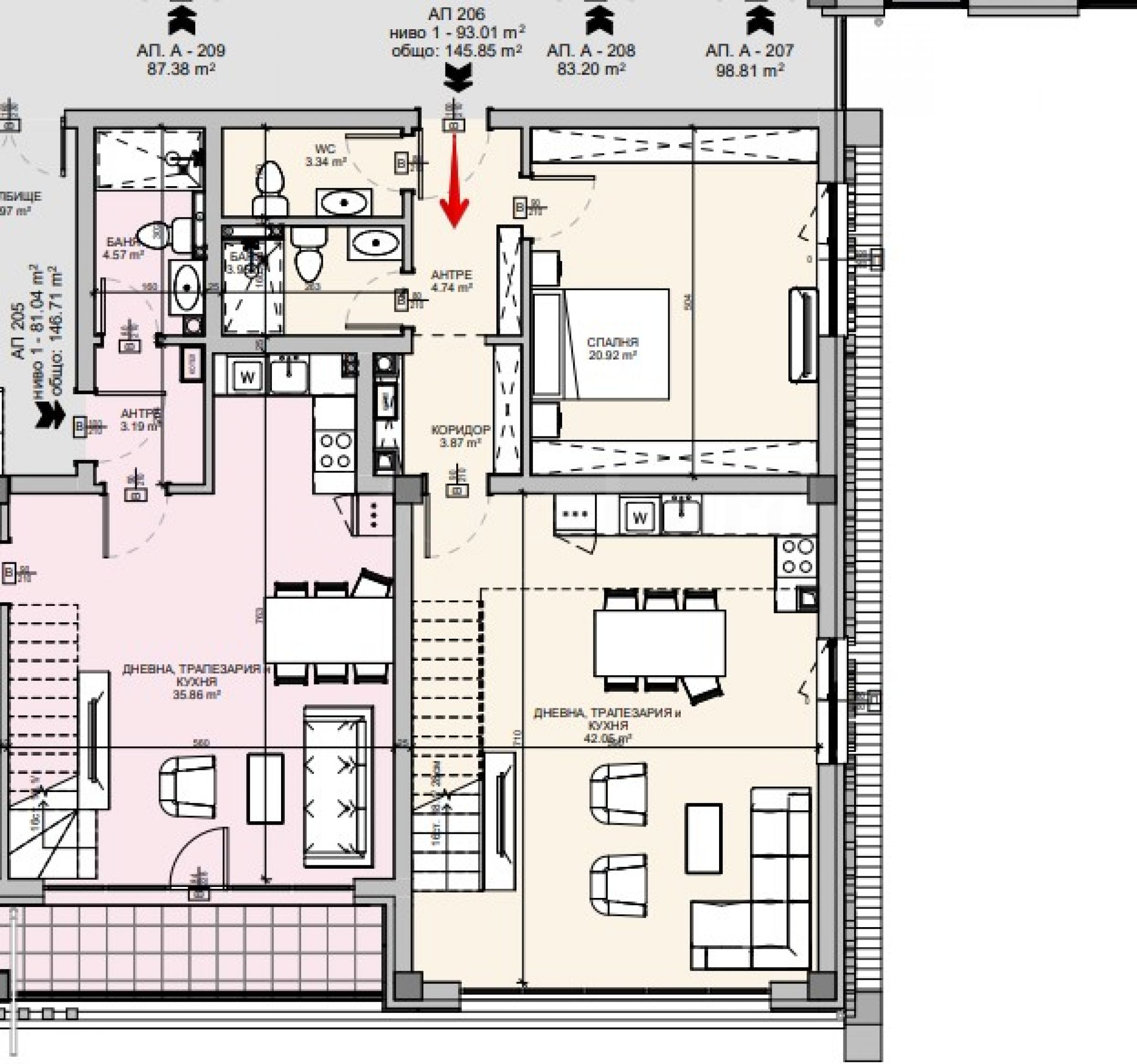
Квартира расположена на 2-м и 3-м этажах и имеет общую площадь 178,35 кв. м (чистая площадь 145,59 кв. м + общая площадь 32,76 кв. м). На первом этаже находятся прихожая, гостиная с мини-кухней, две спальни, ванная комната с туалетом и отдельный туалет, а на втором этаже — спальня и ванная комната с туалетом.
Расположение
Благодаря своему уединенному расположению на высоте 1340 м над уровнем моря, Боровец предлагает исключительно чистый воздух, а река Бистрица, протекающая через весь курорт, создает воздушные потоки, которые придают воздуху особую структуру и способствуют оздоровлению и быстрому восстановлению здоровья человека. Этот район идеально подходит для зимнего и летнего туризма, катания на лыжах, велоспорта, горных походов, бега по горам, скалолазания, парапланеризма, верховой езды. Здесь проложено 58 км различных горнолыжных трасс, подходящих как для начинающих, так и для опытных лыжников. Расположение обеспечивает быстрый доступ к центру курорта: в 900 м от гондольного подъемника и всего в 50 м от 800-метровой горнолыжной трассы для начинающих.
Квартиры с панорамным видом — для личного пользования или инвестиций.
Комплекс запланирован в трех секциях – двух жилых зданиях и ресторане между ними, который обеспечивает теплую и уютную связь между ними. Высота потолков составляет 2,50–2,60 метра для здания B и более 3,20 метра для здания A. Планируется 58 квартир с возможностью объединения – студии и квартиры с одной, двумя и тремя спальнями, некоторые из которых имеют террасы с выходом в сад, а другие – мезонеты. Квартиры тщательно спроектированы для максимально комфортного проживания, а панорамное остекление здания способствует как обилию естественного света, так и прекрасным видам на захватывающую дух природную красоту.
Квартиры предлагаются «под ключ» с готовыми полами (паркет), стенами, отделанными и оборудованными ванными комнатами; деревянной трехслойной меблировкую, немецким профилем, тройным остеклением и алюминиевым наличником, защищающим древесину от холода и солнца и обеспечивающим долгий срок службы; бронированными входными дверями и межкомнатными дверями из МДФ, установленными радиаторами и системой «умный дом», включенными в цену. Отопление осуществляется индивидуальным газовым отоплением и радиаторами.
Компания 7 Angels также предложит интегрированную систему «умный дом» в каждом доме, с двумя вариантами на выбор.
Вариант 1 (базовый) включает в себя:
• Управление газовым котлом;
• Управление системой сигнализации по запросу клиента (с подготовкой к включению системы безопасности с возможностью фотосъемки при обнаружении движения и отправки изображения в режиме реального времени владельцу недвижимости);
• Пожарная сигнализация;
• Приветственная подсветка на пороге каждого дома;
• Управление интернетом и кабельным телевидением.
Вариант 2 включает в себя:
• Управление газовым котлом;
• Управление системой сигнализации по запросу клиента (с подготовкой к включению системы безопасности с возможностью фотосъемки при обнаружении движения и отправки изображения в режиме реального времени владельцу недвижимости);
• Пожарная сигнализация;
• Приветственная подсветка на пороге каждого дома;
• Управление интернетом и кабельным телевидением;
• Автоматическое перемещение штор;
• Внедрение любых других дополнительных функций системы «умный дом» по запросу клиента.
Каждый владелец недвижимости в комплексе 7 Angels также получит доступ к сервису Captive Portal, где сможет отслеживать температуру в доме и потребление энергии с помощью цифрового счетчика электроэнергии и газа. Для дополнительного удобства и безопасности будет использоваться система QR-кодов для доступа на парковку и к услугам современного СПА-центра комплекса.
Указанная цена не включает НДС.
Полный спектр впечатлений
Комплекс 7 Angels будет построен в соответствии с концепцией «Здоровое здание» с использованием самых современных строительных технологий и решений для повышения энергоэффективности и создания благоприятной среды обитания. Его впечатляющий альпийский стиль вдохновлен лучшими горнолыжными курортами Швейцарии.
Архитектурная концепция будет подчеркнута роскошно оформленными общими зонами с лифтами KONE, а жители получат доступ к ресторану премиум-класса, итальянской кофейне, лыжной комнате, ультрасовременному оздоровительному и SPA-центру, включающему крытые и открытые сауны, небольшой бассейн с диффузорами, паровую баню и массажные кабинеты, а также фитнес-центр с оснащением Kettler и Tehnogym.
В течение всего дня предоставляется бесплатный трансфер от комплекса до станции гондольного подъемника, а неподалеку будет построена детская игровая площадка.
7 ангелов – когда природа исцеляет
Комплекс «7 Angels» предложит не только самые современные удобства, но и возможность близко познакомиться с целительной силой Рилы.
Комплекс превратится в прекрасное место для уединения и отдыха в здоровой окружающей среде и с кристально чистым воздухом. Боровец — традиционное место лечения и реабилитации заболеваний легких, а бурная река Бистрица, протекающая неподалеку от комплекса «7 ангелов», дополнительно насыщает воздух кислородом.
Энергия этого особенного места объединится с опытом проверенных целителей, практикующих натуропатию, которые будут постоянными гостями в двух специально созданных кабинетах. Вы сможете воспользоваться навыками специалистов по аюрведе, ирис-диагностике, терапии Юмейхо и многим другим, что превратит время, проведенное в «7 Angels», в опыт для тела и души.
В комплексе «7 Angels» вас ждет путешествие вглубь себя, вдали от городского шума, в окружении многовекового соснового леса.
Если вам нужен активный отдых, 7 Angels предлагает множество возможностей для занятий спортом поблизости. В настоящее время ведется проект по строительству многочисленных велосипедных дорожек в этом районе, что обеспечит комфортные условия для езды на велосипеде как на курорте, так и в горах, а зимой горнолыжный склон рядом с комплексом станет идеальным вариантом для начинающих лыжников и детей.
Возможность приобрести собственное парковочное место на открытой парковке комплекса или в подземном крытом гараже:
Надземные парковочные места - 8000 евро без НДС;
Подземные парковочные места - 15 000 евро без НДС.
Стандартная схема оплаты:
Залог за бронирование — от 7000 до 11000 евро в зависимости от типа апартаментов (залог гарантирует бронирование до момента закладки первого камня) — предварительный договор подписывается в течение 14 дней после внесения залога за бронирование;
25% за вычетом задатка - при подписании предварительного соглашения;
25% с установленной меблировкую;
30% с установленным фасадом;
20% по Акту 16.
плата за обслуживание
Обязательный взнос за техническое обслуживание устанавливается на первые 2 года в размере 15 евро/м2 без НДС от общей площади дома, включая общие зоны.
Благодаря своей экологичной и нестандартной концепции, 7 Angels предоставляет возможность жить в здоровой среде, пользоваться первоклассными удобствами и находиться недалеко от горнолыжных склонов и подъемников курорта. Свяжитесь с нами для получения дополнительной информации и профессиональной консультации!
Смотр недвижимости
Мы готовы организовать смотр недвижимости в удобное для вас время. Обратитесь к ответственному менеджеру по продажам и проинформируйте его, когда бы Вы хотели приехать на смотровой тур. Мы можем помочь Вам забронировать авиабилет и отель, а также помочь Вам оформить визу и необходимую страховку.
Бронирование недвижимости
Вы можете забронировать недвижимость, заплатив невозмещаемый задаток в размере 2 000 евро наличным платежом, кредитной картой или банковским переводом на фирменный счет компании. После получения задатка недвижимость бронируется, осмотры с другими потенциальными покупателями производиться не будут, и начнется изготовление необходимых документов по оформлению сделки. Пожалуйста, обратитесь к ответственному за данный объект менеджеру по продажам для получения подробной информации относительно процедуры покупки и способов оплаты.
Послепродажное обслуживание
Мы уважаемая компания, за плечами которой многолетний опыт работы в сфере недвижимости. Мы будем сопровождать Вас не только во время покупки, но и после приобретения недвижимости, обеспечивая Вам дополнительный набор услуг с учетом Ваших требовании, для того, чтобы Вы могли насладиться полноценным и спокойным времяпровождением в Болгарии. Услуги, которые мы можем предложить, включают страхование, строительство и ремонт, услуги по меблировке, бухгалтерские и юридическиe услуги, переоформление договоров на электричество, воду, телефон и многое другое.
Расположение на карте
ПРАВА
7 Angels - квартиры класса люкс на горнолыжном курорте Боровец
Боровец / София / Болгария карта
Класс здания: Роскошный
Старт строительства: Май, 2025
Завершение строительства: Декабрь, 2026
Цены на недвижимость: 123 354 - 773 406 € (без НДС)
Цены за м²: 1 800 - 1 900 €/м 2 (без НДС)
Выберите эту опцию, и мы уведомим вас по электронной почте в случае каких-либо изменений в статусе предложения, например:
• Изменение цены;
• Объект недвижимости попал в рекламное предложение;
• Имущество зарезервировано или продано;
• Другие новости, связанные с недвижимостью.
• Имущество снимается с продажи;
Вы можете легко отписаться от уведомлений в любое время.• Изменения условий предложения;
• Изменение размера инвестиций;
• Объект инвестиции полностью реализован;
• Срок действия предложения истек.
Вы сможете легко отказаться от подписки, если в будущем решите, что больше не хотите следовать этому предложению.
Для получения абсолютно корректной информации о свободных объектах недвижимости, выставленных на продажу в проекте, и их актуальных ценах, пожалуйста, свяжитесь с нашим офисом по указанным контактам.
Мы прилагаем все усилия, чтобы наши прайс-листы были абсолютно актуальными и правильными, но зачастую это невозможно, учитывая большое количество новых проектов в нашем каталоге и высокую динамику продаж.
Благодарим за понимание!



...Как проверенный специалист, Stonehard PREMIER работает над позиционированием на рынке и продажами многочисленных новых строительных проектов, реализацию которых нам доверили ведущие предпринимательские компании в Болгарии и за рубежом...