Трехкомнатная квартира в новом современном доме рядом с метро Хаджи Димитър
REF#Sve-110288
/
Трёхкомнатные квартиры
/
Реализованные проекты
/
София
/
Сухата река
/
София
/
Болгария
на карте
Цена:
277 000 € (2 553 €/м 2)
*Цены и наличие свободных площадей в проекте указаны ориентировочно. Для получения актуальной информации о ценах, пожалуйста, свяжитесь с нами!
Ссылка. Число: Sve-110288 / 3250
Расположение: Сухата река / София карта
Тип здания/комплекса: Жилой
Жилые районы: 108.49 м 2
Типы объектов недвижимости в здании/комплексе: Трёхкомнатные квартиры
Ссылка. Число: Sve-110288 / 3250
Расположение: Сухата река / София
Тип здания/комплекса: Жилой
Класс здания/комплекса:
Жилые районы: 108.49 м 2
Типы объектов недвижимости в здании/комплексе: Трёхкомнатные квартиры
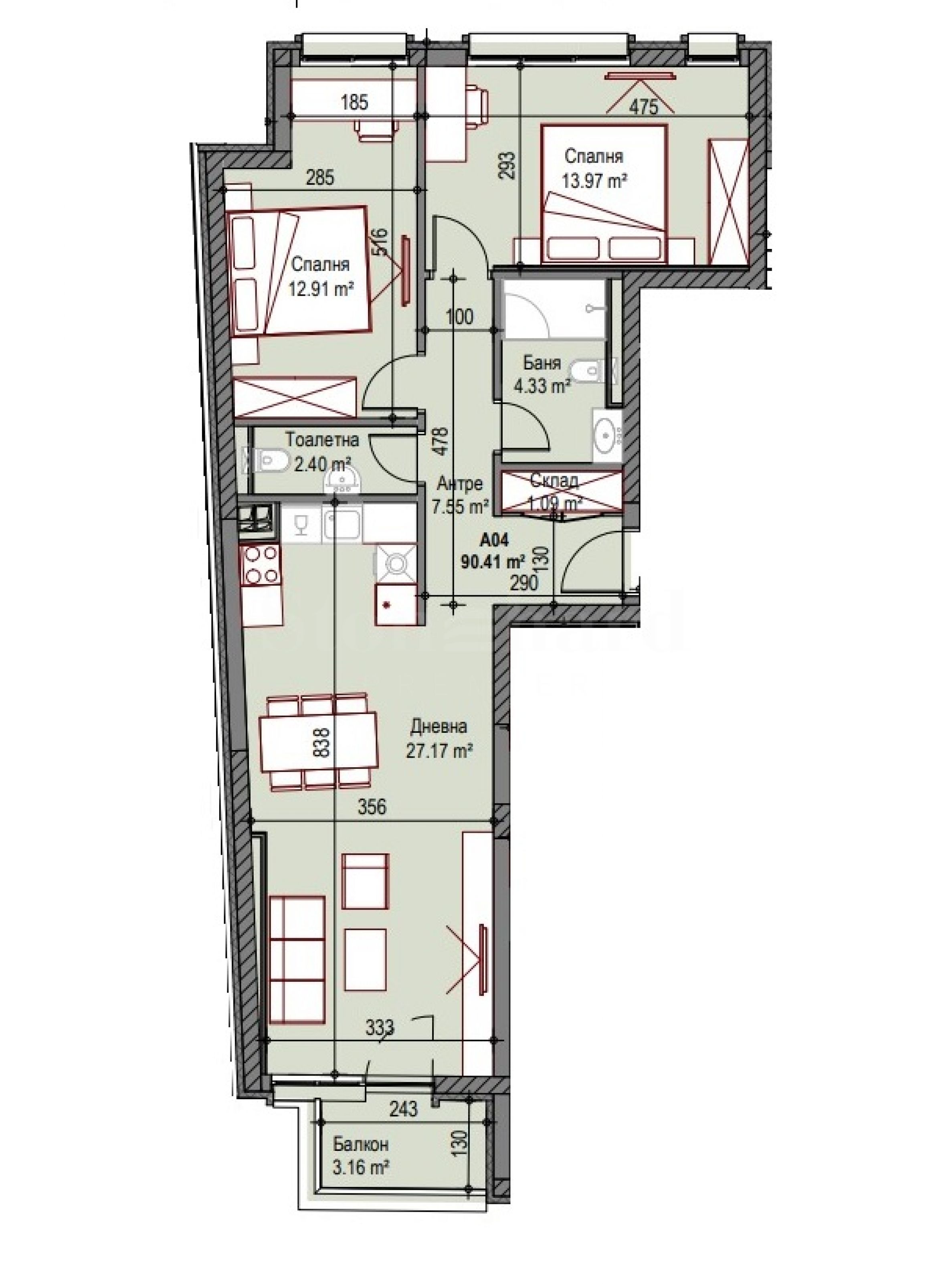
Квартира расположена на 8 этаже и имеет площадь 108,49 кв. м. и состоит из прихожей, гостиной, двух спален, ванной комнаты с туалетом, туалета и балкона.
Рядом находятся остановки общественного транспорта, станция метро «Хаджи Димитр», супермаркеты, школы и детский сад. Рядом проходят улицы Черковная, Александра Экзарха, а также бульвары Владимира Вазова и Генерала Данаила Николаева, обеспечивающие сообщение со всеми частями города. Торговый центр «Сердика» находится в 5 минутах езды или в 10 минутах ходьбы, а парк Заимова, расположенный в престижном районе Оборище, — в 18 минутах ходьбы.
Покупка без комиссии.
Здание имеет 9 этажей, имеет два подъезда и предлагает на выбор двух-, трех- и четырехкомнатные квартиры, спроектированные в соответствии с европейскими стандартами, с ощущением большого пространства и солнечного света.
Парковка обеспечена парковочными местами и гаражами, расположенными на первом этаже и в подвале:
парковочные места по цене от 20 000 евро;
гаражи по цене 30 000 - 40 000 евро.
В строительстве используются современные технологии и современные материалы, что позволяет добиться низких энергозатрат и создать высокий уровень комфорта и спокойствия для жителей комплекса. Архитектурное решение выполнено в современном стиле с фасадом из полимерной штукатурки и натурального камня, а места общего пользования будут отделаны роскошным гранитом, панелями и гидравлическим лифтом. Для оформления участка и озеленения предусмотрена светодиодная подсветка фасада и декоративное садовое освещение.
Функции:
ограждающие и перегородочные кирпичные стены из высококачественного кирпича Wienerberger;
здания утеплены утеплителем EPS толщиной 10 см, а крыши утеплены утеплителем XPS толщиной 10 см и двойной гидроизоляцией;
все террасы гидроизолированы;
6-камерные оконные рамы с тройными стеклопакетами и стеклом К;
бронированные двери;
система контроля доступа в здание и подземный гараж, видеодомофон с контролем доступа по чипам или картам;
система видеонаблюдения, охватывающая весь периметр здания;
Охранная сигнализация для каждой квартиры;
электронные счетчики воды, где вся информация будет сканироваться от входа в здание;
В каждом доме установлены домофон, телефон и видеодомофон, сеть для подключения кабельного телевидения и Интернета;
розетки для электрических жалюзи на каждом окне в жилой зоне;
выходы для кондиционера в каждой комнате.
Схема оплаты:
30% - Предварительный договор;
30% - Акт 14;
20% - Водоснабжение и канализация;
10% - Акт 15;
10% - Акт 16.
Этапы строительства:
начало - декабрь 2023 г.;
Акт 14 – апрель 2025 г.;
Акт 16 – октябрь 2026 г.
Для получения дополнительной информации и организации просмотра, пожалуйста, свяжитесь с брокером, ответственным за предложение.
Смотр недвижимости
Мы готовы организовать смотр недвижимости в удобное для вас время. Обратитесь к ответственному менеджеру по продажам и проинформируйте его, когда бы Вы хотели приехать на смотровой тур. Мы можем помочь Вам забронировать авиабилет и отель, а также помочь Вам оформить визу и необходимую страховку.
Бронирование недвижимости
Вы можете забронировать недвижимость, заплатив невозмещаемый задаток в размере 2 000 евро наличным платежом, кредитной картой или банковским переводом на фирменный счет компании. После получения задатка недвижимость бронируется, осмотры с другими потенциальными покупателями производиться не будут, и начнется изготовление необходимых документов по оформлению сделки. Пожалуйста, обратитесь к ответственному за данный объект менеджеру по продажам для получения подробной информации относительно процедуры покупки и способов оплаты.
Послепродажное обслуживание
Мы уважаемая компания, за плечами которой многолетний опыт работы в сфере недвижимости. Мы будем сопровождать Вас не только во время покупки, но и после приобретения недвижимости, обеспечивая Вам дополнительный набор услуг с учетом Ваших требовании, для того, чтобы Вы могли насладиться полноценным и спокойным времяпровождением в Болгарии. Услуги, которые мы можем предложить, включают страхование, строительство и ремонт, услуги по меблировке, бухгалтерские и юридическиe услуги, переоформление договоров на электричество, воду, телефон и многое другое.
Расположение на карте
Многоквартирный жилой дом с благоустроенным двором и различными типами квартир в районе "Малинова Долина".
Малинова долина / София / София / Болгария карта
Цены на недвижимость: Цена по запросу
ПРОДАЖА
ПРОЕКТ
Квартира в современном новостройке с 16-м актом в районе "Малинова Долина".
Малинова долина / София / София / Болгария карта
Область: 104.99 м 2
Цена: 273 000 € /// 2 600 €/м 2
ПРОДАЖА
ПРОЕКТ
Двухкомнатная квартира в новом жилом комплексе, недалеко от станции метро и торгового центра Paradise Mall.
Кръстова вада / София / София / Болгария карта
Область: 147.05 м 2
Цена: 399 000 € /// 2 713 €/м 2
Выберите эту опцию, и мы уведомим вас по электронной почте в случае каких-либо изменений в статусе предложения, например:
• Изменение цены;
• Объект недвижимости попал в рекламное предложение;
• Имущество зарезервировано или продано;
• Другие новости, связанные с недвижимостью.
• Имущество снимается с продажи;
Вы можете легко отписаться от уведомлений в любое время.• Изменения условий предложения;
• Изменение размера инвестиций;
• Объект инвестиции полностью реализован;
• Срок действия предложения истек.
Вы сможете легко отказаться от подписки, если в будущем решите, что больше не хотите следовать этому предложению.
Для получения абсолютно корректной информации о свободных объектах недвижимости, выставленных на продажу в проекте, и их актуальных ценах, пожалуйста, свяжитесь с нашим офисом по указанным контактам.
Мы прилагаем все усилия, чтобы наши прайс-листы были абсолютно актуальными и правильными, но зачастую это невозможно, учитывая большое количество новых проектов в нашем каталоге и высокую динамику продаж.
Благодарим за понимание!



...Как проверенный специалист, Stonehard PREMIER работает над позиционированием на рынке и продажами многочисленных новых строительных проектов, реализацию которых нам доверили ведущие предпринимательские компании в Болгарии и за рубежом...