Трехкомнатная квартира в современном комплексе рядом с Симеоновским шоссе
Цена:
205 656 € (1 900 €/м 2)
*Цены и наличие свободных площадей в проекте указаны ориентировочно. Для получения актуальной информации о ценах, пожалуйста, свяжитесь с нами!
Ссылка. Число: STO-135378 / 4812
Расположение: Малинова долина / София карта
Тип здания/комплекса: Жилой
Жилые районы: 108.24 м 2
Типы объектов недвижимости в здании/комплексе: Трёхкомнатные квартиры
Ссылка. Число: STO-135378 / 4812
Расположение: Малинова долина / София
Тип здания/комплекса: Жилой
Класс здания/комплекса:
Жилые районы: 108.24 м 2
Типы объектов недвижимости в здании/комплексе: Трёхкомнатные квартиры
Комплекс включает в себя три отдельно стоящих жилых дома с подземной парковкой, уютными помещениями общего пользования и полностью жилую надземную часть из трех этажей и мансардного уровня.
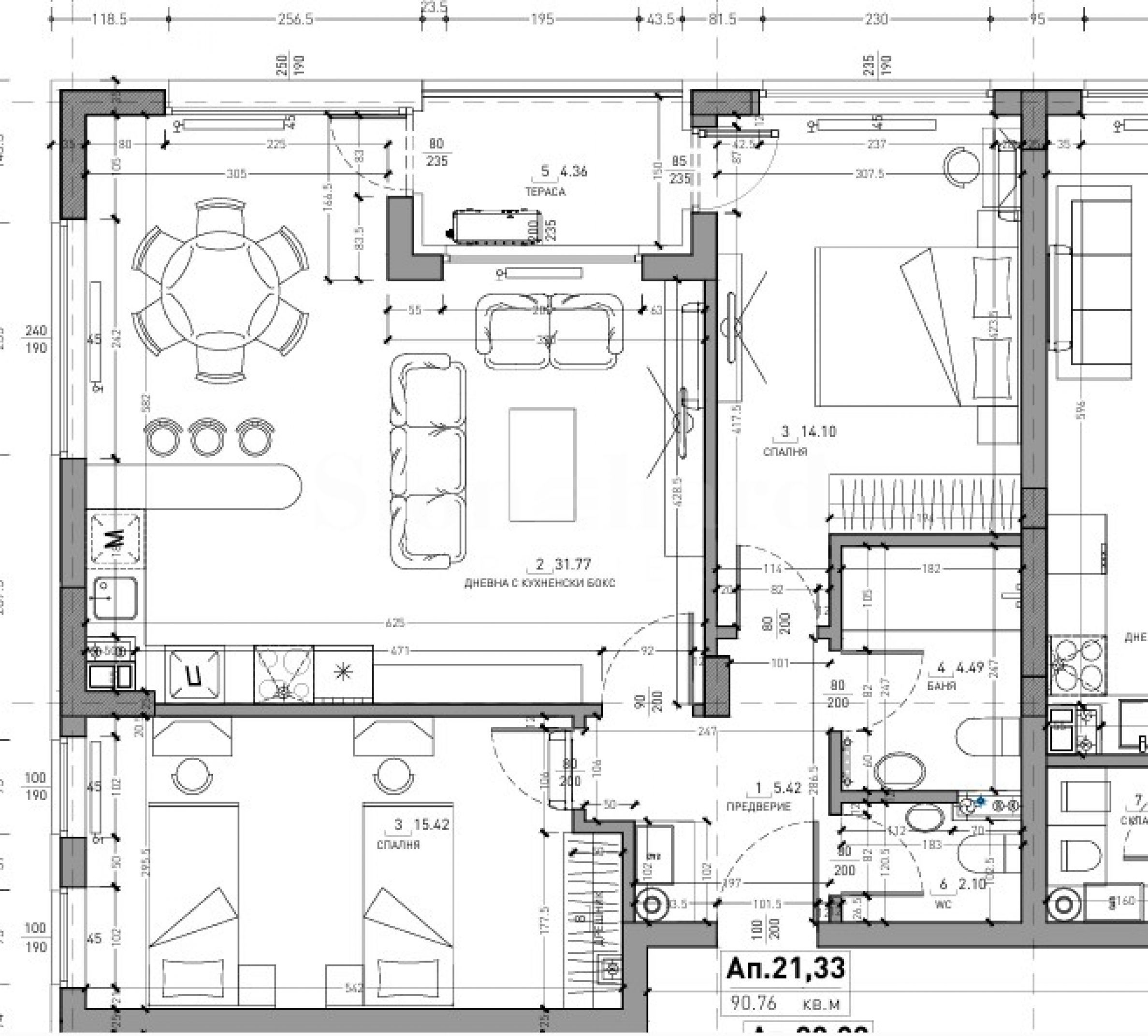
Квартира расположена в корпусе 1, на 3 этаже. Общая площадь составляет 108,24 кв. метров., жилая – 90,76 кв. метров. Квартира состоит из прихожей, ванной комнаты с туалетом, туалета, гостиной с кухней, двух спален, террасы. Продаётся в состоянии полной отделки согласно BDS.
*Цена предложения указана при Плане оплаты - 1 (50%/30%/10%/10%).
Особенности этапа 1:
• Первая очередь находится в стадии строительства, завершение которого запланировано на март 2028 года.
• 132 функциональных дома – однокомнатные, двухкомнатные и трехкомнатные квартиры;
• 134 подземных парковочных места и гаражей;
• Зеленые зоны и зоны отдыха, игровые площадки, безопасная и приятная семейная обстановка.
Также началось строительство второй очереди комплекса, состоящей из ещё трёх зданий. Обе очереди сформируют современный жилой ансамбль в самом сердце «Малиновой долины».
Качественное строительство:
• Железобетонная конструкция;
• Крыши с теплоизоляцией из XPS;
• Окна ПВХ, тройной стеклопакет со стеклом «четыре сезона»;
• Отопление электричеством через кондиционеры и газом;
• Высота жилых помещений в свету – 2,60 м;
• Кирпичная кладка 25 см.
Расположение и преимущества:
• Тихий и зеленый район, у подножия горы Витоша;
• Непосредственная близость к Симеоновскому шоссе и Кольцевой дороге;
• Рядом находятся NSA, Студенческий Град, супермаркеты, спортивные центры и рестораны;
• Развитие инфраструктуры и инвестиционного потенциала.
Гибкие схемы оплаты — выбор в зависимости от бюджета и этапа строительства:
Схема № 1:
• 50% по предварительному договору;
• 30% для Акта 14;
• 10% для Акта 15;
• 10% для Акта 16.
Схема № 2:
• 30% по предварительному договору;
• 30% для Акта 14;
• 30% для Акта 15;
• 10% для Акта 16.
Схема № 3:
• 30% по предварительному договору;
• 70% в Акте 16.
Почему стоит выбрать этот проект:
• Современная архитектура и удобные планировки жилых помещений;
• Безопасная и экологичная среда проживания;
• Отличная инвестиция в быстроразвивающемся районе Софии;
• Баланс между городскими удобствами и близостью к природе.
Мы с нетерпением ждем вашего запроса.
Если вы хотите договориться о просмотре интересующего вас объекта недвижимости или посетить один из наших офисов, пожалуйста, свяжитесь с нами. Чтобы договориться о встрече или просмотре, позвоните по указанному в объявлении номеру телефона или отправьте запрос по электронной почте. Наш консультант свяжется с вами по всем необходимым вопросам и подберет удобное для вас время.
Вы ищете подходящую для себя недвижимость?
Не стесняйтесь обращаться к нам и рассказать о своих потребностях и предпочтениях. Наша команда проведёт тщательное исследование рынка, чтобы предложить вам недвижимость, которая точно соответствует вашим критериям. У нас есть исключительное портфолио высококачественных и эксклюзивных домов, доступных только нашим клиентам. Чтобы первыми получать информацию о них, свяжитесь с нами.
Дополнительные услуги
Став нашим ценным клиентом, вы получите право пользоваться услугами нашей опытной юридической команды совершенно бесплатно. Кроме того, мы предлагаем комплексные решения, включая страхование имущества, бесплатные финансовые консультации и выгодные условия финансирования. Мы также предлагаем услуги по перепродаже, аренде и управлению недвижимостью. Мы осуществляем высококачественный ремонт и меблировку через специализированные компании, входящие в нашу группу компаний и являющиеся нашими давними профессиональными партнерами.
Смотр недвижимости
Мы готовы организовать смотр недвижимости в удобное для вас время. Обратитесь к ответственному менеджеру по продажам и проинформируйте его, когда бы Вы хотели приехать на смотровой тур. Мы можем помочь Вам забронировать авиабилет и отель, а также помочь Вам оформить визу и необходимую страховку.
Бронирование недвижимости
Вы можете забронировать недвижимость, заплатив невозмещаемый задаток в размере 2 000 евро наличным платежом, кредитной картой или банковским переводом на фирменный счет компании. После получения задатка недвижимость бронируется, осмотры с другими потенциальными покупателями производиться не будут, и начнется изготовление необходимых документов по оформлению сделки. Пожалуйста, обратитесь к ответственному за данный объект менеджеру по продажам для получения подробной информации относительно процедуры покупки и способов оплаты.
Послепродажное обслуживание
Мы уважаемая компания, за плечами которой многолетний опыт работы в сфере недвижимости. Мы будем сопровождать Вас не только во время покупки, но и после приобретения недвижимости, обеспечивая Вам дополнительный набор услуг с учетом Ваших требовании, для того, чтобы Вы могли насладиться полноценным и спокойным времяпровождением в Болгарии. Услуги, которые мы можем предложить, включают страхование, строительство и ремонт, услуги по меблировке, бухгалтерские и юридическиe услуги, переоформление договоров на электричество, воду, телефон и многое другое.
Расположение на карте
ПРАВА
ПРОДАЖА
ПРОЕКТ
Трехкомнатная квартира №73 с видом на Витошу в OKINAWA
Малинова долина / София / София / Болгария карта
Класс здания/комплекса: Высокий стандарт
Область: 116.34 м 2
Цена: 256 000 € /// 2 200 €/м 2
ПРОДАЖА
ПРОЕКТ
Продается двухкомнатная квартира напротив дома № 16 в районе «Крустова Вада».
Кръстова вада / София / София / Болгария карта
Область: 108.99 м 2
Цена: 392 360 € /// 3 600 €/м 2
ПРОДАЖА
ПРОЕКТ
Продается двухкомнатная квартира с придомовой территорией в районе "Бел Вэлли", "Камбаните".
Младост 4 / София / София / Болгария карта
Область: 160.63 м 2
Цена: 415 000 € /// 2 584 €/м 2
Выберите эту опцию, и мы уведомим вас по электронной почте в случае каких-либо изменений в статусе предложения, например:
• Изменение цены;
• Объект недвижимости попал в рекламное предложение;
• Имущество зарезервировано или продано;
• Другие новости, связанные с недвижимостью.
• Имущество снимается с продажи;
Вы можете легко отписаться от уведомлений в любое время.• Изменения условий предложения;
• Изменение размера инвестиций;
• Объект инвестиции полностью реализован;
• Срок действия предложения истек.
Вы сможете легко отказаться от подписки, если в будущем решите, что больше не хотите следовать этому предложению.
Для получения абсолютно корректной информации о свободных объектах недвижимости, выставленных на продажу в проекте, и их актуальных ценах, пожалуйста, свяжитесь с нашим офисом по указанным контактам.
Мы прилагаем все усилия, чтобы наши прайс-листы были абсолютно актуальными и правильными, но зачастую это невозможно, учитывая большое количество новых проектов в нашем каталоге и высокую динамику продаж.
Благодарим за понимание!



...Как проверенный специалист, Stonehard PREMIER работает над позиционированием на рынке и продажами многочисленных новых строительных проектов, реализацию которых нам доверили ведущие предпринимательские компании в Болгарии и за рубежом...