Трехкомнатная квартира в современном комплексе в районе «Славейков», Бургас
Цена:
ЦЕНА ПО ЗАПРОСУ
*Цены и наличие свободных площадей в проекте указаны ориентировочно. Для получения актуальной информации о ценах, пожалуйста, свяжитесь с нами!
Ссылка. Число: LXH-132959 / 4590
Расположение: Славейков / Бургас карта
Тип здания/комплекса: Жилой
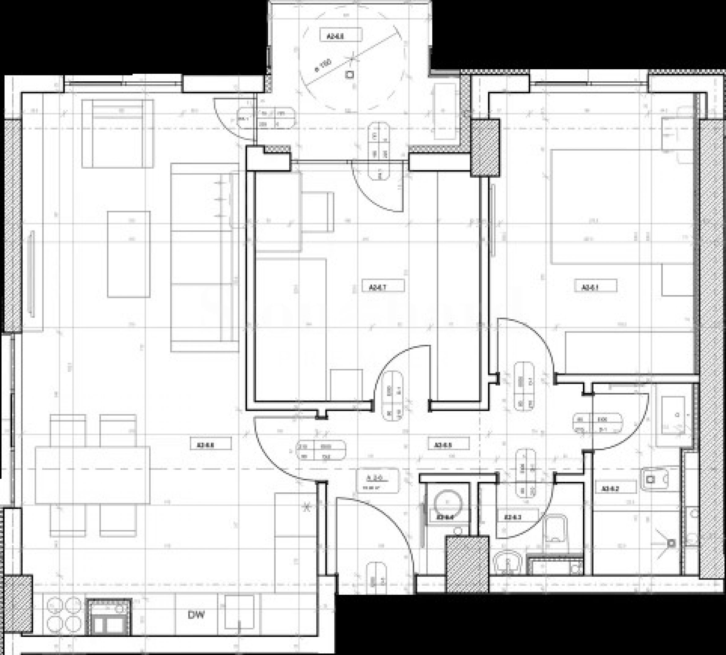
Жилые районы: 98.15 м 2
Типы объектов недвижимости в здании/комплексе: Трёхкомнатные квартиры
Ссылка. Число: LXH-132959 / 4590
Расположение: Славейков / Бургас
Тип здания/комплекса: Жилой
Класс здания/комплекса:
Жилые районы: 98.15 м 2
Типы объектов недвижимости в здании/комплексе: Трёхкомнатные квартиры
Начало строительства – август 2025 г.
Срок реализации - 36 месяцев.
Представляем на продажу трехкомнатную квартиру в современном комплексе из четырех зданий, расположенном на главной магистрали в районе «Славейков», рядом с ключевым бульваром, с быстрым доступом ко всем точкам Бургаса.
Покупка без комиссии.
Общая площадь объекта недвижимости составляет 98,15 кв. м., он расположен на 2-м этаже и имеет следующую планировку:
• прихожая/коридор;
• гостиная с кухней;
• две спальни;
• ванная комната с туалетом;
• санитарная комната;
• склад;
• терраса.
Продается в состоянии полной готовности, в соответствии с болгарскими строительными стандартами, качественное новое строительство.
Здания будут отличаться современным дизайном и функциональностью, созданными с учётом потребностей жизни, комфорта и работы. На их территории будут располагаться:
• жилая зона с разнообразными двух-, трех- и четырехкомнатными квартирами;
• коммерческие учреждения;
• офисные помещения и многофункциональный конференц-зал;
• зоны отдыха и зеленые насаждения;
• апарт-отель.
Плата за обслуживание не взимается.
Площадь объектов недвижимости составляет от 57,06 кв. м до 152,36 кв. м. Они расположены в 4 зданиях, в которых размещаются офисы, торговые точки, кафе, апартаменты, подземная и надземная парковка, а также зона отдыха для жителей комплекса.
На первом этаже предусмотрены дополнительные парковочные места для гостей и некоторых квартир комплекса. Также предусмотрены необходимые места для велосипедов.
Мы с нетерпением ждем вашего запроса.
Если вы хотите договориться о просмотре интересующего вас объекта недвижимости или посетить один из наших офисов, пожалуйста, свяжитесь с нами. Чтобы договориться о встрече или просмотре, позвоните по указанному в объявлении номеру телефона или отправьте запрос по электронной почте. Наш консультант свяжется с вами по всем необходимым вопросам и подберет удобное для вас время.
Вы ищете подходящую для себя недвижимость?
Не стесняйтесь обращаться к нам и рассказать о своих потребностях и предпочтениях. Наша команда проведёт тщательное исследование рынка, чтобы предложить вам недвижимость, которая точно соответствует вашим критериям. У нас есть исключительное портфолио высококачественных и эксклюзивных домов, доступных только нашим клиентам. Чтобы первыми получать информацию о них, свяжитесь с нами.
Дополнительные услуги
Став нашим ценным клиентом, вы получите право пользоваться услугами нашей опытной юридической команды совершенно бесплатно. Кроме того, мы предлагаем комплексные решения, включая страхование имущества, бесплатные финансовые консультации и выгодные условия финансирования. Мы также предлагаем услуги по перепродаже, аренде и управлению недвижимостью. Мы осуществляем высококачественный ремонт и меблировку через специализированные компании, входящие в нашу группу компаний и являющиеся нашими давними профессиональными партнерами.
Смотр недвижимости
Мы готовы организовать смотр недвижимости в удобное для вас время. Обратитесь к ответственному менеджеру по продажам и проинформируйте его, когда бы Вы хотели приехать на смотровой тур. Мы можем помочь Вам забронировать авиабилет и отель, а также помочь Вам оформить визу и необходимую страховку.
Бронирование недвижимости
Вы можете забронировать недвижимость, заплатив невозмещаемый задаток в размере 2 000 евро наличным платежом, кредитной картой или банковским переводом на фирменный счет компании. После получения задатка недвижимость бронируется, осмотры с другими потенциальными покупателями производиться не будут, и начнется изготовление необходимых документов по оформлению сделки. Пожалуйста, обратитесь к ответственному за данный объект менеджеру по продажам для получения подробной информации относительно процедуры покупки и способов оплаты.
Послепродажное обслуживание
Мы уважаемая компания, за плечами которой многолетний опыт работы в сфере недвижимости. Мы будем сопровождать Вас не только во время покупки, но и после приобретения недвижимости, обеспечивая Вам дополнительный набор услуг с учетом Ваших требовании, для того, чтобы Вы могли насладиться полноценным и спокойным времяпровождением в Болгарии. Услуги, которые мы можем предложить, включают страхование, строительство и ремонт, услуги по меблировке, бухгалтерские и юридическиe услуги, переоформление договоров на электричество, воду, телефон и многое другое.
Расположение на карте
ПРОДАЖА
ПРОЕКТ
Трехкомнатная квартира с панорамной террасой в новом комплексе в районе Сарафово
Сарафово / Бургас / Бургас / Болгария карта
Область: 129.11 м 2
Цена: 198 000 € /// 1 534 €/м 2
Квартиры в новом, 5-м здании современного комплекса рядом с торговым центром «Бургас Плаза»
Хоризонт / Бургас / Бургас / Болгария карта
Цены на недвижимость: 90 000 - 207 000 €
Цены за м²: 1 390 - 1 580 €/м 2
ПРОДАЖА
ПРОЕКТ
Просторная трехкомнатная квартира в новом комплексе в районе Сарафово.
Сарафово / Бургас / Бургас / Болгария карта
Область: 316.33 м 2
Цена: 360 000 € /// 1 138 €/м 2
Выберите эту опцию, и мы уведомим вас по электронной почте в случае каких-либо изменений в статусе предложения, например:
• Изменение цены;
• Объект недвижимости попал в рекламное предложение;
• Имущество зарезервировано или продано;
• Другие новости, связанные с недвижимостью.
• Имущество снимается с продажи;
Вы можете легко отписаться от уведомлений в любое время.• Изменения условий предложения;
• Изменение размера инвестиций;
• Объект инвестиции полностью реализован;
• Срок действия предложения истек.
Вы сможете легко отказаться от подписки, если в будущем решите, что больше не хотите следовать этому предложению.
Для получения абсолютно корректной информации о свободных объектах недвижимости, выставленных на продажу в проекте, и их актуальных ценах, пожалуйста, свяжитесь с нашим офисом по указанным контактам.
Мы прилагаем все усилия, чтобы наши прайс-листы были абсолютно актуальными и правильными, но зачастую это невозможно, учитывая большое количество новых проектов в нашем каталоге и высокую динамику продаж.
Благодарим за понимание!



...Как проверенный специалист, Stonehard PREMIER работает над позиционированием на рынке и продажами многочисленных новых строительных проектов, реализацию которых нам доверили ведущие предпринимательские компании в Болгарии и за рубежом...