Трехкомнатная квартира в новостройке в городе Гарова Глава.
на карте
Цена:
214 149 € (1 722 €/м 2)
*Цены и наличие свободных площадей в проекте указаны ориентировочно. Для получения актуальной информации о ценах, пожалуйста, свяжитесь с нами!
Ссылка. Число: SOF-126248 / 3917
Расположение: м-т Гърдова глава / София карта
Тип здания/комплекса: Жилой
Жилые районы: 124.39 м 2
Типы объектов недвижимости в здании/комплексе: Трёхкомнатные квартиры
Ссылка. Число: SOF-126248 / 3917
Расположение: м-т Гърдова глава / София
Тип здания/комплекса: Жилой
Класс здания/комплекса:
Жилые районы: 124.39 м 2
Типы объектов недвижимости в здании/комплексе: Трёхкомнатные квартиры
С 14 актом получен! Планируемый Акт 16 – декабрь 2025 г.
Комплекс расположен в тихом и спокойном месте со свежим воздухом, в зеленом мегаполисе, рядом школа и детский сад, гипермаркеты Fantastico и Lidl.
Параметры жилища
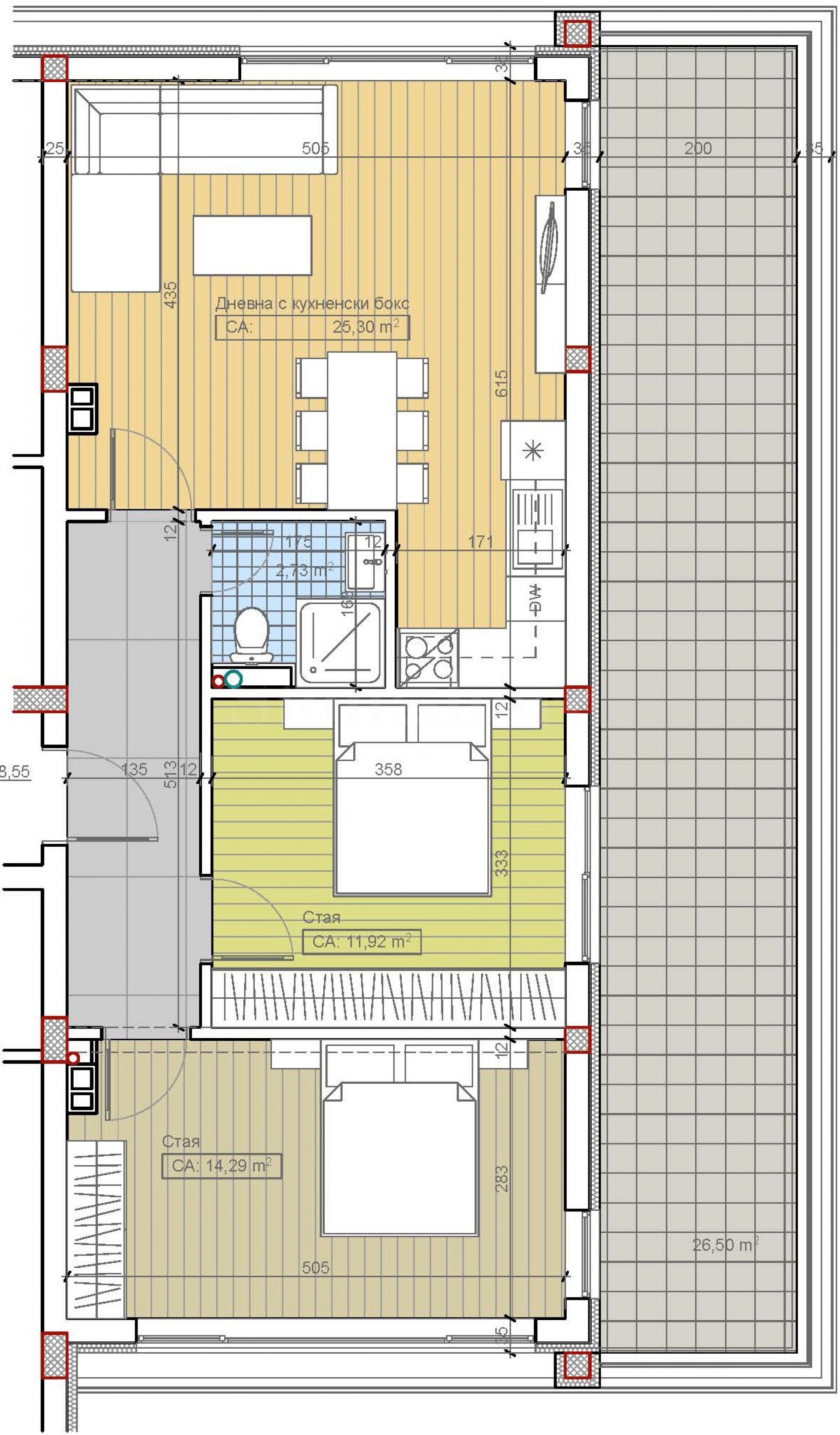
Квартира расположена на 4-м этаже 5-этажного дома. Он состоит из:
прихожая, соединяющая все комнаты;
большая гостиная, также предназначенная для кухни и столовой;
две комнаты, которые по усмотрению покупателей могут использоваться как как спальни, так и для других целей;
ванная комната с туалетом;
большая терраса.
Планировка квартиры функциональная, без переходных комнат.
Застроенная площадь объекта составляет 106,27 кв. метров., также имеется склад светлой площадью 3,51 кв. метров.
О здании
Здание застроенной площадью 4200 квадратных метров спроектировано с 5 надземными жилыми и одним полуподземным этажом, состоит из двух подъездов, всего 35 квартир. упомянутых обозначенных перечисленных перечисленных отличительных упомянутых отличительных характеристики. На продажу выставлены одно-, двух- и трехкомнатные объекты удобной планировки.
Парковка обеспечена 15 надземными гаражами и 20 парковочными местами во дворе.
При строительстве здания использованы качественные материалы и технологии.
Здание газифицировано.
Квартиры продаются с НДС, со штукатуркой и стяжкой.
Технические упомянутых обозначенных перечисленных перечисленных отличительных упомянутых отличительных характеристики:
железобетонная конструкция с водонепроницаемым бетоном класса С 25/30 (бетон превышает проектные требования для очень высоких зданий);
Винербергская кирпичная кладка;
с полностью навесным вентилируемым фасадом: стеклокерамика, HPL и эталбонд, по разработанному дизайн-проекту;
столярные изделия - модель GENEO, REHAU, из композитного материала 86 мм, с тройным остеклением, цвет антрацит (темно-серый);
общие части - пол керамогранит, стены с элементами гранита, HPL и эталбонд;
8-местные лифты ОТИС;
входные двери квартир - по индивидуальному заказу, металлические, бронированные и утепленные;
гаражные ворота - автоматические, секционные, утепленные и с дистанционным управлением. Мы ждем вашего запроса
Если вы хотите организовать просмотр интересующей вас недвижимости или посетить один из наших офисов, пожалуйста, свяжитесь с нами. Чтобы согласовать день и время встречи или осмотра, вы можете позвонить по телефону, указанному в объявлении, или отправить запрос на электронную почту. Наш консультант поможет Вам уточнить все необходимые детали и согласовать удобное для Вас время.
Вы ищете подходящую недвижимость для вас?
Не стесняйтесь обращаться к нам и рассказывать о своих потребностях и предпочтениях. Наша команда проведет тщательное исследование рынка, чтобы предложить вам недвижимость, которая точно соответствует вашим критериям. У нас есть исключительное портфолио высококачественных и эксклюзивных домов, которые доступны только нашим клиентам. Чтобы первым получить информацию о них - свяжитесь с нами.
Дополнительные услуги
Как ценный клиент нашей компании, вы будете иметь возможность совершенно бесплатно воспользоваться услугами нашей опытной команды юристов. Кроме того, мы предлагаем комплексные решения, включающие страхование имущества, бесплатную финансовую консультацию, а также выгодные условия финансирования. Наши услуги также распространяются на перепродажу, аренду и управление недвижимостью. Мы осуществляем качественные ремонтные работы и меблировку через специализированные компании, входящие в нашу корпоративную группу и являющиеся нашими многолетними профессиональными партнерами.
Смотр недвижимости
Мы готовы организовать смотр недвижимости в удобное для вас время. Обратитесь к ответственному менеджеру по продажам и проинформируйте его, когда бы Вы хотели приехать на смотровой тур. Мы можем помочь Вам забронировать авиабилет и отель, а также помочь Вам оформить визу и необходимую страховку.
Бронирование недвижимости
Вы можете забронировать недвижимость, заплатив невозмещаемый задаток в размере 2 000 евро наличным платежом, кредитной картой или банковским переводом на фирменный счет компании. После получения задатка недвижимость бронируется, осмотры с другими потенциальными покупателями производиться не будут, и начнется изготовление необходимых документов по оформлению сделки. Пожалуйста, обратитесь к ответственному за данный объект менеджеру по продажам для получения подробной информации относительно процедуры покупки и способов оплаты.
Послепродажное обслуживание
Мы уважаемая компания, за плечами которой многолетний опыт работы в сфере недвижимости. Мы будем сопровождать Вас не только во время покупки, но и после приобретения недвижимости, обеспечивая Вам дополнительный набор услуг с учетом Ваших требовании, для того, чтобы Вы могли насладиться полноценным и спокойным времяпровождением в Болгарии. Услуги, которые мы можем предложить, включают страхование, строительство и ремонт, услуги по меблировке, бухгалтерские и юридическиe услуги, переоформление договоров на электричество, воду, телефон и многое другое.
Расположение на карте
Многоквартирный жилой дом с благоустроенным двором и различными типами квартир в районе "Малинова Долина".
Малинова долина / София / София / Болгария карта
Цены на недвижимость: Цена по запросу
ПРОДАЖА
ПРОЕКТ
Квартира в современном новостройке с 16-м актом в районе "Малинова Долина".
Малинова долина / София / София / Болгария карта
Область: 104.99 м 2
Цена: 273 000 € /// 2 600 €/м 2
ПРОДАЖА
ПРОЕКТ
Двухкомнатная квартира в новом жилом комплексе, недалеко от станции метро и торгового центра Paradise Mall.
Кръстова вада / София / София / Болгария карта
Область: 147.05 м 2
Цена: 399 000 € /// 2 713 €/м 2
Выберите эту опцию, и мы уведомим вас по электронной почте в случае каких-либо изменений в статусе предложения, например:
• Изменение цены;
• Объект недвижимости попал в рекламное предложение;
• Имущество зарезервировано или продано;
• Другие новости, связанные с недвижимостью.
• Имущество снимается с продажи;
Вы можете легко отписаться от уведомлений в любое время.• Изменения условий предложения;
• Изменение размера инвестиций;
• Объект инвестиции полностью реализован;
• Срок действия предложения истек.
Вы сможете легко отказаться от подписки, если в будущем решите, что больше не хотите следовать этому предложению.
Для получения абсолютно корректной информации о свободных объектах недвижимости, выставленных на продажу в проекте, и их актуальных ценах, пожалуйста, свяжитесь с нашим офисом по указанным контактам.
Мы прилагаем все усилия, чтобы наши прайс-листы были абсолютно актуальными и правильными, но зачастую это невозможно, учитывая большое количество новых проектов в нашем каталоге и высокую динамику продаж.
Благодарим за понимание!



...Как проверенный специалист, Stonehard PREMIER работает над позиционированием на рынке и продажами многочисленных новых строительных проектов, реализацию которых нам доверили ведущие предпринимательские компании в Болгарии и за рубежом...