Трехкомнатная квартира с видом на морской залив в Царево
на карте
Цена:
163 731 € (1 499 €/м 2)
*Цены и наличие свободных площадей в проекте указаны ориентировочно. Для получения актуальной информации о ценах, пожалуйста, свяжитесь с нами!
Ссылка. Число: LXH-126204 / 3639
Расположение: Царево карта
Тип здания/комплекса: Жилой
Жилые районы: 109.20 м 2
Типы объектов недвижимости в здании/комплексе: Трёхкомнатные квартиры
Ссылка. Число: LXH-126204 / 3639
Расположение: Царево
Тип здания/комплекса: Жилой
Класс здания/комплекса:
Жилые районы: 109.20 м 2
Типы объектов недвижимости в здании/комплексе: Трёхкомнатные квартиры
Планируемый акт 16 - август 2025 г.
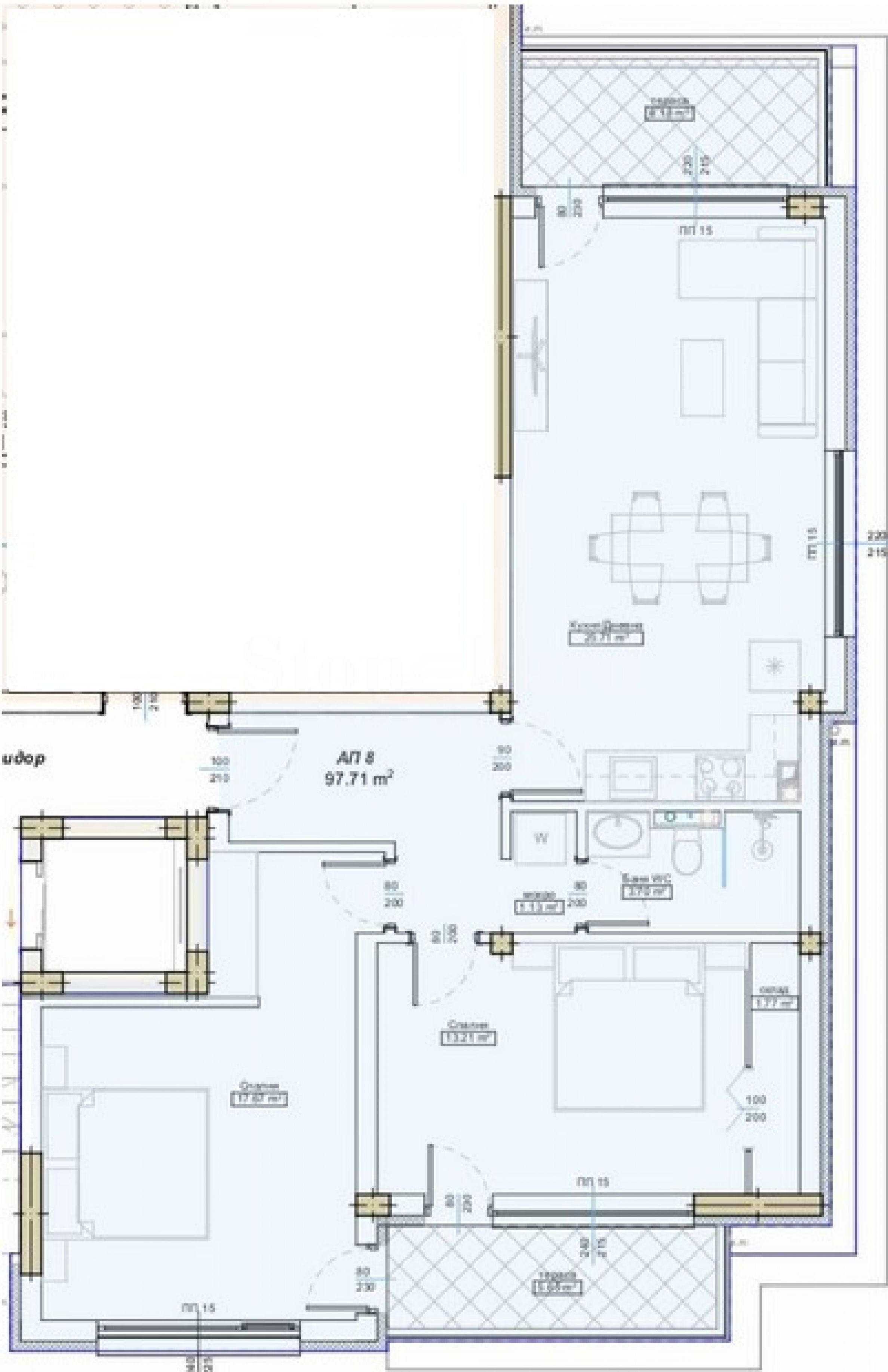
Объект недвижимости общей площадью 109,20 кв. м расположен на 2 этаже 4-этажного здания с лифтом и ограниченным количеством квартир - 14 объектов и 23 парковочных места.
Здание бутика, спроектированное в средиземноморском стиле, будет отделано материалами высочайшего качества:
фасадная теплоизоляция и штукатурки - Baumit;
Фасадные панели HPL Fundermax;
кирпичи - Wienerberger;
алюминиевые окна. Квартиры однокомнатные, двухкомнатные и трехкомнатные. Недвижимость сдается в аренду в степени готовности BDS: оштукатуренные стены и стяжка полов, полностью выполненная электропроводка и сантехника, установлены столярные изделия.
Расположение
Удобное расположение между центральной частью курорта - Новый населенный пункт и кварталом "Василико" - Старый город, с видом на весь залив между двумя кварталами, с видом на море, порт и церковь "Успения Пресвятой Богородицы". Район известен как "Белый пляж". В пешей доступности пляж со знаменитым Django Surf & Bar и пляж Nestinarka.
Смотр недвижимости
Мы готовы организовать смотр недвижимости в удобное для вас время. Обратитесь к ответственному менеджеру по продажам и проинформируйте его, когда бы Вы хотели приехать на смотровой тур. Мы можем помочь Вам забронировать авиабилет и отель, а также помочь Вам оформить визу и необходимую страховку.
Бронирование недвижимости
Вы можете забронировать недвижимость, заплатив невозмещаемый задаток в размере 2 000 евро наличным платежом, кредитной картой или банковским переводом на фирменный счет компании. После получения задатка недвижимость бронируется, осмотры с другими потенциальными покупателями производиться не будут, и начнется изготовление необходимых документов по оформлению сделки. Пожалуйста, обратитесь к ответственному за данный объект менеджеру по продажам для получения подробной информации относительно процедуры покупки и способов оплаты.
Послепродажное обслуживание
Мы уважаемая компания, за плечами которой многолетний опыт работы в сфере недвижимости. Мы будем сопровождать Вас не только во время покупки, но и после приобретения недвижимости, обеспечивая Вам дополнительный набор услуг с учетом Ваших требовании, для того, чтобы Вы могли насладиться полноценным и спокойным времяпровождением в Болгарии. Услуги, которые мы можем предложить, включают страхование, строительство и ремонт, услуги по меблировке, бухгалтерские и юридическиe услуги, переоформление договоров на электричество, воду, телефон и многое другое.
Расположение на карте
ПРОДАЖА
ПРОЕКТ
Двухкомнатная квартира с впечатляющим видом на море в Царево
Царево / Бургас / Болгария карта
Область: 130 м 2
Цена: 195 000 € /// 1 500 €/м 2
ПРОДАЖА
ПРОЕКТ
Трехкомнатная квартира с видом на море на первой линии в Царево
Царево / Бургас / Болгария карта
Область: 179.87 м 2
Цена: 324 000 € /// 1 801 €/м 2
ПРОДАЖА
ПРОЕКТ
Уютный трехкомнатный мезонет с видом на море на первой линии в Царево
Царево / Бургас / Болгария карта
Область: 152.63 м 2
Цена: 229 200 € /// 1 502 €/м 2
Выберите эту опцию, и мы уведомим вас по электронной почте в случае каких-либо изменений в статусе предложения, например:
• Изменение цены;
• Объект недвижимости попал в рекламное предложение;
• Имущество зарезервировано или продано;
• Другие новости, связанные с недвижимостью.
• Имущество снимается с продажи;
Вы можете легко отписаться от уведомлений в любое время.• Изменения условий предложения;
• Изменение размера инвестиций;
• Объект инвестиции полностью реализован;
• Срок действия предложения истек.
Вы сможете легко отказаться от подписки, если в будущем решите, что больше не хотите следовать этому предложению.
Для получения абсолютно корректной информации о свободных объектах недвижимости, выставленных на продажу в проекте, и их актуальных ценах, пожалуйста, свяжитесь с нашим офисом по указанным контактам.
Мы прилагаем все усилия, чтобы наши прайс-листы были абсолютно актуальными и правильными, но зачастую это невозможно, учитывая большое количество новых проектов в нашем каталоге и высокую динамику продаж.
Благодарим за понимание!



...Как проверенный специалист, Stonehard PREMIER работает над позиционированием на рынке и продажами многочисленных новых строительных проектов, реализацию которых нам доверили ведущие предпринимательские компании в Болгарии и за рубежом...