Просторная трехкомнатная квартира в новом жилом доме рядом с Бизнес Парк София и метро Бизнес Парк.
REF#AP 125937
/
Трёхкомнатные квартиры
/
Реализованные проекты
/
София
/
Младост 4
/
София
/
Болгария
на карте
Цена:
219 678 € (2 350 €/м 2)
*Цены и наличие свободных площадей в проекте указаны ориентировочно. Для получения актуальной информации о ценах, пожалуйста, свяжитесь с нами!
Ссылка. Число: AP 125937 / 3762
Расположение: Младост 4 / София карта
Тип здания/комплекса: Жилой
Жилые районы: 93.48 м 2
Типы объектов недвижимости в здании/комплексе: Трёхкомнатные квартиры
Ссылка. Число: AP 125937 / 3762
Расположение: Младост 4 / София
Тип здания/комплекса: Жилой
Класс здания/комплекса:
Жилые районы: 93.48 м 2
Типы объектов недвижимости в здании/комплексе: Трёхкомнатные квартиры
В районе имеются все удобства: магазины и супермаркеты, школы и детские сады, остановки общественного транспорта, спортивные и развлекательные сооружения.
Здание 10-этажное и состоит из трех подъездов А, В и С.
Есть возможность приобрести парковочные места и гаражи.
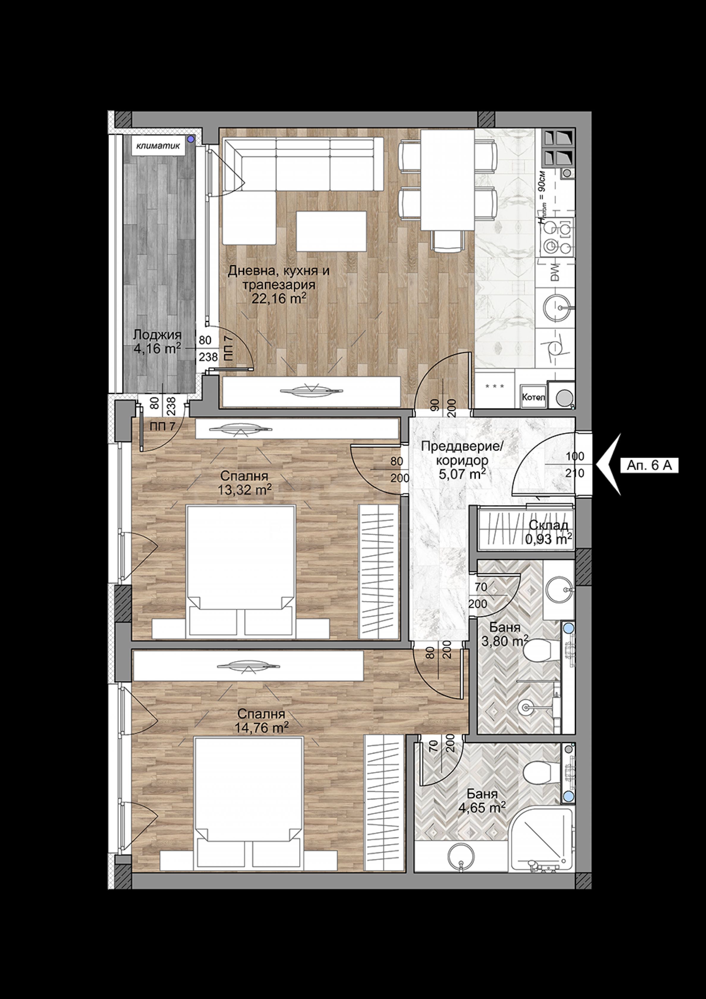
Квартира трехкомнатная, общей площадью 93,48 кв. метров. (жилая площадь 80,13 кв. метров. + помещения общего пользования 13,35 кв. метров.) расположена на первом этаже.
Распределение:
коридор;
гостиная с кухней и столовой;
шкаф;
две спальни;
две ванные комнаты с туалетами;
терраса.
Квартира продается с высококачественной отделкой по болгарским стандартам, со штукатуркой и стяжкой.
Технические обозначенных отличительных отличительных обозначенных характеристики:
Высококлассное строительство с использованием самых современных технологий и материалов в строительстве, кирпич Wienerberger, пятикамерные окна, высококлассные лифты. Места общего пользования роскошно декорированы, полы выполнены из натурального гранитного камня. Отопление газовое.
Стадия завершения:
Сантехнические работы /завершены на уровне розеток/;
Электромонтажные работы, установка дверного звонка и домофона, установка телевидения, установка молниезащиты — все полностью завершено;
Отопление - газовое;
Установка вентиляции;
Гладкая внутренняя штукатурка со шпатлевкой;
Ванные комнаты и санитарные узлы из штукатурки и стяжки;
Внутренние стандартные столярные изделия;
Наружные окна ПВХ с двойным остеклением;
Бронированные входные двери;
Места общего пользования полностью готовы.
План оплаты:
Предварительный договор – 40%
Акт 14 – 30%
Акт 16 – 30%
Мы с нетерпением ждем вашего запроса.
Если вы хотите организовать просмотр интересующей вас недвижимости или посетить один из наших офисов, пожалуйста, свяжитесь с нами. Чтобы договориться о дне и времени встречи или просмотра, вы можете позвонить по указанному в объявлении номеру телефона или отправить запрос по электронной почте. Наш консультант поможет Вам со всеми необходимыми деталями и согласует удобное для Вас время.
Вы ищете подходящую для себя недвижимость?
Не стесняйтесь обращаться к нам и рассказывать о своих потребностях и предпочтениях. Наша команда проведет углубленное исследование рынка, чтобы предложить вам объекты недвижимости, которые точно соответствуют вашим критериям. У нас есть исключительное портфолио высококачественных и эксклюзивных домов, доступных только нашим клиентам. Чтобы первыми получать информацию о них – свяжитесь с нами.
Дополнительные услуги
Как уважаемый клиент нашей компании, вы будете иметь привилегию пользоваться услугами нашей опытной юридической команды совершенно бесплатно. Кроме того, мы предлагаем комплексные решения, включая страхование имущества, бесплатные финансовые консультации, а также выгодные условия финансирования. Наши услуги также распространяются на сферы перепродажи, аренды и управления недвижимостью. Мы выполняем высококачественные ремонтные работы и меблировку помещений с помощью специализированных компаний, входящих в нашу корпоративную группу и являющихся нашими давними профессиональными партнерами.
Смотр недвижимости
Мы готовы организовать смотр недвижимости в удобное для вас время. Обратитесь к ответственному менеджеру по продажам и проинформируйте его, когда бы Вы хотели приехать на смотровой тур. Мы можем помочь Вам забронировать авиабилет и отель, а также помочь Вам оформить визу и необходимую страховку.
Бронирование недвижимости
Вы можете забронировать недвижимость, заплатив невозмещаемый задаток в размере 2 000 евро наличным платежом, кредитной картой или банковским переводом на фирменный счет компании. После получения задатка недвижимость бронируется, осмотры с другими потенциальными покупателями производиться не будут, и начнется изготовление необходимых документов по оформлению сделки. Пожалуйста, обратитесь к ответственному за данный объект менеджеру по продажам для получения подробной информации относительно процедуры покупки и способов оплаты.
Послепродажное обслуживание
Мы уважаемая компания, за плечами которой многолетний опыт работы в сфере недвижимости. Мы будем сопровождать Вас не только во время покупки, но и после приобретения недвижимости, обеспечивая Вам дополнительный набор услуг с учетом Ваших требовании, для того, чтобы Вы могли насладиться полноценным и спокойным времяпровождением в Болгарии. Услуги, которые мы можем предложить, включают страхование, строительство и ремонт, услуги по меблировке, бухгалтерские и юридическиe услуги, переоформление договоров на электричество, воду, телефон и многое другое.
Расположение на карте
ПРАВА
ПРОДАЖА
ПРОЕКТ
Просторная дизайнерская квартира с парковочным местом в элитном доме с Актом 16
Малинова долина / София / София / Болгария карта
Класс здания/комплекса: Высокий стандарт
Область: 136 м 2
Цена: 434 900 € /// 3 198 €/м 2
ПРАВА
Новый жилой дом рядом с парком "Заимова" и в метрах от "Памятника Доктору"
Оборище / София / София / Болгария карта
Сдача планируется: Январь, 2026
Цены на недвижимость: 555 000 €
Цены за м²: 4 974 €/м 2
ПРОДАЖА
ПРОЕКТ
Новая квартира с видом на гору Витоша, недалеко от Южного парка
Гоце Делчев / София / София / Болгария карта
Область: 143 м 2
Цена: 460 000 € /// 3 217 €/м 2
Выберите эту опцию, и мы уведомим вас по электронной почте в случае каких-либо изменений в статусе предложения, например:
• Изменение цены;
• Объект недвижимости попал в рекламное предложение;
• Имущество зарезервировано или продано;
• Другие новости, связанные с недвижимостью.
• Имущество снимается с продажи;
Вы можете легко отписаться от уведомлений в любое время.• Изменения условий предложения;
• Изменение размера инвестиций;
• Объект инвестиции полностью реализован;
• Срок действия предложения истек.
Вы сможете легко отказаться от подписки, если в будущем решите, что больше не хотите следовать этому предложению.
Для получения абсолютно корректной информации о свободных объектах недвижимости, выставленных на продажу в проекте, и их актуальных ценах, пожалуйста, свяжитесь с нашим офисом по указанным контактам.
Мы прилагаем все усилия, чтобы наши прайс-листы были абсолютно актуальными и правильными, но зачастую это невозможно, учитывая большое количество новых проектов в нашем каталоге и высокую динамику продаж.
Благодарим за понимание!



...Как проверенный специалист, Stonehard PREMIER работает над позиционированием на рынке и продажами многочисленных новых строительных проектов, реализацию которых нам доверили ведущие предпринимательские компании в Болгарии и за рубежом...